← Stroud District Council

Status

Permitted House extension
Received
09 Jan 2025
New homes
0

Full proposal

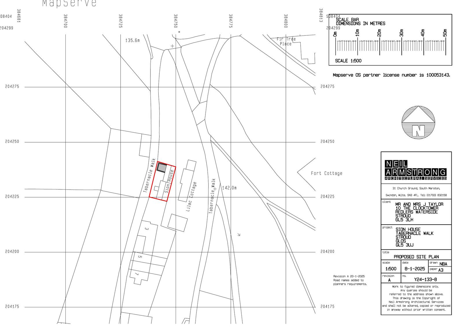
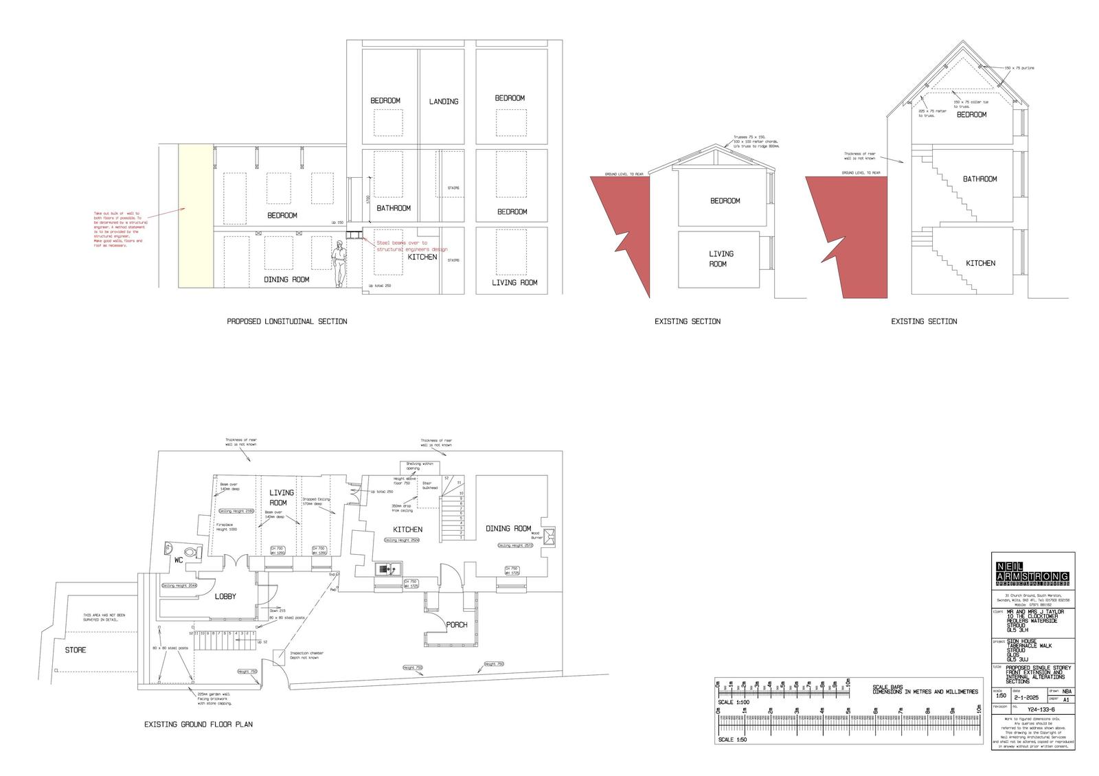
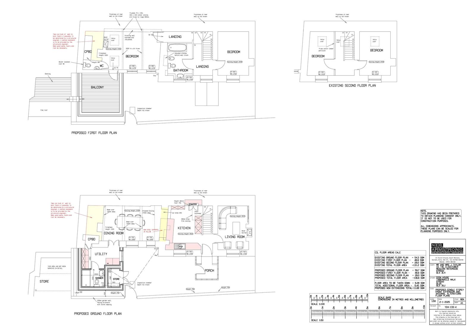
Erection of a single storey front extension with balcony extension above.

Documents

Application Form
Archived · Original link
Supporting Document
Archived · Original link
Supporting Document
Archived · Original link
Decision
Archived · Original link
Drawing
Archived · Original link
Drawing
Archived · Original link
Drawing
Archived · Original link
Drawing
Archived · Original link

Have your say

Your comment matters. Councils must consider every representation that raises material planning considerations.

Write a comment