← Southwark

Status

Under consideration/assessment House extension
Received
Last month
New homes
0

Full proposal

Extension of existing part one/part two storey dwelling to create an additional storey above the one storey part of the existing building, with a pitched roof above

Documents

Plan - Proposed
Archived · Original link
Application - Form (Without Personal data)
Archived · Original link
Tree survey or Arboricultural implications
Archived · Original link
Parking Provision
Archived · Original link
Design and Access statement
Archived · Original link
Plan - Proposed
Archived · Original link
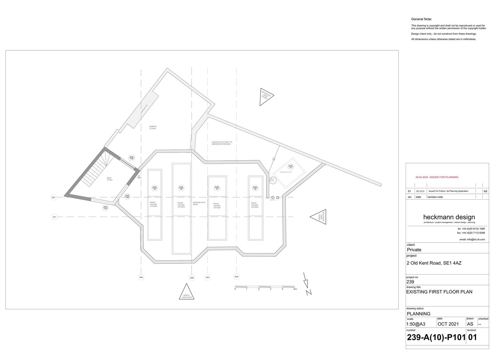
Plan - Existing
Archived · Original link
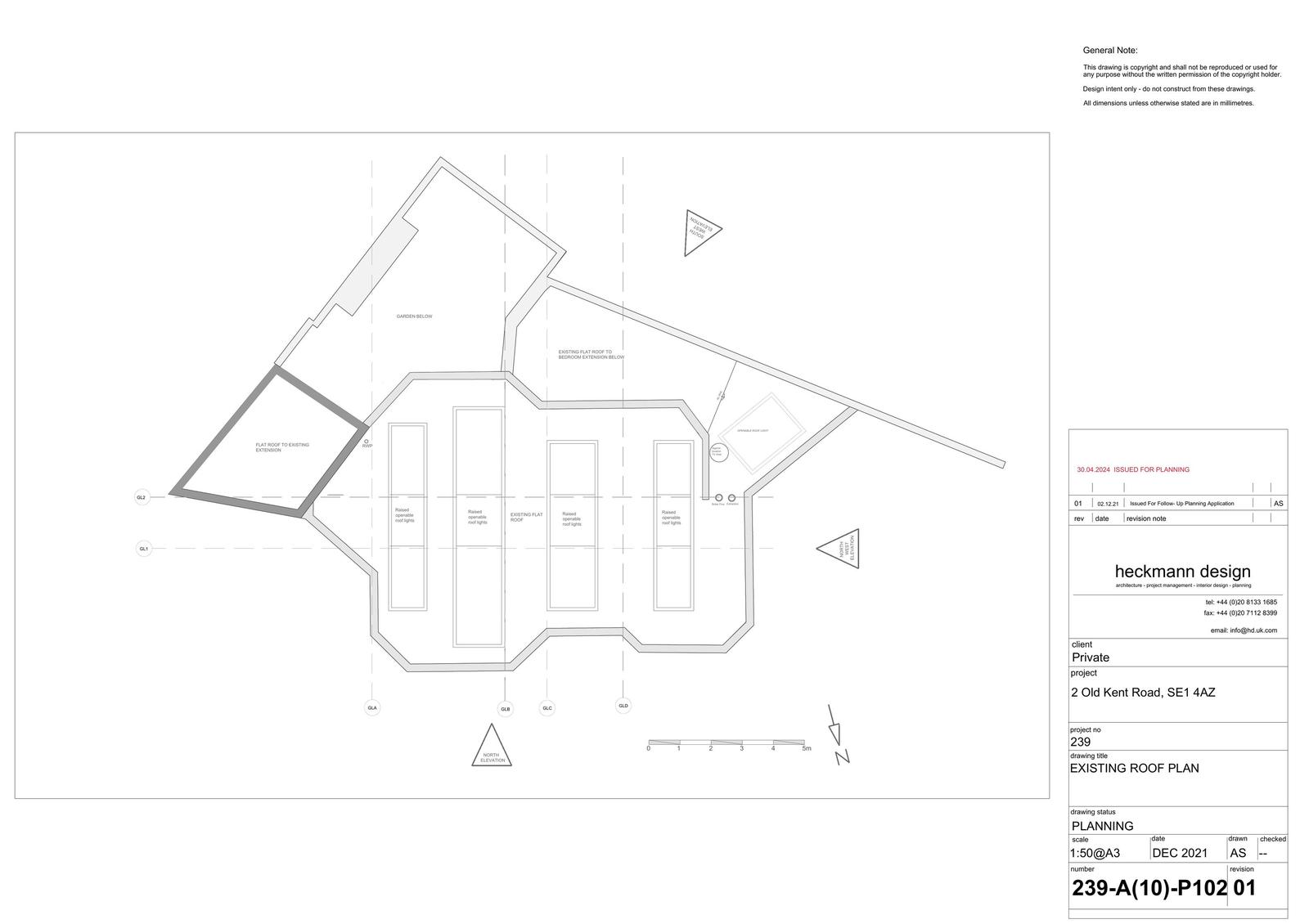
Plan - Existing
Archived · Original link
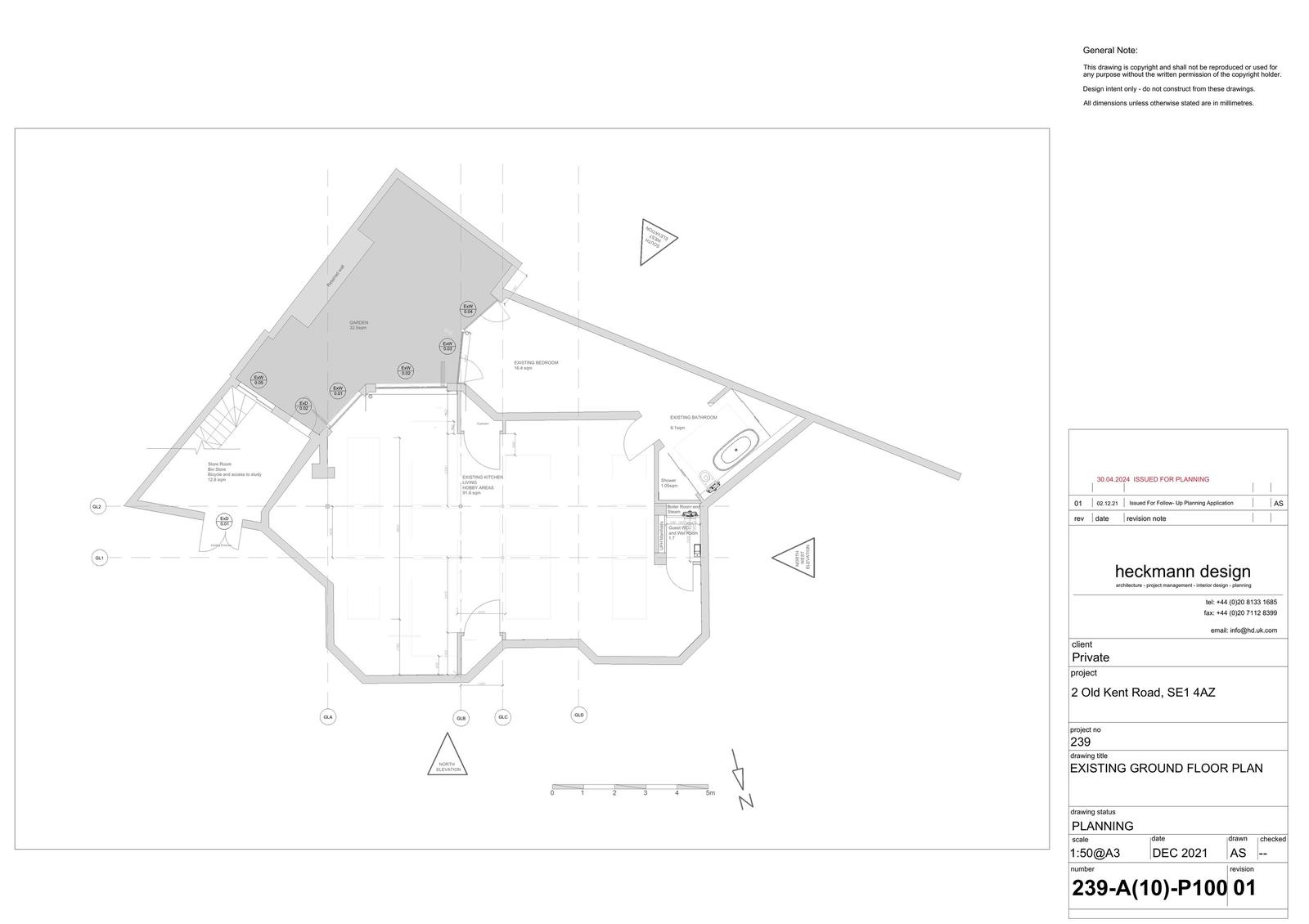
Plan - Existing
Archived · Original link
Plan - Existing
Archived · Original link

Have your say

Your comment matters. Councils must consider every representation that raises material planning considerations.

Write a comment