← South Ribble Borough Council

Status

Unknown House extension
Received
27 May 2025
New homes
0

Full proposal

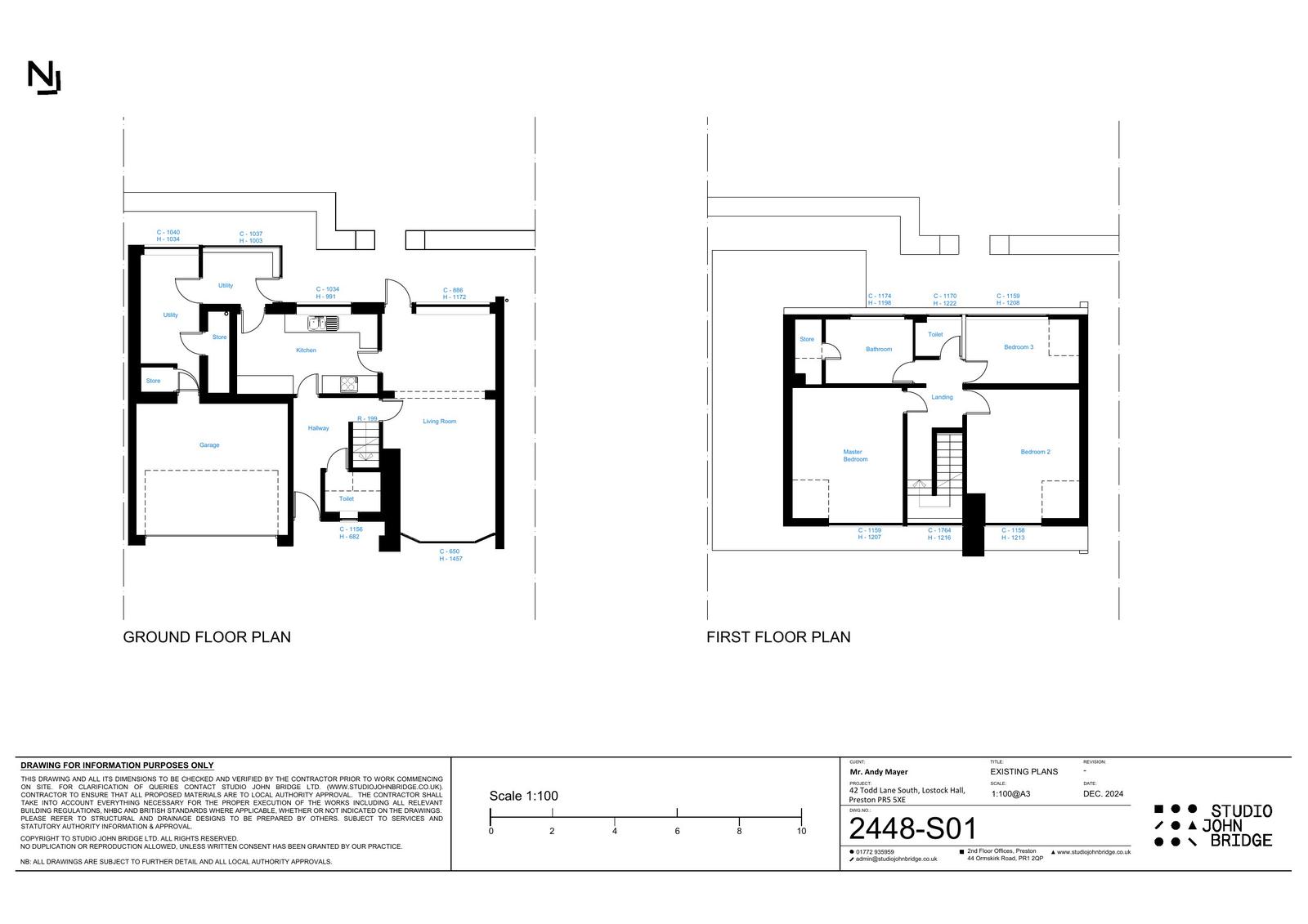
Raising the roof height to create additional floorspace, construction of a first floor side extension with a front dormer and extensions to the existing front and rear dormers, a new single storey rear extension, a proposed front extension with associated internal and external remodelling, and landscaping works including a new driveway, hardstanding, hedge, and front stone wall (AMENDED DESCRIPTION)

Documents

Planning File
Archived · Original link
Consultee Response
Archived · Original link
Planning File
Archived · Original link
Consultee Response
Archived · Original link
Planning File
Archived · Original link
Planning File
Archived · Original link
Planning File
Archived · Original link
Planning File
Archived · Original link
Planning File
Archived · Original link
Planning File
Archived · Original link

Have your say

Your comment matters. Councils must consider every representation that raises material planning considerations.

Write a comment