← South Downs National Park Authority

Status

Application in Progress House extension
Received
Last month
New homes
0

Full proposal

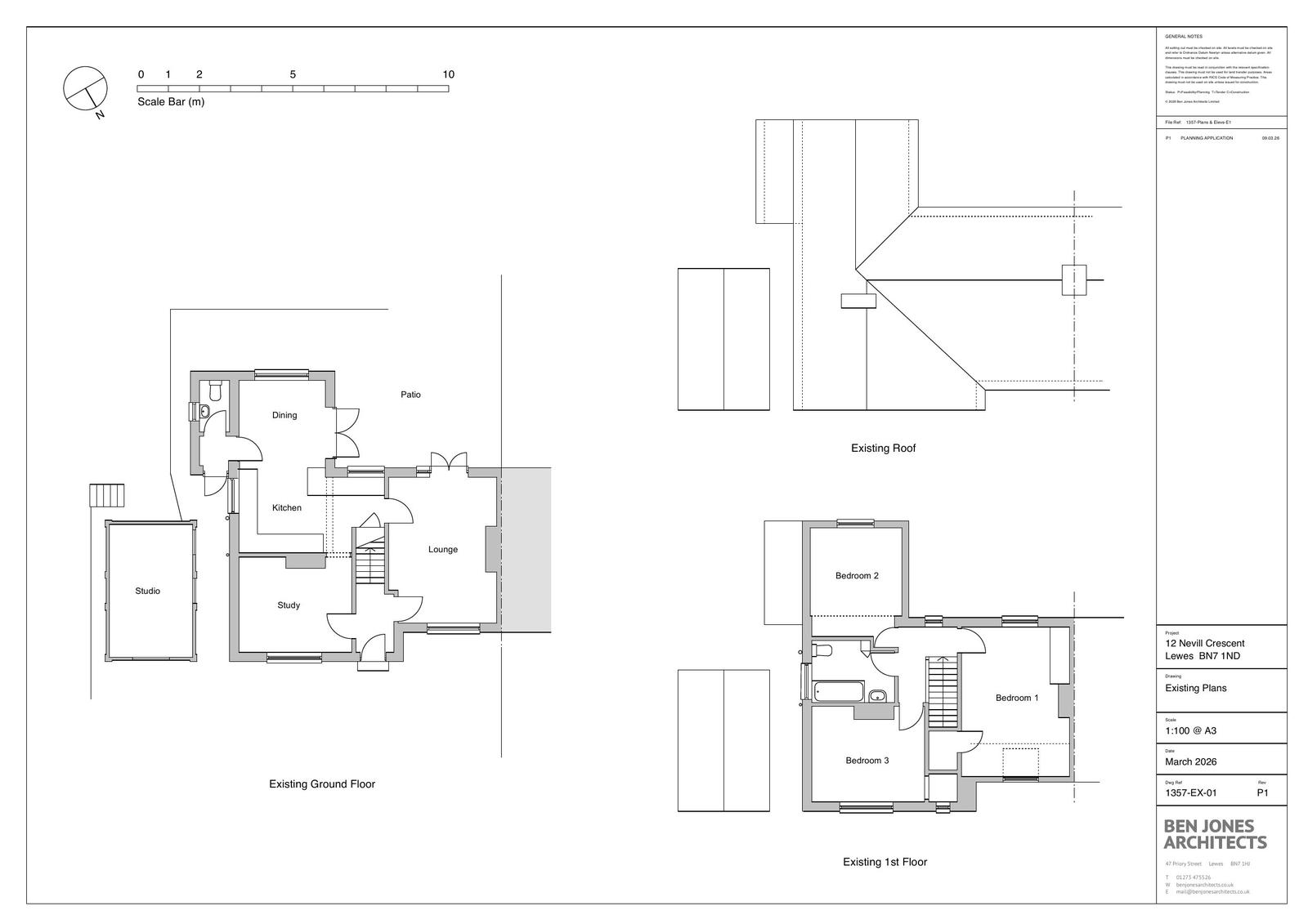
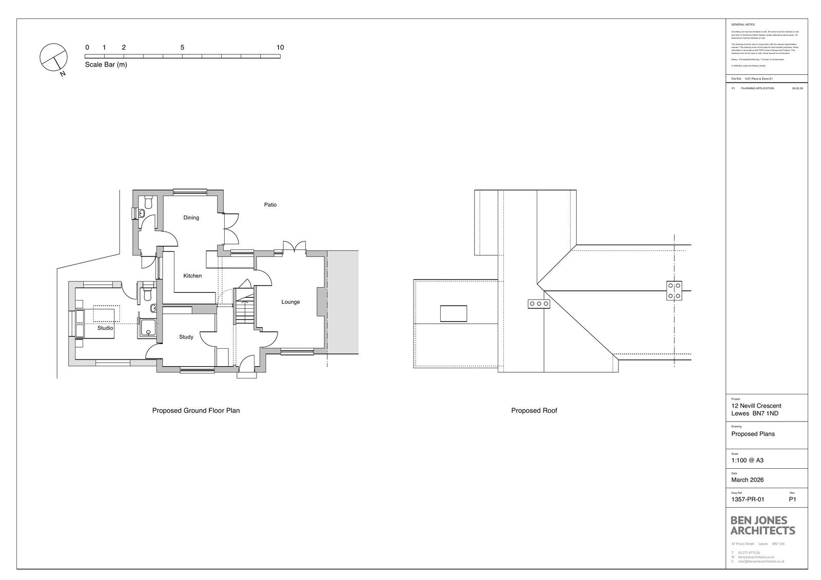
Demolition of garage studio and erection of single storey side extension

Documents

Application Documents
Archived · Original link
Plans
Archived · Original link
Plans
Archived · Original link

Have your say

Your comment matters. Councils must consider every representation that raises material planning considerations.

Write a comment