← Rushmoor Borough Council

Status

Registered House extension
Received
Last month
New homes
0

Full proposal

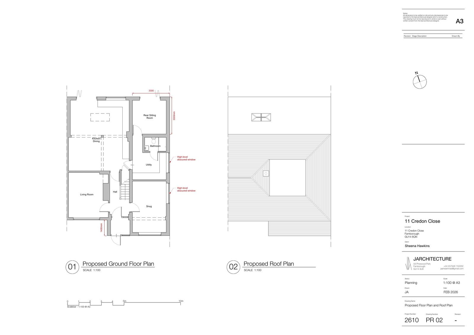
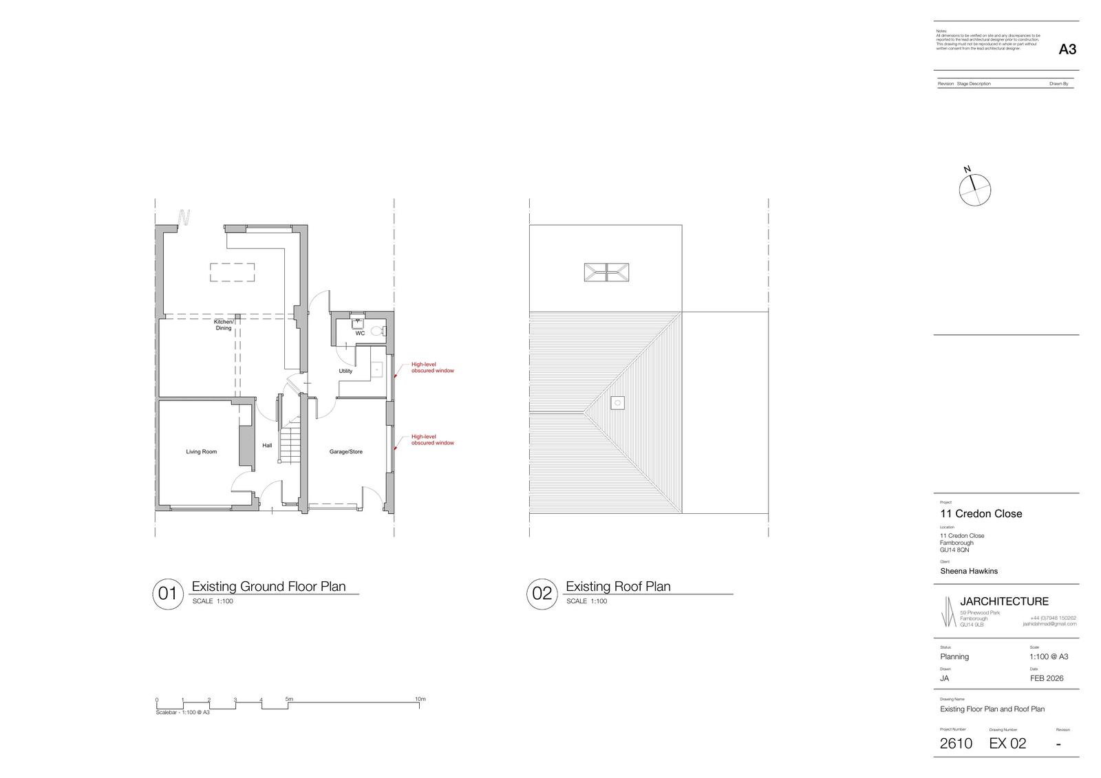
Conversion of the garage to habitable room, erection of a half pitched crown roof to the existing flat roof side extension, erection of a single-storey front porch and erection of a single-storey rear extension

Documents

Correspondence
Archived · Original link
Application Form
Archived · Original link
Part 1
Archived · Original link
Plans
Archived · Original link
Plans
Archived · Original link

Have your say

Your comment matters. Councils must consider every representation that raises material planning considerations.

Write a comment