← Rushmoor Borough Council

Status

Registered House extension
Received
10 Feb 2026
New homes
0

Full proposal

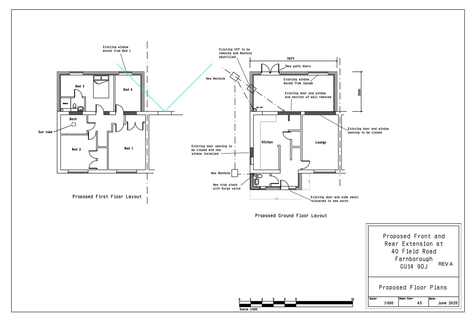
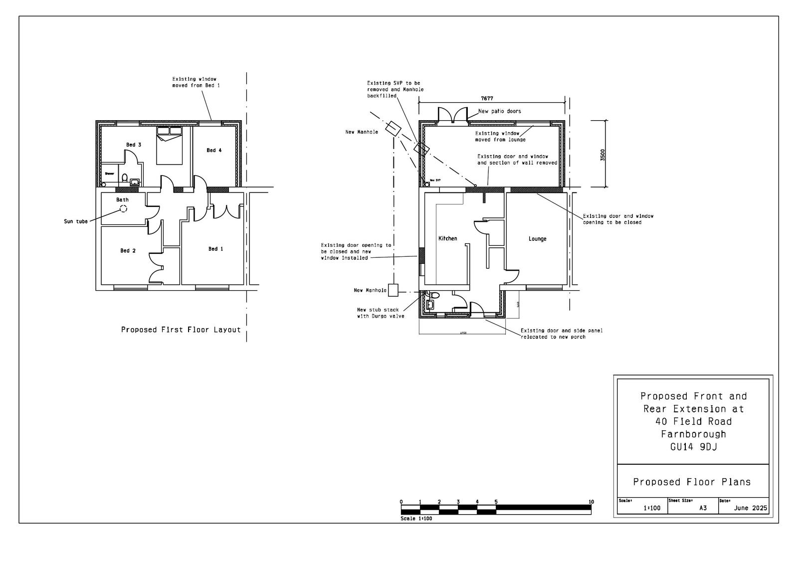
Erection of a single storey front extension and a two storey rear extension

Documents

Correspondence
Archived · Original link
Application Form
Archived · Original link
Plans
Archived · Original link
Part 1
Archived · Original link
Amended Plans
Archived · Original link
Amended Plans
Archived · Original link

Have your say

Your comment matters. Councils must consider every representation that raises material planning considerations.

Write a comment