← Rushmoor Borough Council

Status

Registered House extension
Received
05 Feb 2026
New homes
0

Full proposal

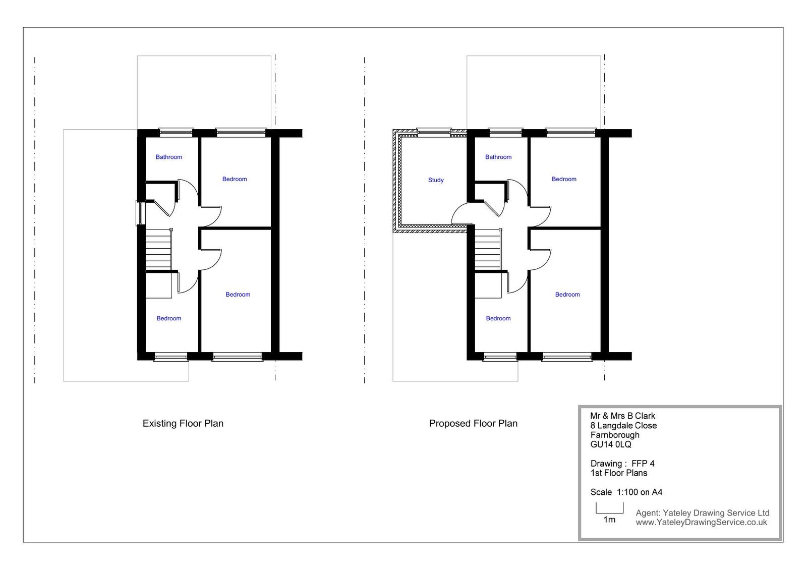
Erection of a first floor extension over existing side extension

Documents

Correspondence
Archived · Original link
Application Form
Archived · Original link
Report
Archived · Original link
Plans
Archived · Original link
Plans
Archived · Original link
Plans
Archived · Original link
Part 1
Archived · Original link

Have your say

Your comment matters. Councils must consider every representation that raises material planning considerations.

Write a comment