← Rushmoor Borough Council

Status

Registered House extension
Received
02 Feb 2026
New homes
0

Full proposal

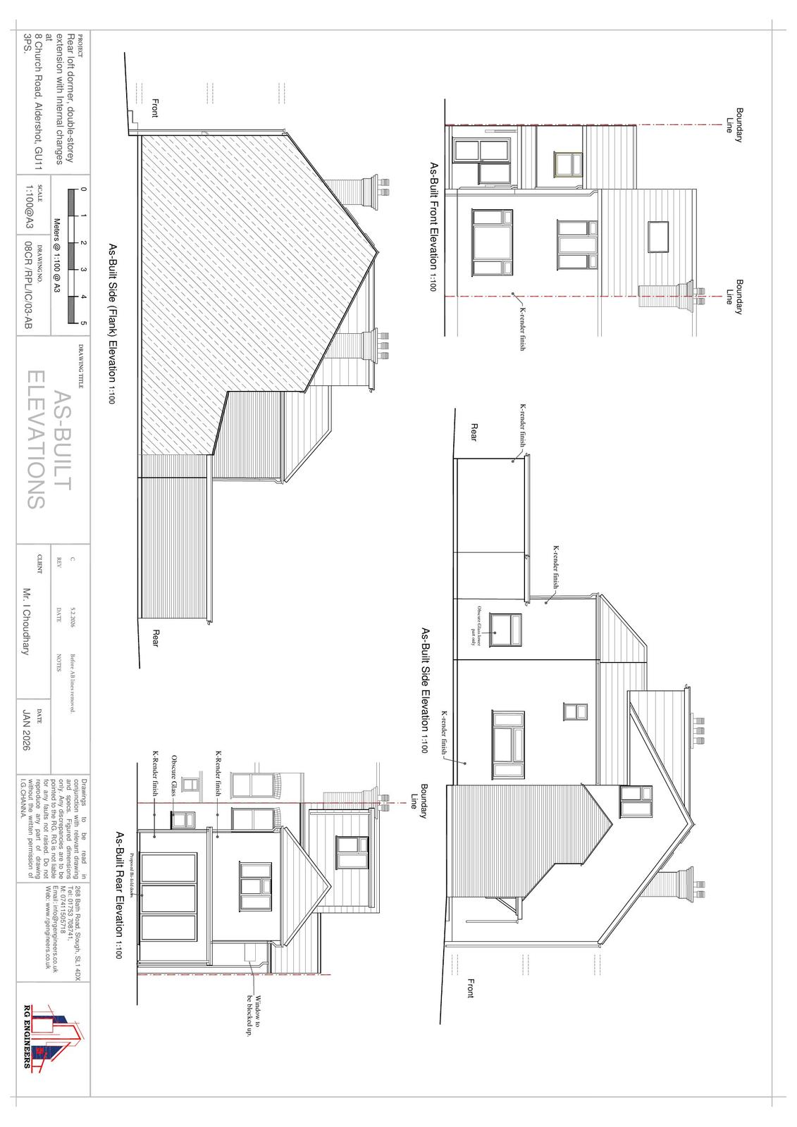
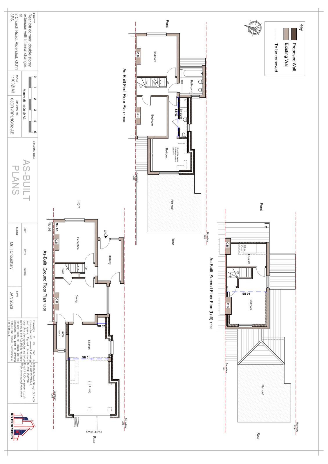
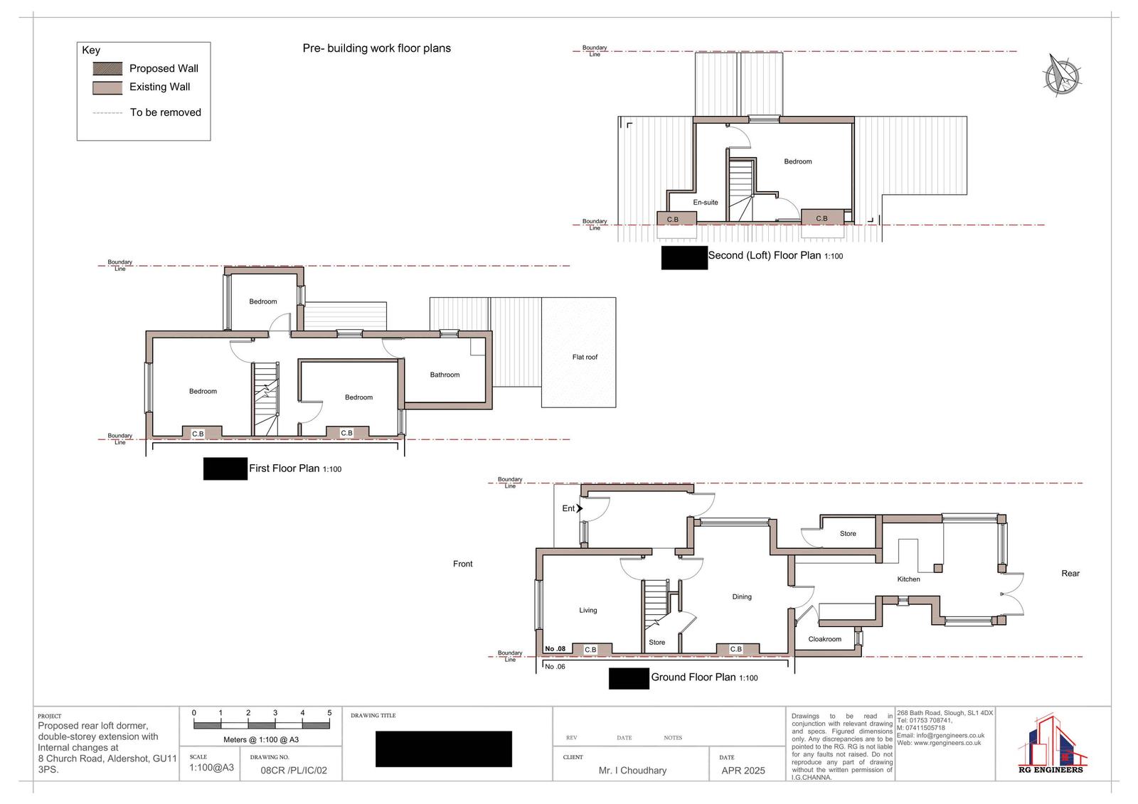
Retention of a roof light to the front elevation, a first floor side extension, two storey side and rear extension, single storey rear extension and a rear dormer and replacement Upvc windows

Documents

Correspondence
Archived · Original link
Application Form
Archived · Original link
Part 1
Archived · Original link
Part 1
Archived · Original link

Have your say

Your comment matters. Councils must consider every representation that raises material planning considerations.

Write a comment