← Rushmoor Borough Council

Status

Registered New housing
Received
21 Jan 2026
New homes
2

Full proposal

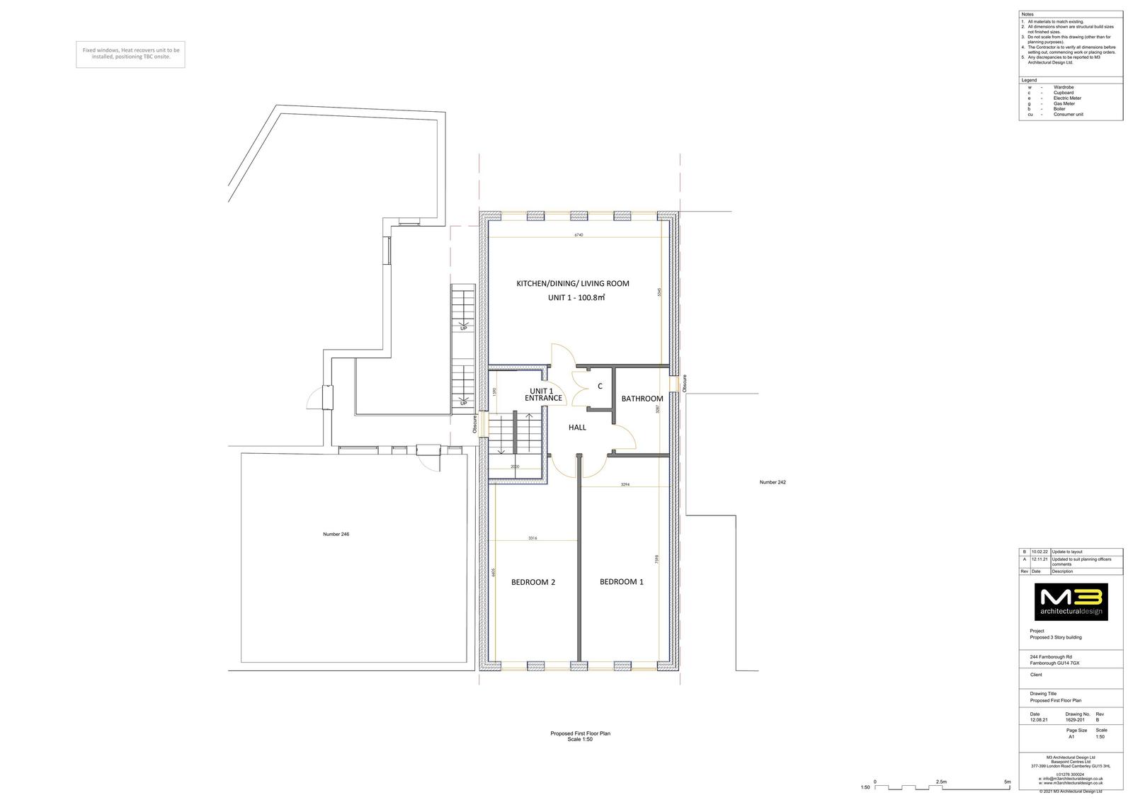
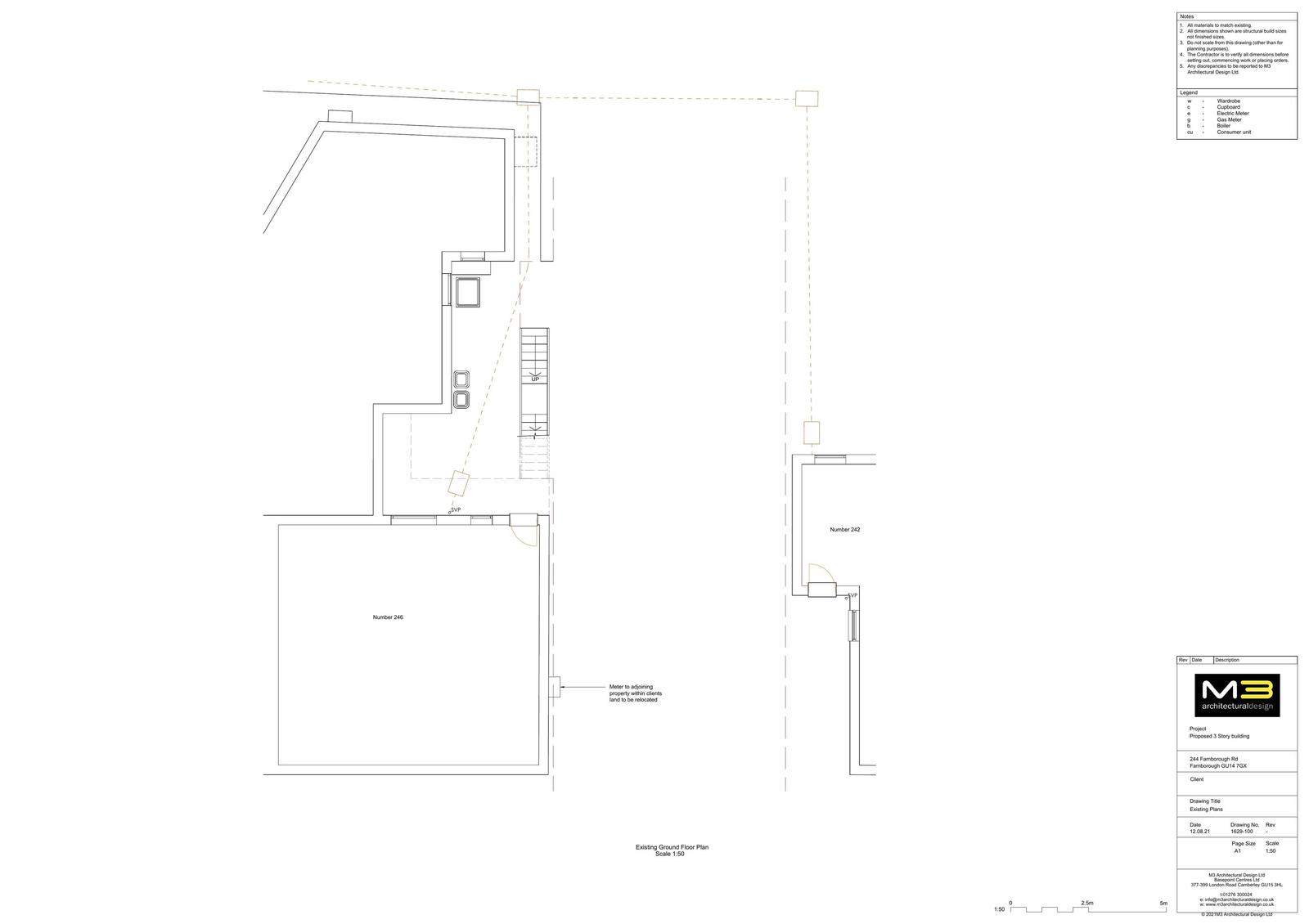
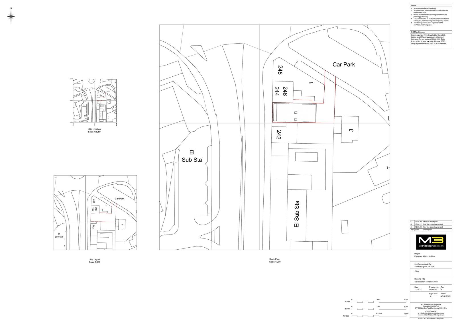
Erection of a three-storey building with Class E Use on ground floor and 2 X 2-bed flats on the upper floors with associated parking

Documents

Application Form
Archived · Original link
Bng form
Report
Not yet archived · Original link
Bng form - appendix
Report
Not yet archived · Original link
Deed of unilateral undertaking to provide planning obligations
Report
Not yet archived · Original link
Report
Archived · Original link
Plans
Archived · Original link
Plans
Archived · Original link
Part 1
Archived · Original link
Uu appendix 1-taylor wimpey/miah
Report
Not yet archived · Original link

Have your say

Your comment matters. Councils must consider every representation that raises material planning considerations.

Write a comment