← Rushmoor Borough Council

Status

Registered House extension
Received
08 Dec 2025
New homes
0

Full proposal

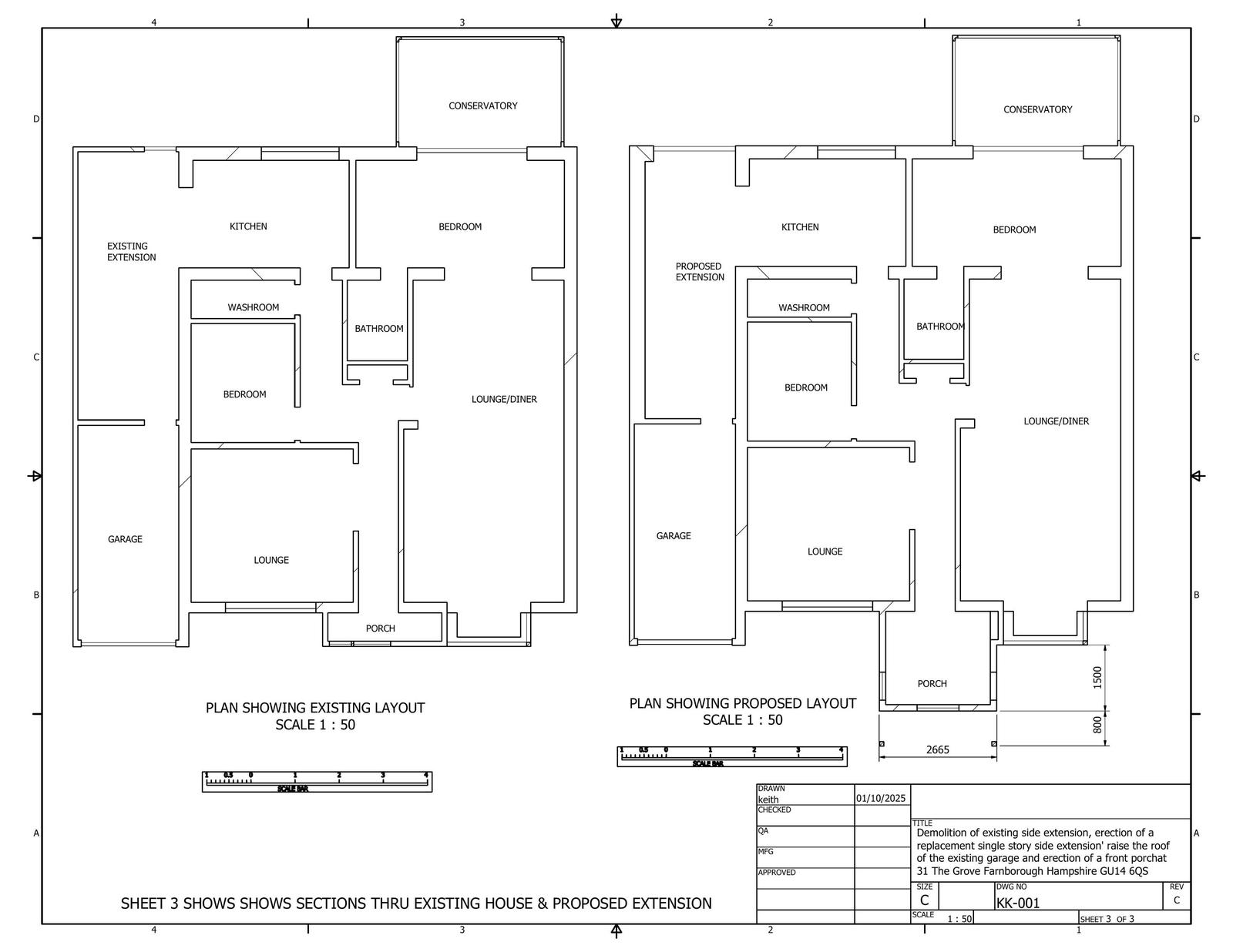
Demolition of existing side extension at the rear of the garage, erection of a replacement single storey side/rear extension, raise the roof of the existing garage and erection of a front porch

Documents

Correspondence
Archived · Original link
Application Form
Archived · Original link
Correspondence
Archived · Original link
Plans
Archived · Original link
Part 1
Archived · Original link
Plans
Archived · Original link

Have your say

Your comment matters. Councils must consider every representation that raises material planning considerations.

Write a comment