← Rushmoor Borough Council

Status

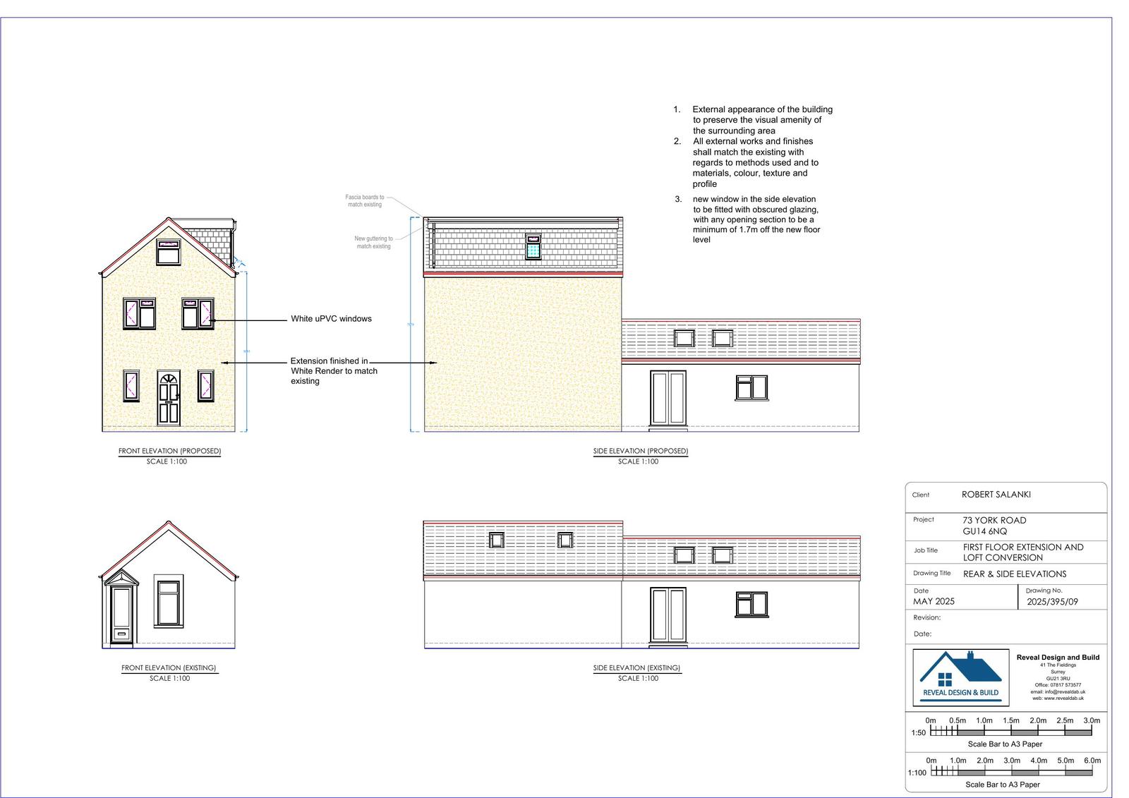
Unknown House extension
Received
22 May 2025
New homes
0

Full proposal

Addition of second storey with roof accommodation and erection of a side dormer

Have your say

Your comment matters. Councils must consider every representation that raises material planning considerations.

Write a comment