← Rother District Council

Status

Pending New housing
Received
10 Sep 2025
New homes
2

Summary

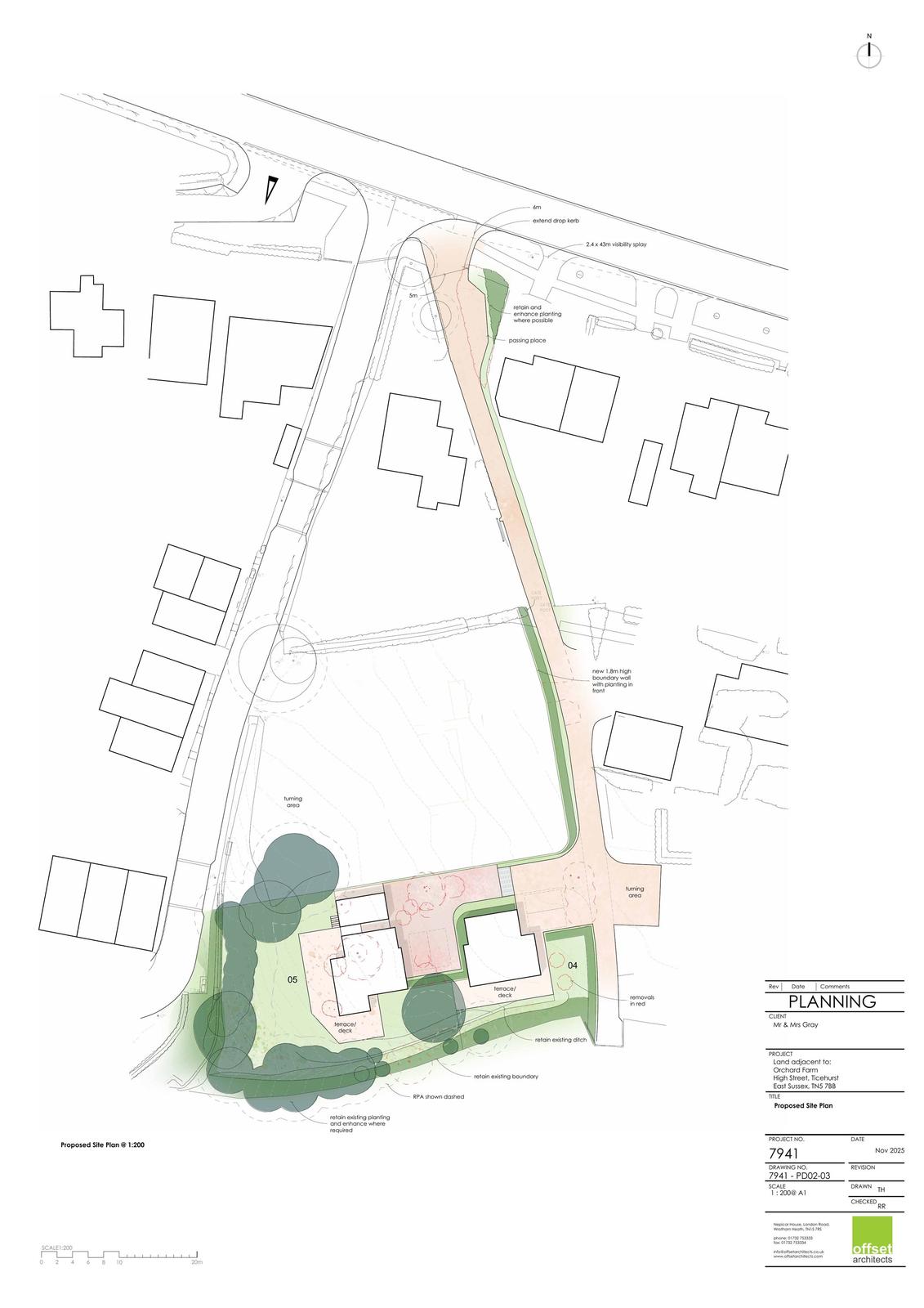
Erection of two 1.5-storey, two-bedroom dwellings.

Full proposal

Erection of 2 1.5 storey 2 bedroom dwellings

Documents

Application Form - No Details
Application Form - No Details
Not yet archived · Original link
Biodiversity Survey
Supporting Information
Not yet archived · Original link
Covering Letter
Supporting Information
Not yet archived · Original link
Design and Access Statement
Supporting Information
Not yet archived · Original link
email-from-applicant-in-response-to-neighbours-comments/objection
Correspondence In
Not yet archived · Original link
ESCC consultation response Highways
Correspondence In
Not yet archived · Original link
Existing Site Sections
Plans
Not yet archived · Original link
planning/uploads/766432181769425802:: ::DSA000050626 GIS
General Correspondence
Not yet archived · Original link
Proposed Elevations Plots 4 and 5
Plans
Not yet archived · Original link
Planning Document Public
Archived · Original link
Plans
Archived · Original link
Site Location Plan
Archived · Original link
Southern Water Planning-Consultation-Response
Correspondence In
Not yet archived · Original link

Have your say

Your comment matters. Councils must consider every representation that raises material planning considerations.

Write a comment