← All councils

Recent applications

The most recent records we hold for this council (up to 200).

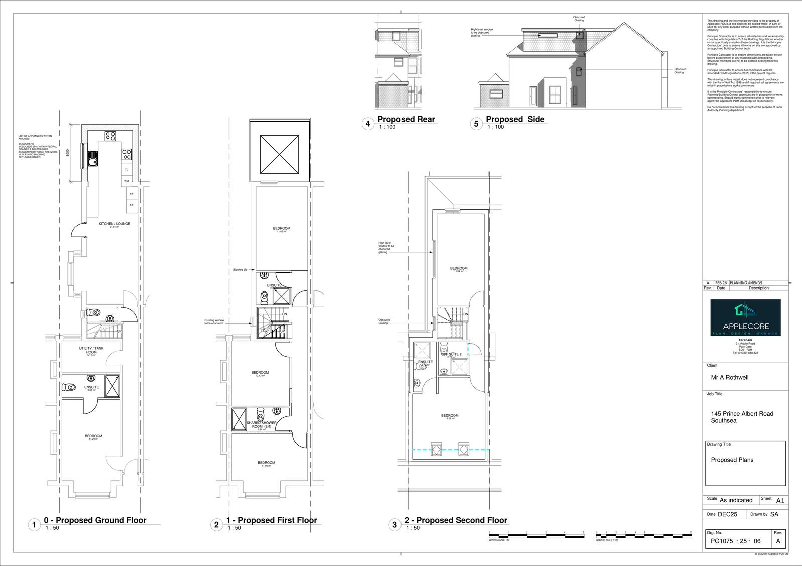
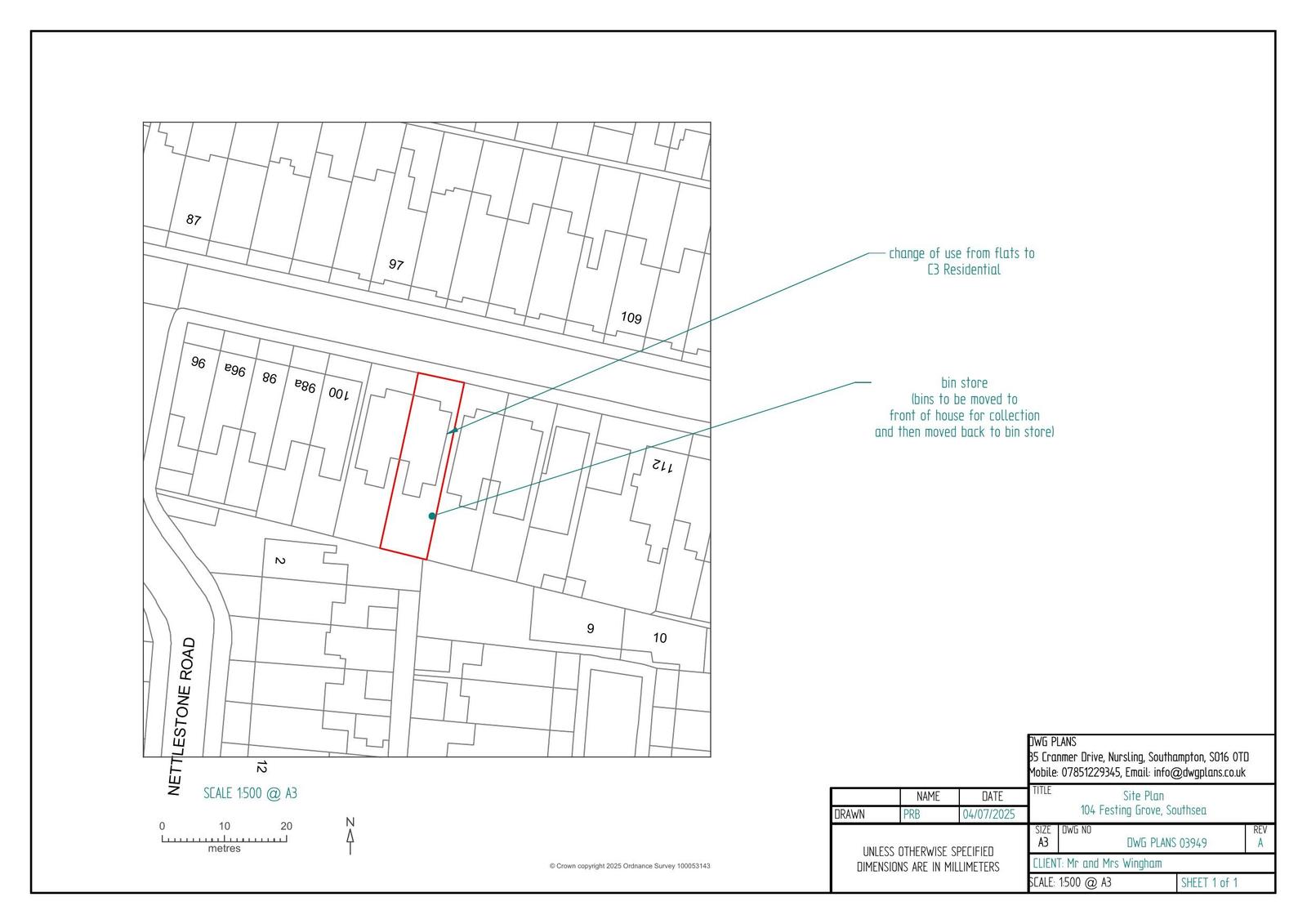
Change of use from dwellinghouse (Class C3) to purposes falling within Class C4 (House in Multiple Occupation) or Class C3 (dwellinghouse)

Type Change of use
Status Awaiting decision
Received 22 Jan 2026

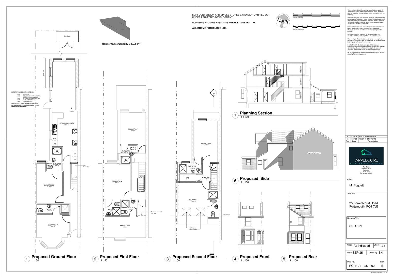
Change of use from dwellinghouse (Class C3) to a 5-bed/7-person house in multiple occupation (Sui Generis)

Type Change of use
Status Awaiting decision
Received 05 Jan 2026

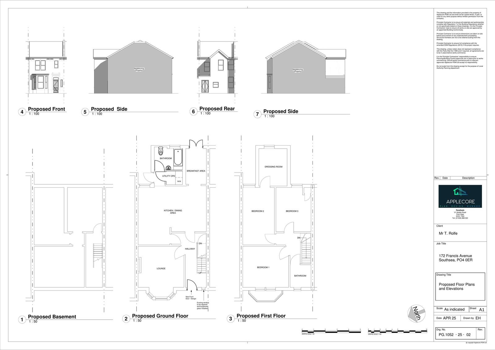
Alterations to roof to enlarge front gable, construction of dormer windows to rear roof slope and roof lantern

Type House extension
Status Awaiting decision
Received 10 Dec 2025
Plan thumbnail

Alterations to fenestration and roof to include hip to gable buildup with construction of dormer window to rear roof slope, and raising roof...

Type House extension
Status Unknown
Received 22 Jan 2026
Plan thumbnail

Construction of single storey rear extension, extending 5m beyond the rear wall, with a height of 2.1m to the eaves and maximum height of 3....

Type House extension
Status Unknown
Received 14 Jan 2026
Plan thumbnail

Construction of two storey front extension with roof enlargement

Type House extension
Status Unknown
Received 19 Dec 2025
Plan thumbnail

Construction of single storey rear extension; extending 6m from the rear wall, with a maximum height of 3m and measuring 3m to the eaves

Type House extension
Status Unknown
Received 06 Jan 2026
Plan thumbnail

Construction of single storey rear extension, extending 6m beyond the rear wall, with a height of 3m to the eaves and maximum height of 3m

Type House extension
Status Unknown
Received 23 Dec 2025
Plan thumbnail

Construction of single storey rear extension; extending 5.72m from the rear wall, with a maximum height of 3.93m and measuring 2.7m to the e...

Type House extension
Status Unknown
Received 30 May 2025
Plan thumbnail

Construction of 4 storey rear extension to enclose external staircase

Type House extension
Status Unknown
Received 28 May 2025
Plan thumbnail

Construction of single storey rear extension; extending 5.5m from the rear wall, with a maximum height of 3m and measuring 3m to the eaves

Type House extension
Status Unknown
Received 27 May 2025
Plan thumbnail

Partial demolition of 24-28 Albert road with facade retention, construction of new foyer, bar, toilets, studio and circulation spaces. Alter...

Type Listed building
Status Unknown
Received 26 May 2025
Plan thumbnail

Partial demolition of 24-28 Albert road with facade retention, construction of new foyer, bar, toilets, studio and circulation spaces. Alter...

Type Listed building
Status Unknown
Received 26 May 2025
Plan thumbnail

Façade alterations to facilitate conversion of offices to 175 residential apartments.

Type Commercial
Status Unknown
Received 13 May 2025
Plan thumbnail

Construction of single storey rear and side extension and installation of 2 no. windows into existing north-east and north-west elevations

Type House extension
Status Unknown
Received 07 May 2025
Plan thumbnail

Change of use between dwellinghouse (C3) and house in multiple occupation (C4).

Type Change of use
Status Unknown
Received 30 Apr 2025
Plan thumbnail

Construction of single storey rear extension; extending 4.45m from the rear wall, with a maximum height of 3.8m and measuring 3m to the eave...

Type House extension
Status Unknown
Received 25 Apr 2025
Plan thumbnail

Remodelling of, and extension to, the existing single storey side/rear extensions (including raising of roof height and the incorporation of...

Type House extension
Status Unknown
Received 17 Apr 2025
Plan thumbnail

Construction of single storey front extension with pitched roof and conversion of garage to habitable room

Type House extension
Status Unknown
Received 16 Apr 2025
Plan thumbnail

Convert retail unit to one four-bedroom dwelling with external alterations.

Type Change of use
Status Unknown
Received 09 Apr 2025
Plan thumbnail

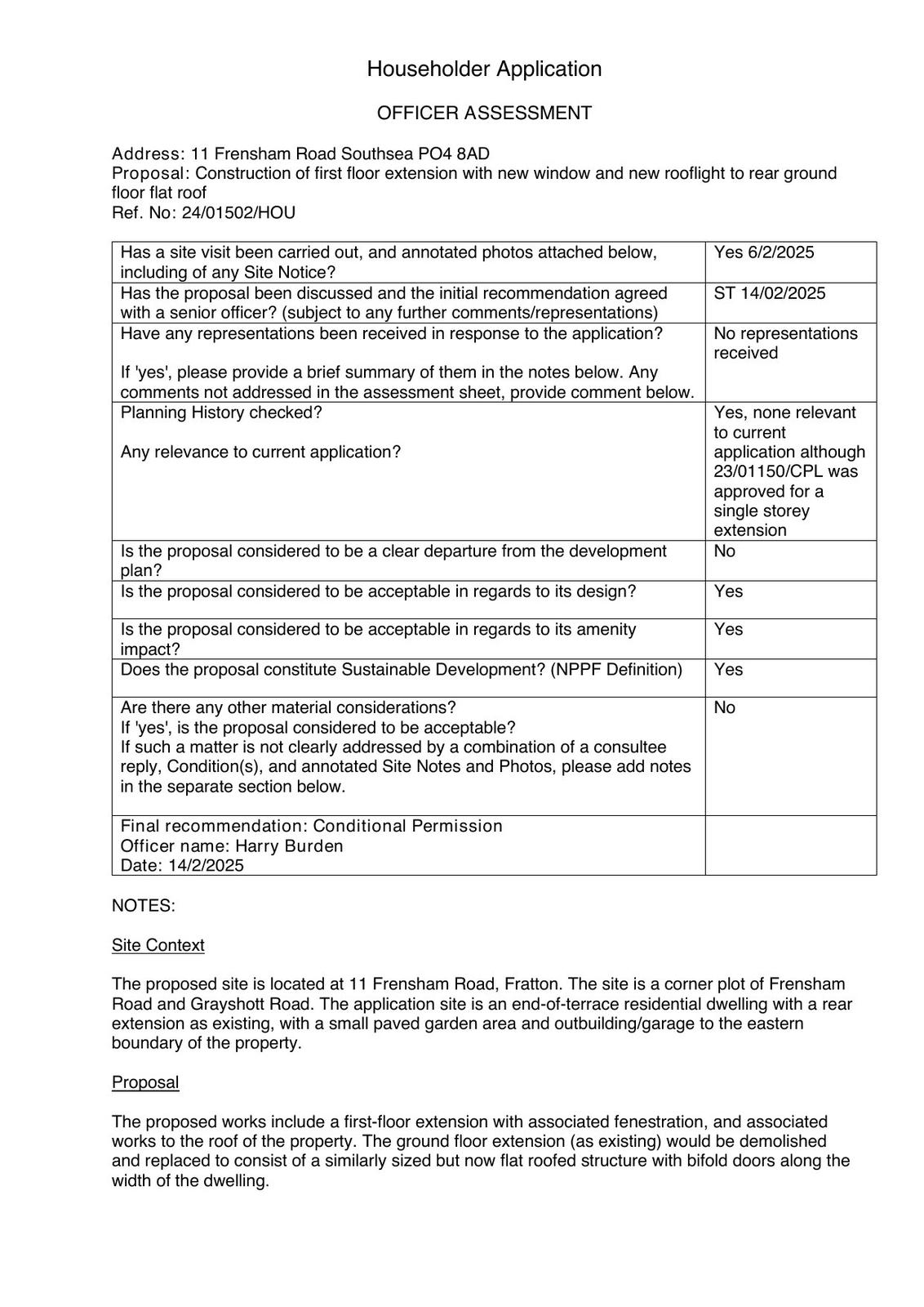
First-floor rear extension with new window and new rooflight to rear ground-floor flat roof.

Type House extension
Status Unknown
Received 16 Dec 2024
Plan thumbnail

Change of use from dwellinghouse (Class C3) to House in Multiple Occupation (Class C4).

Type Change of use
Status Unknown
Received 29 Nov 2024
Plan thumbnail

Change of use from dwellinghouse (Class C3) to House in Multiple Occupation (Class C4).

Type Change of use
Status Unknown
Received 29 Nov 2024
Plan thumbnail

Change of use from dwellinghouse (C3) to HMO (C4) or remain as dwellinghouse (C3).

Type Change of use
Status Unknown
Received 29 Nov 2024
Plan thumbnail

Construction of single storey rear extension; extending 4.08m from the rear wall, with a maximum height of 3m and measuring 3m to the eaves

Type House extension
Status Unknown
Received 23 Dec 2024
Plan thumbnail

Construction of single storey rear extension following removal of existing projection

Type House extension
Status Unknown
Received 06 Dec 2024
Plan thumbnail

Construction of single storey rear extension, and installation of first and second floor windows on the side elevation

Type House extension
Status Unknown
Received 04 Dec 2024
Plan thumbnail

Construction of single storey side extension

Type House extension
Status Unknown
Received 21 Nov 2024
Plan thumbnail

Change of use to allow dwelling to be C4 HMO or remain C3 dwellinghouse.

Type Change of use
Status Unknown
Received 07 Jan 2025
Plan thumbnail

Change of use from a dwellinghouse (Class C3) to a 7-bed/10-person House in Multiple Occupation (Sui Generis) including construction of dorm...

Type Change of use
Status Awaiting decision
Received 02 Jan 2026
Plan thumbnail

Change of use from a dwellinghouse (Class C3) to a 9-bed/12-person House in Multiple Occupation (Sui Generis) including construction of dorm...

Type Change of use
Status Awaiting decision
Received 02 Jan 2026
Plan thumbnail

Change of use from two units (Class C3) to a single unit with purpose falling within dwellinghouse (Class C3) or house in multiple occupatio...

Type Change of use
Status Awaiting decision
Received 21 Jan 2026
Plan thumbnail

Conversion of basement level to form 1no. self-contained residential flat (Class C3), including installation of new windows to the front ele...

Type Change of use
Status Awaiting decision
Received 08 Jan 2026
Plan thumbnail

Change of use from dwellinghouse (Class C3) to purposes falling within dwellinghouse (Class C3) or house in multiple occupation (Class C4)

Type Change of use
Status Unknown
Received 23 Dec 2025
Plan thumbnail

Partial demolition to east side/rear elevation and other elevational alterations including new and replacement windows and doors (to facilit...

Type Demolition
Status Unknown
Received 22 Dec 2025
Plan thumbnail

Prior approval to convert retail unit to 5 self-contained flats (Class C3).

Type Change of use
Status Unknown
Received 22 Dec 2025
Plan thumbnail

Listed building alterations to create two flats from existing commercial unit, with external door/window works.

Type Listed building
Status Unknown
Received 17 Sep 2025
Plan thumbnail

Change of use to form ground-floor commercial unit and two first-floor flats with external alterations.

Type Change of use
Status Unknown
Received 17 Sep 2025
Plan thumbnail

Change of use to 7-bed/7-person House in Multiple Occupation (sui generis).

Type Change of use
Status Awaiting decision
Received 23 Jul 2025
Plan thumbnail

Alterations to roof of existing single storey lean-to at rear from a mono-pitch to a flat roof

Type House extension
Status Unknown
Received 21 Feb 2025

Change of use from a Class C3 dwellinghouse to a 8-bed/8-person House in Multiple Occupation

Type Change of use
Status Unknown
Received 18 Sep 2024

Construction of 58 new residential dwellings (19 x 2-bedroom; 35 x 3-bedroom; and 4 x 4 bedroom) including access, parking, landscaping, and...

Type New housing
Status Unknown
Received 13 Sep 2024

Change of use from 2no. self contained flats to 7-bed house in multiple occupation (Sui Generis), with associated external alterations

Type Change of use
Status Unknown
Received 04 Sep 2024

Conversion of the first and second floors to form 4no. 2-bed apartments and 4no. 1-bed apartments, including provision of bin and cycle stor...

Type Change of use
Status Unknown
Received 02 Sep 2024

Change of use from House in Multiple Occupation (Class C4) to purposes falling within Class C3 (dwellinghouse) or Class C4 (House in Multipl...

Type Change of use
Status Unknown
Received 27 Aug 2024
Plan thumbnail

Change of use from 6-bed/6-person House in Multiple Occupation to 7-bed/7-person House in Multiple Occupation

Type Change of use
Status Awaiting decision
Received 23 Aug 2024

Change of use from dwellinghouse (Class C3) to purposes falling within Class C3 (dwellinghouse) or Class C4 (House in Multiple Occupation)

Type Change of use
Status Unknown
Received 23 Aug 2024

Conversion to form 1no. retail unit and 4no. apartments including construction of additional floor with mansard roof including dormer window...

Type Change of use
Status Unknown
Received 14 Aug 2024

Installation of external lift enclosure and replacement of external staircase and landings to rear elevation, to include installation of ass...

Type Other
Status Unknown
Received 08 Aug 2024

Change of use from a 4-bed/4-person House in Multiple Occupation to a 7-bed/7-person House in Multiple Occupation

Type Change of use
Status Unknown
Received 26 Sep 2024

Change of use from House in Multiple Occupation to 7-bed/7-person House in Multiple Occupation

Type Change of use
Status Unknown
Received 24 Sep 2024
Plan thumbnail

Retrospective application for change of use of upper floors from house in multiple occupation (Class C4) to 5-bed/7-person House of Multiple...

Type Change of use
Status Awaiting decision
Received 25 Sep 2024

Application for Certificate of Lawful Development for the proposed change of use of front room for hairdressing use (between 1000 to 1600) f...

Type Change of use
Status Awaiting decision
Received 26 Sep 2024

Change of use from House in Multiple Occupation (Class C4) to purposes falling within Class C3 (dwellinghouse) or Class C4 (House in Multipl...

Type Change of use
Status Unknown
Received 13 Sep 2024

Change of use from dwellinghouse (Class C3) to purposes falling within Class C3 (dwellinghouse) or Class C4 (House in Multiple Occupation)

Type Change of use
Status Unknown
Received 05 Jul 2024

Replacement of coach house windows with doors; construction of pergola; repair/refurbishment of gates to bin store and installation of exter...

Type Commercial
Status Unknown
Received 13 Nov 2024

External alterations to include replacement of coach house windows with doors; construction of pergola; repair/refurbishment of gates to bin...

Type Listed building
Status Unknown
Received 13 Nov 2024

Conversion of 2no. flats to single dwellinghouse including change of use to purposes falling within dwellinghouse (Class C3) or house in mul...

Type Change of use
Status Unknown
Received 14 Nov 2024

Change of use from House in Multiple Occupation (Class C4) to purposes falling within Class C3 (dwellinghouse) or Class C4 (House in Multipl...

Type Change of use
Status Unknown
Received 07 Nov 2024

Change of use from House in Multiple Occupation (Class C4) to purposes falling within Class C3 (dwellinghouse) or Class C4 (House in Multipl...

Type Change of use
Status Unknown
Received 21 Oct 2024

Conversion from retail (Class E) to 6no. self-contained flats (Class C3) including construction of additional storey, three storey rear exte...

Type Change of use
Status Unknown
Received 10 Oct 2024

Change of use from hotel (Class C1) to 6-bed dwellinghouse (Class C3)

Type Change of use
Status Unknown
Received 08 Oct 2024

Change of use from house in multiple occupation (Class C4), to purposes falling within Class C3 (Dwellinghouse) or House in Multiple Occupat...

Type Change of use
Status Unknown
Received 10 Dec 2024

Change of use from dwellinghouse (Class C3) to purposes falling within classes C3 (dwellinghouse) or C4 (house of multiple occupation)

Type Change of use
Status Unknown
Received 12 Nov 2024

Construction of shop and 8no. flats (following demolition of existing building)

Type New housing
Status Unknown
Received 12 Jun 2024

Application for Certificate of Lawful Development for existing use as a residential dwelling (Class C3)

Type Change of use
Status Unknown
Received 20 Nov 2024

Change of use from house in multiple occupation (Class C4) to 7bed/7person HMO (Sui Generis)

Type Change of use
Status Unknown
Received 24 Dec 2024

Construction of new dwelling following partial demolition of existing extension

Type New housing
Status Unknown
Received 24 Dec 2024

Change of use from dwellinghouse (Class C3) to a 7-bed/9-person House of Multiple Occupation (Sui generis) and installation of no.2 roofligh...

Type Change of use
Status Unknown
Received 24 Dec 2024

Conversion to form 4 flats; external alterations to include removal of shopfront and construction of part single part 2 storey extension

Type Change of use
Status Unknown
Received 20 Dec 2024

Change of use from dwelling house (Class C3) into House of Multiple Occupancy (C4 use class) construction of single storey rear extension af...

Type Change of use
Status Unknown
Received 20 Dec 2024

Change of Use from dwellinghouse to purposes falling within Classes C3 (dwellinghouse) or C4 (House in Multiple Occupation)

Type Change of use
Status Unknown
Received 11 Dec 2024
Plan thumbnail

Change of use and conversion from shop (Class E) to dwellinghouse (Class C3) including dormer to rear roofslope and alterations to front ele...

Type Change of use
Status Unknown
Received 10 Dec 2024
Plan thumbnail

Removal of existing small rear annexe, replacement of roof to flat roof with roof lantern

Type House extension
Status Unknown
Received 02 Dec 2024

Change of use from dwellinghouse (Class C3) to purposes faling within Class C4 (House in Multiple Occupation) or Class C3 (dwellinghouse)

Type Change of use
Status Unknown
Received 29 Nov 2024

Change of use from dwellinghouse (Class C3) to purposes faling within Class C4 (House in Multiple Occupation) or Class C3 (dwellinghouse)

Type Change of use
Status Unknown
Received 29 Nov 2024

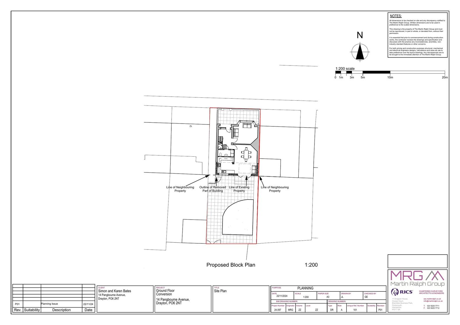
Outline application for construction of additional storey to form 1no. self-contained flat and associated alterations with access, appearanc...

Type House extension
Status Awaiting decision
Received 24 Dec 2025
Plan thumbnail

Change of use from Shop (Class E) to house in multiple occupation (Class C4)

Type Change of use
Status Unknown
Received 19 Sep 2025
Plan thumbnail

Prior approval to convert part of ground-floor retail and flats above into 2 apartments.

Type Change of use
Status Unknown
Received 23 Dec 2025

Change of use from house in multiple occupation (Class C4) to 8 person/8 bedroom house in multiple occupation (sui generis)

Type Change of use
Status Awaiting decision
Received 22 Dec 2025

Change of use from house in multiple occupation (Class C4) to 7 person/7 bedroom house in multiple occupation (sui generis)

Type Change of use
Status Awaiting decision
Received 22 Dec 2025

Retrospective application for change of use from dwellinghouse (Class C3) to purposes falling within dwellinghouse (Class C3) or house in mu...

Type Change of use
Status Awaiting decision
Received 10 Nov 2025
Plan thumbnail

Change of use from hotel (Class C1) as a dwelling (Class C3)

Type Change of use
Status Unknown
Received 20 Feb 2025
Plan thumbnail

Change of use from a 5-bed/5-person House in Multiple Occupation to a 7-bed/7-person House in Multiple Occupation with alterations to includ...

Type Change of use
Status Unknown
Received 05 Sep 2024
Plan thumbnail

Construction of flat roof rear extension

Type House extension
Status Unknown
Received 02 Sep 2024
Plan thumbnail

Construction of additional floor to create 3-bed flat; raising of parapet wall; installation of balustrading and extension to existing fire ...

Type House extension
Status Unknown
Received 14 Aug 2024
Plan thumbnail

Conversion of roof space to form second floor comprising 2no. 1-bed flats with mansard roof; first floor rear extension; new rear entrance a...

Type New housing
Status Unknown
Received 12 Aug 2024
Plan thumbnail

Change of use from House in Multiple Occupation (Class C4) to purposes falling within Class C3 (dwellinghouse) or C4 (House in Multiple Occu...

Type Change of use
Status Unknown
Received 24 Sep 2024
Plan thumbnail

Change of use from Gym (Class Use E) to 14 bed House in Multiple Occupation to include construction of additional 2nd storey and installatio...

Type Change of use
Status Unknown
Received 05 Jun 2024
Plan thumbnail

Conversion from self-contained flat and house in multiple occupation to 2no. maisonettes and construction of a detached bike storage shed to...

Type Change of use
Status Unknown
Received 28 Oct 2024
Plan thumbnail

Conversion of 3-bedroom dwellinghouse to 2no. self contained flats

Type Change of use
Status Unknown
Received 11 Sep 2024
Plan thumbnail

Change of use from dwellinghouse (Class C3) to a 7-bed/7-person house is multiple occupation (sui-generis)

Type Change of use
Status Unknown
Received 20 Nov 2024
Plan thumbnail

Change of use from dwellinghouse (Class C3) to 8-bed/9-person House in Multiple Occupation (Sui generis)

Type Change of use
Status Unknown
Received 25 Oct 2024
Plan thumbnail

Change of use from dwellinghouse (Class C3) to purposes falling within Class C3 (dwellinghouse) or Class C4 (House in Multiple Occupation)

Type Change of use
Status Unknown
Received 28 Nov 2024
Plan thumbnail

Change of use from dwellinghouse (Class C3) to purposes falling within Class C4 (House in Multiple Occupation) or Class C3 (dwellinghouse)

Type Change of use
Status Unknown
Received 29 Nov 2024
Plan thumbnail

Change of use from dwellinghouse (Class C3) to a 7-Bed/7-person House in Multiple Occupation

Type Change of use
Status Unknown
Received 22 Nov 2024
Plan thumbnail

Change of use from dwellinghouse to 8-bed/8-person HMO (sui generis).

Type Change of use
Status Unknown
Received 07 Jan 2025
Plan thumbnail

Change of use to 11-bed/12-person HMO with rear single-storey and side two-storey extensions and dormer.

Type Change of use
Status Unknown
Received 20 Jan 2025
Plan thumbnail

Conversion to form two flats with external alterations and new frontage following shopfront removal.

Type Change of use
Status Unknown
Received 14 Jan 2025
Plan thumbnail

Change of use from dwellinghouse (Class C3) to House in Multiple Occupation (Class C4).

Type Change of use
Status Unknown
Received 29 Nov 2024
Plan thumbnail

Change of use from dwellinghouse (C3) to HMO (C4) or retain as dwellinghouse (C3).

Type Change of use
Status Unknown
Received 13 Jan 2025
Plan thumbnail

Change of use to an 8-bed/8-person house in multiple occupation (HMO).

Type Change of use
Status Unknown
Received 14 Feb 2025
Plan thumbnail

Change of use from dwellinghouse to 8-bed/8-person house in multiple occupation.

Type Change of use
Status Unknown
Received 24 Jan 2025
Plan thumbnail

Two-storey and single-storey rear extensions and subdivision into two dwellings.

Type House extension
Status Unknown
Received 21 Jan 2025
Plan thumbnail

Convert two flats into one C3b (care) dwelling; remove external staircase and alter fenestration.

Type Change of use
Status Unknown
Received 11 Feb 2025
Plan thumbnail

Change of use from dwellinghouse (C3) to 7-bedroom/8-person HMO (sui generis), including garage demolition.

Type Change of use
Status Unknown
Received 13 Mar 2025
Plan thumbnail

Two additional storeys and four-storey rear extension to create four flats.

Type New housing
Status Unknown
Received 26 Mar 2025
Plan thumbnail

Change of use from dwelling (C3) to House in Multiple Occupation (C4) or remain C3.

Type Change of use
Status Unknown
Received 17 Mar 2025
Plan thumbnail

Change of use from dwelling (Class C3) to 7-bed/7-person HMO (sui generis).

Type Change of use
Status Unknown
Received 07 Apr 2025
Plan thumbnail

Prior approval for change of use from Class E to mixed use including two flats.

Type Change of use
Status Unknown
Received 19 Mar 2025
Plan thumbnail

Convert two self-contained flats into one dwellinghouse (return to single dwelling).

Type Change of use
Status Unknown
Received 25 Apr 2025
Plan thumbnail

Change dwellinghouse (Class C3) to 7-person, 7-bedroom HMO (Sui Generis).

Type Change of use
Status Unknown
Received 07 Mar 2025
Plan thumbnail

Change of use from C4 HMO to seven-bed/ seven-person HMO (sui generis).

Type Change of use
Status Unknown
Received 08 May 2025
Plan thumbnail

External and internal alterations including new mansard to create a penthouse apartment.

Type Listed building
Status Unknown
Received 22 Apr 2025
Plan thumbnail

Convert single dwelling into two self-contained flats.

Type Change of use
Status Unknown
Received 18 Jun 2025
Plan thumbnail

Prior approval to change ground-floor office (Class E) to one dwellinghouse.

Type Change of use
Status Unknown
Received 17 Jun 2025
Plan thumbnail

Change of use from two self-contained flats to a single dwellinghouse (net loss of one unit).

Type Change of use
Status Unknown
Received 29 Jul 2025
Plan thumbnail

Change of use from dwellinghouse (Class C3) to purposes falling within dwellinghouse (Class C3) or house in multiple occupation (Class C4), ...

Type Change of use
Status Unknown
Received 23 Jul 2025
Plan thumbnail

Change of use from dwellinghouse (Class C3) to 7 person/7 bedroom house in multiple occupation (Sui Generis)

Type Change of use
Status Unknown
Received 25 Sep 2025
Plan thumbnail

Change of use from house in multiple occupation (Class C4), to purposes falling within dwellinghouse (Class C3), or house in multiple occupa...

Type Change of use
Status Unknown
Received 23 Sep 2025
Plan thumbnail

Demolition of University House and two associated annex buildings

Type Demolition
Status Unknown
Received 09 Oct 2025
Plan thumbnail

Convert existing first floor house to 2 self-contained flats.

Type Change of use
Status Unknown
Received 30 Sep 2025
Plan thumbnail

Conversion of 2no. one-bedroom flats into 1no, four-bedroom dwelling with associated alterations and removal of front porch and steel stairc...

Type Change of use
Status Unknown
Received 04 Nov 2025

Conversion to form two flats at ground floor; external alterations to include construction of single storey extension at first floor

Type Change of use
Status Awaiting decision
Received 10 Dec 2025
Plan thumbnail

Conversion of care home to five self-contained flats.

Type Change of use
Status Awaiting decision
Received 26 Nov 2025

Additional storey to existing residential building creating two one-bedroom flats with external alterations.

Type New housing
Status Awaiting decision
Received 24 Nov 2025
Plan thumbnail

Change of use from Place of Worship (Class F1(f)) and residential flat (Class C3), to 2no. offices at ground floor (Class E) and 3no. reside...

Type Change of use
Status Unknown
Received 15 Oct 2025

Outline application for construction of 9 dwellings.

Type New housing
Status Decided
Received 30 Jul 2025