← North Northamptonshire Council

Status

In progress Change of use
Received
Last month
New homes
0

Full proposal

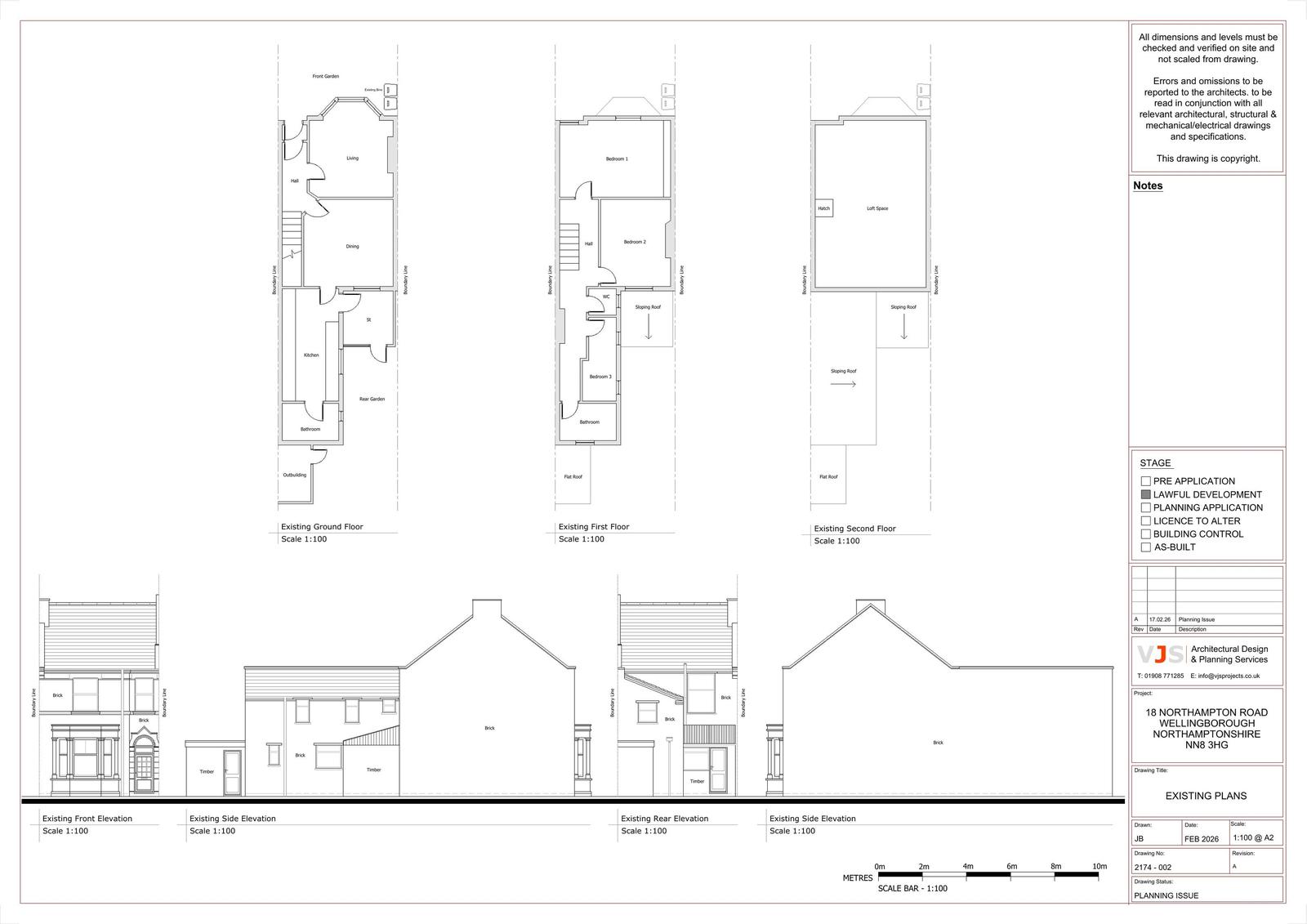
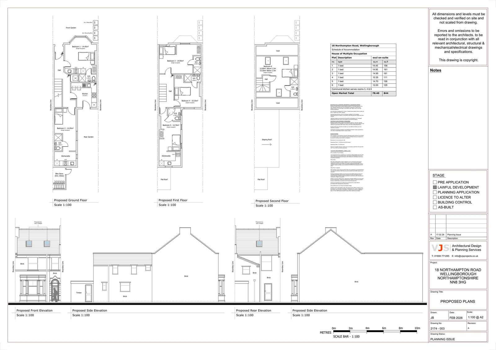
C4 small HMO. Loft Conversion.

Documents

Application Form
Archived · Original link
Plans and Drawings
Archived · Original link
Plans and Drawings
Archived · Original link
Plans and Drawings
Archived · Original link

Have your say

Your comment matters. Councils must consider every representation that raises material planning considerations.

Write a comment