← North Northamptonshire Council

Status

In progress House extension
Received
19 Jan 2026
New homes
0

Full proposal

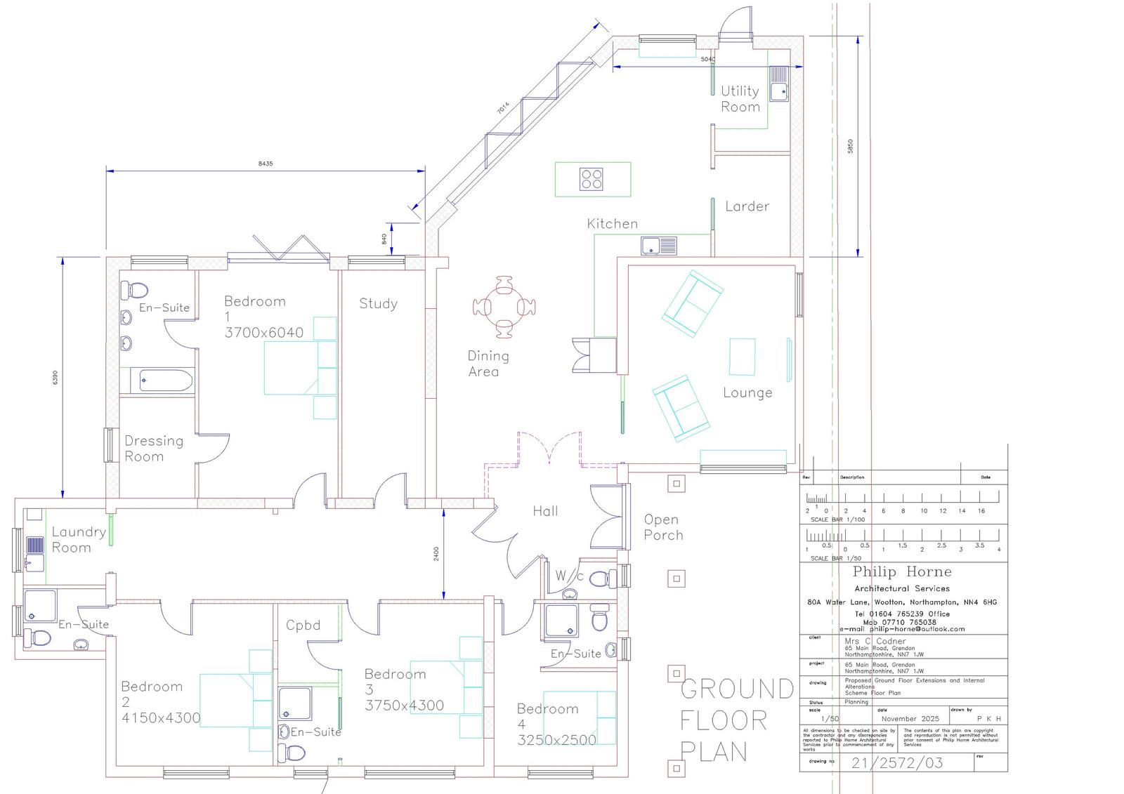
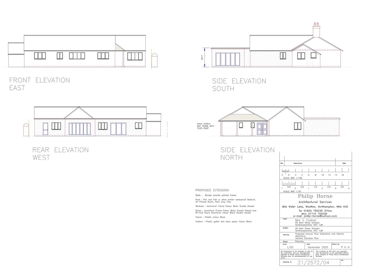
Single storey rear extensions, conversion of integral garage to habitable room including removal of garage door and insertion of a window and brick infilling. Insertion of window in side elevation. Detached Single Garage

Documents

Plans and Drawings
Archived · Original link
Plans and Drawings
Archived · Original link
Plans and Drawings
Archived · Original link
Plans and Drawings
Archived · Original link
Plans and Drawings
Archived · Original link
Plans and Drawings
Archived · Original link
Plans and Drawings
Archived · Original link

Have your say

Your comment matters. Councils must consider every representation that raises material planning considerations.

Write a comment