← Back to North Northamptonshire Council
Application
26/00025/FUL
North Northamptonshire Council · IDOX
Status
In progress
Received
Last month
New dwellings
n/a
What you can do
Take Action
Make your voice heard. Authorities need to hear from people who support new homes.
Full Proposal
Use of threshing barn as a residential annexe
Detail pages
- View live detail on council site
- No archived detail page available.
Documents
Applicationformredacted
Application Form
Not downloaded
· Council link
Existing and proposed site plan
Plans and Drawings
Archived copy
· Council link
Existing elevations
Plans and Drawings
Not downloaded
· Council link
Existing floor plans
Plans and Drawings
Not downloaded
· Council link
Heritage impact assessment
Document - Supporting
Not downloaded
· Council link
Location plan
Plans and Drawings
Not downloaded
· Council link
Planning, design and access statement
Document - Supporting
Not downloaded
· Council link
Proposed elevations
Plans and Drawings
Not downloaded
· Council link
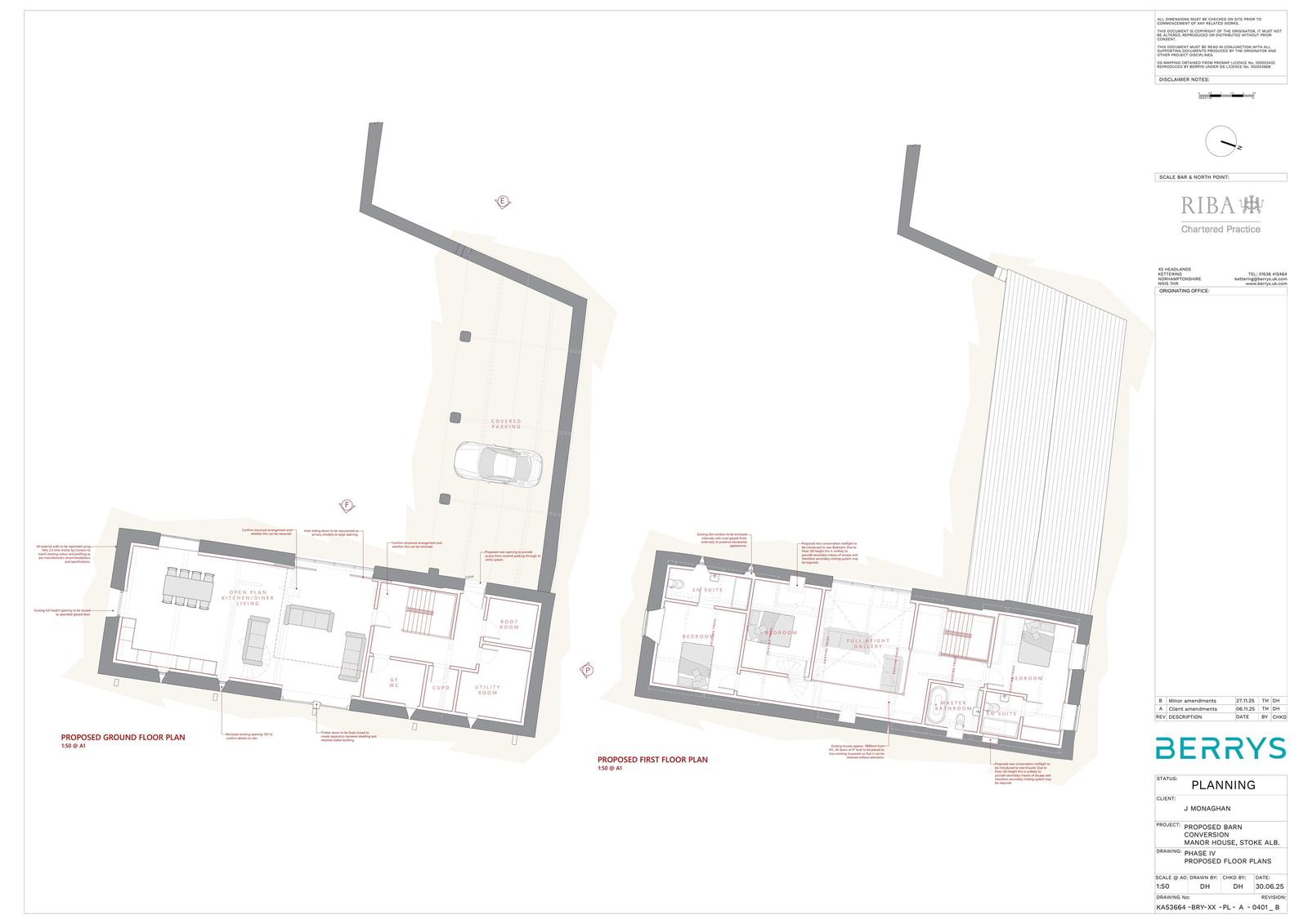
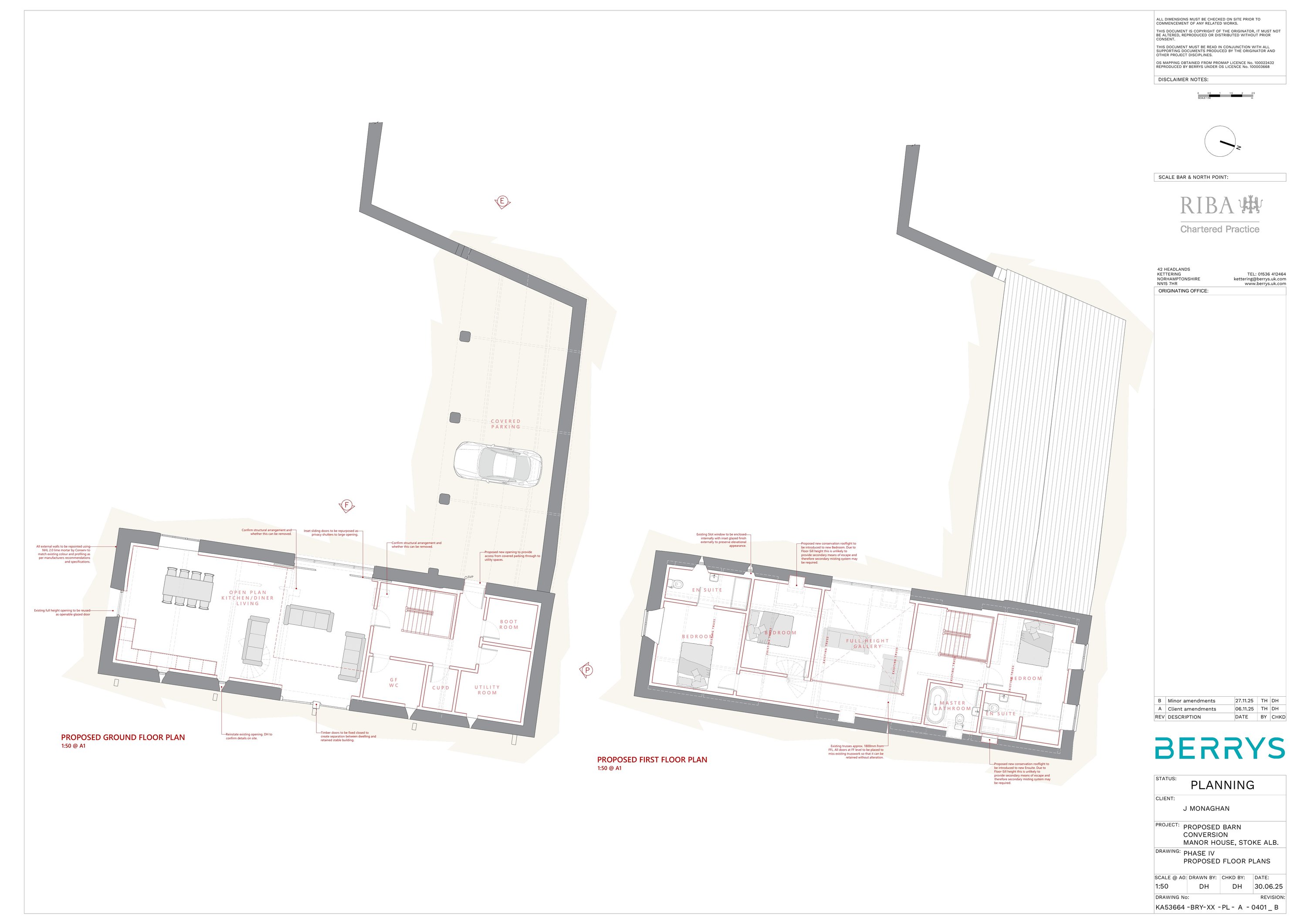
Proposed floor plans
Plans and Drawings
Archived copy
· Council link