← North Northamptonshire Council

Status

In progress New housing
Received
05 Jan 2026
New homes
3

Full proposal

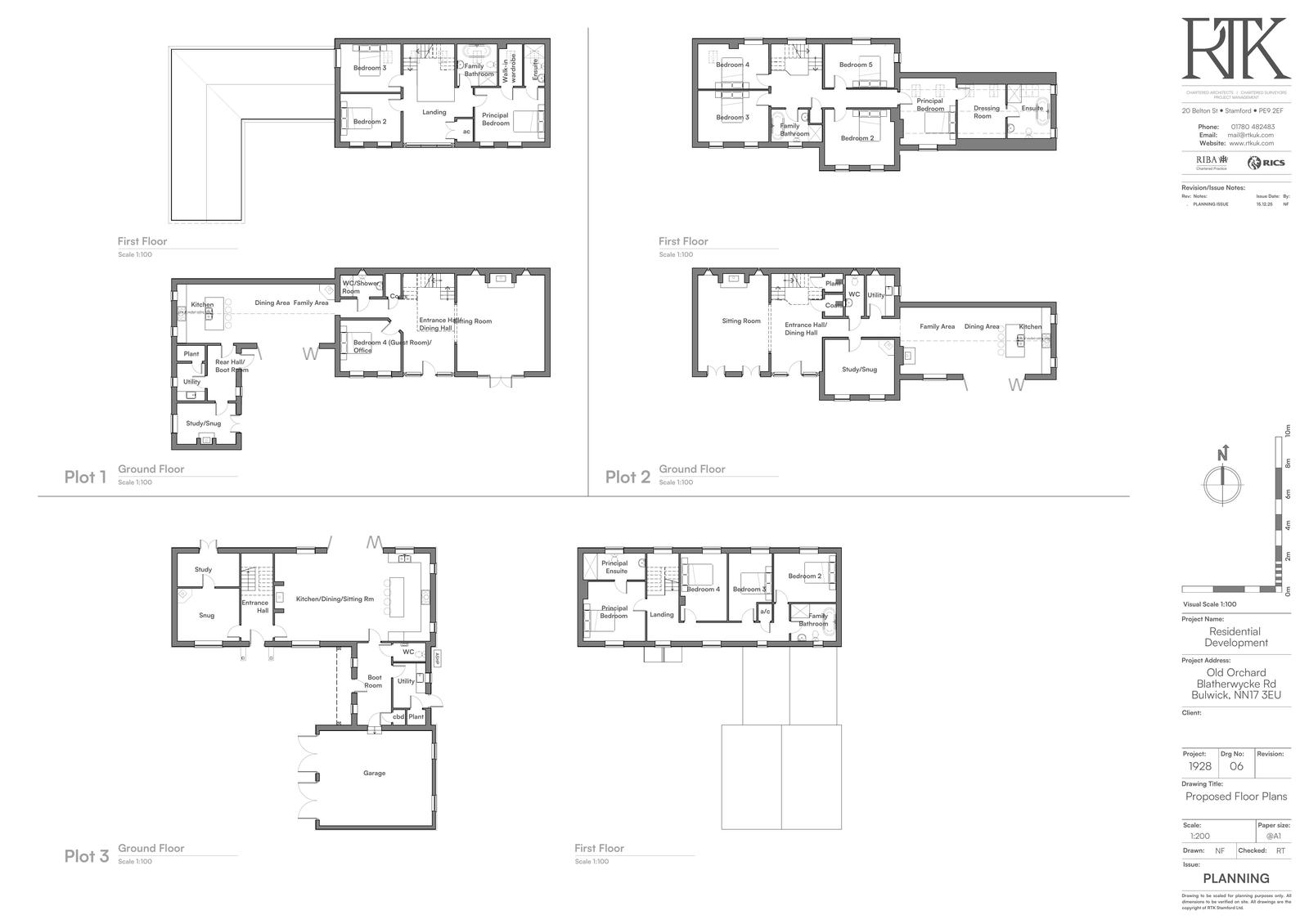
Outline planning for the demolition of existing house and tennis court and erection of 3 no. dwellings (all matters reserved except access and layout)

Documents

Applicationformredacted
Application Form
Not yet archived · Original link
Biodiversity net gain (bng) documents and drawings
Plans and Drawings
Not yet archived · Original link
Bng appraisal plan
Plans and Drawings
Not yet archived · Original link
Design and access statement
Document - Supporting
Not yet archived · Original link
Existing block plan
Plans and Drawings
Not yet archived · Original link
Plans and Drawings
Archived · Original link
Location plan
Plans and Drawings
Not yet archived · Original link
Proposed block plan
Plans and Drawings
Not yet archived · Original link
Plans and Drawings
Archived · Original link
Proposed street elevations
Plans and Drawings
Not yet archived · Original link

Have your say

Your comment matters. Councils must consider every representation that raises material planning considerations.

Write a comment