← Back to North Northamptonshire Council
Application
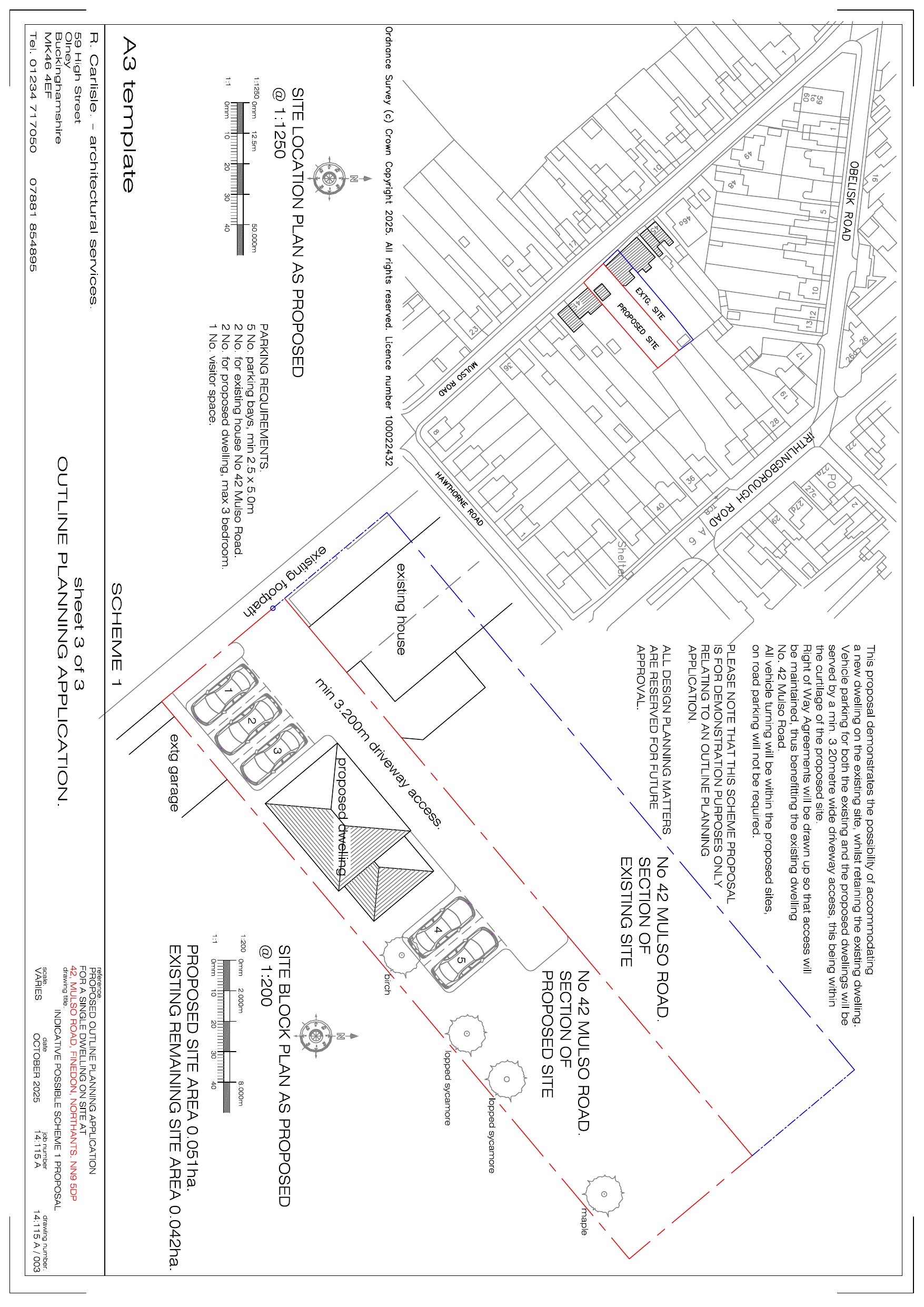
25/02059/OUT
North Northamptonshire Council · IDOX
Status
In progress
Received
28 Nov 2025
New dwellings
n/a
What you can do
Take Action
Make your voice heard. Authorities need to hear from people who support new homes.
Full Proposal
Outline planning permission for 1no. detached dwelling, associated parking and access. (all matters reserved)
Detail pages
- View live detail on council site
- No archived detail page available.
Documents
Application form
Application Form
Not downloaded
· Council link
Applicationformredacted
Application Form
Not downloaded
· Council link
Biodiversity net gain (bng) documents and drawings
Other
Not downloaded
· Council link
Biodiversity net gain (bng) documents and drawings
Other
Not downloaded
· Council link
Design and access statement
Other
Not downloaded
· Council link
Location plan
Plans and Drawings
Not downloaded
· Council link
Site plan
Plans and Drawings
Archived copy
· Council link
Site plan
Plans and Drawings
Archived copy
· Council link
Sustainability assessment
Other
Not downloaded
· Council link