← North Northamptonshire Council

Status

In progress New housing
Received
16 Sep 2025
New homes
1

Full proposal

Construction of 1 no. self-build dwelling

Documents

Applicationformredacted
Application Form
Not yet archived · Original link
Location plan and proposed block plan
Plans and Drawings
Not yet archived · Original link
Proposed elevations
Plans and Drawings
Not yet archived · Original link
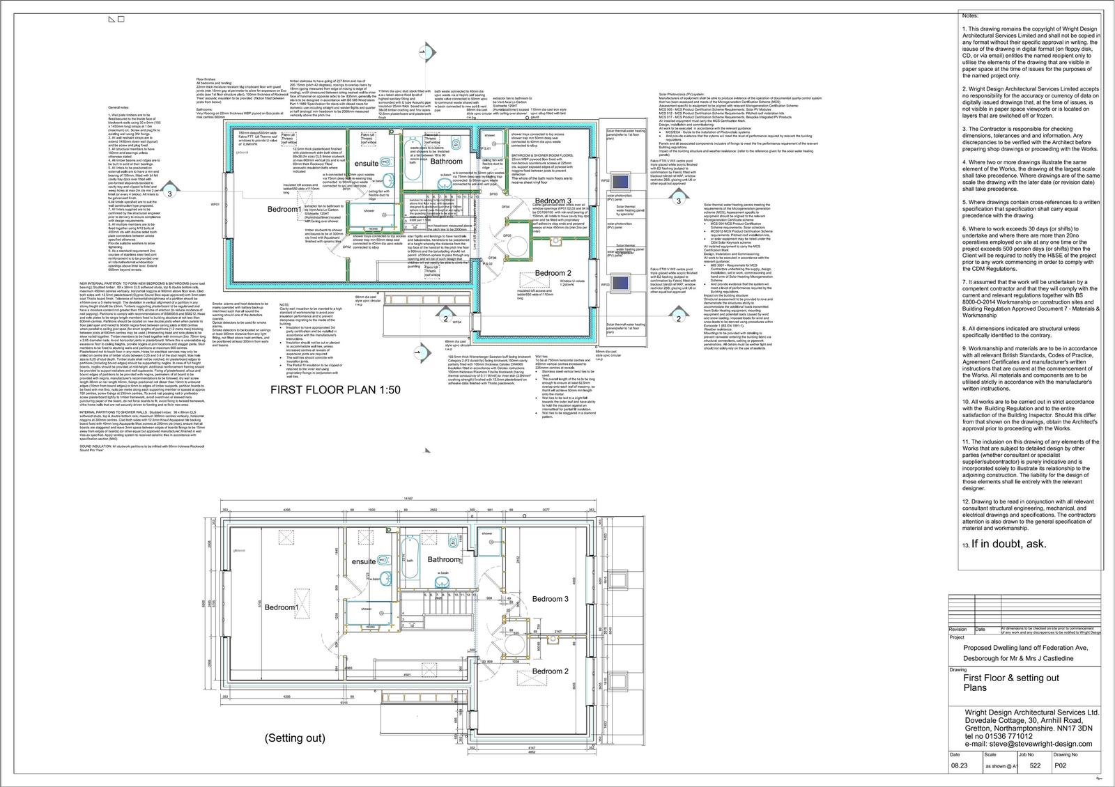
Plans and Drawings
Archived · Original link
Plans and Drawings
Archived · Original link
Plans and Drawings
Archived · Original link

Have your say

Your comment matters. Councils must consider every representation that raises material planning considerations.

Write a comment