← North Northamptonshire Council

Status

In progress Agricultural
Received
28 Aug 2025
New homes
1

Full proposal

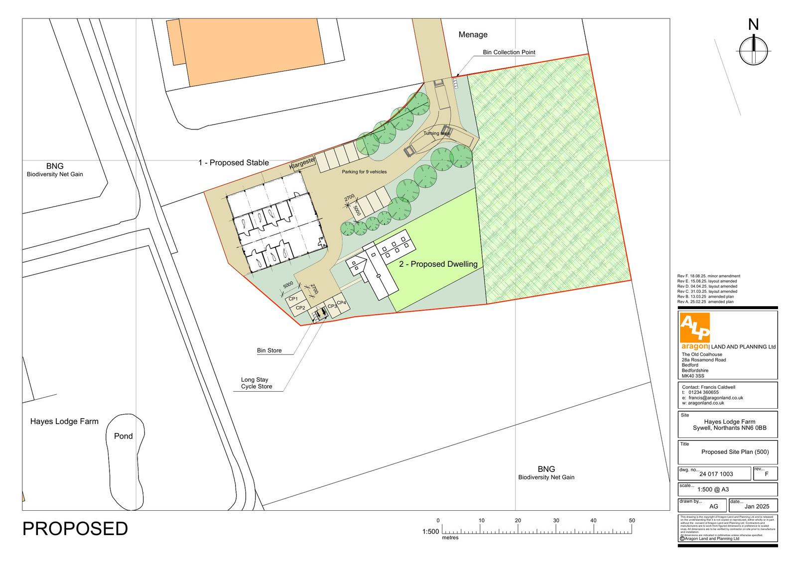
Erection of Rural Workers Dwelling and Stables, hardstanding for access,parking and turning of vehicles and landscaping.

Documents

Applicationformredacted
Application Form
Not yet archived · Original link
Archaeology
Statutory Comment
Not yet archived · Original link
Built heritage
Statutory Comment
Not yet archived · Original link
Comment - general
Statutory Comment
Not yet archived · Original link
Comments - nnc archaeology
Statutory Comment
Not yet archived · Original link
Construction environmental management plan
Document - Supporting
Not yet archived · Original link
Existing bng habitat map
Plans and Drawings
Not yet archived · Original link
Plans and Drawings
Archived · Original link
Heritage statement
Document - Supporting
Not yet archived · Original link
Highways
Statutory Comment
Not yet archived · Original link
Justification statement
Document - Supporting
Not yet archived · Original link
Location plan
OS Extract
Not yet archived · Original link
Location plan
Plans and Drawings
Not yet archived · Original link
Naturespace 2
Statutory Comment
Not yet archived · Original link
Nnc ecology
Statutory Comment
Not yet archived · Original link
Northants badger group
Statutory Comment
Not yet archived · Original link
Northants police
Statutory Comment
Not yet archived · Original link
Objection
Public Comment
Not yet archived · Original link
Planning and design statement
Document - Supporting
Not yet archived · Original link
Preliminary ecological appraisal
Document - Supporting
Not yet archived · Original link
Proposed bng habitat map
Plans and Drawings
Not yet archived · Original link
Proposed elevations
Plans and Drawings
Not yet archived · Original link
Proposed floorplans
Plans and Drawings
Not yet archived · Original link
Plans and Drawings
Archived · Original link
Plans and Drawings
Archived · Original link
Proposed stable elevations
Plans and Drawings
Not yet archived · Original link
Proposed stable floorplans
Plans and Drawings
Not yet archived · Original link
Site biodiversity data
Document - Supporting
Not yet archived · Original link
Sywell parish council
Statutory Comment
Not yet archived · Original link
Sywell parish council
Statutory Comment
Not yet archived · Original link

Have your say

Your comment matters. Councils must consider every representation that raises material planning considerations.

Write a comment