← Newport City Council

Status

Decided New housing
Received
12 Dec 2024
New homes
1

Full proposal

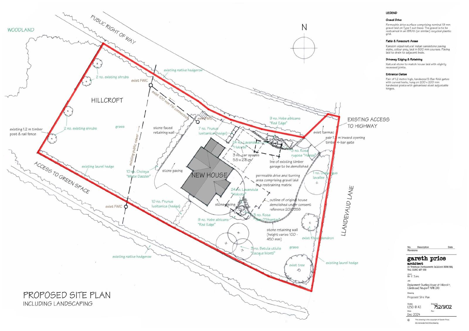
ERECTION OF A REPLACEMENT DWELLINGHOUSE AND ASSOCIATED HARD LANDSCAPING SCHEME (PART RETROSPECTIVE) (RESUBMISSION OF 23/0853)

Documents

Application Form
Application Form
Not yet archived · Original link
CEMP
Supporting Information
Not yet archived · Original link
Consultation Response - Highways
Consult Response Statutory
Not yet archived · Original link
Consultation Response - Landscape.
Consult Response Statutory
Not yet archived · Original link
Consultation Response - Waste
Consult Response Statutory
Not yet archived · Original link
Consultation Response - Welsh Water Dwr Cymru
Consult Response Statutory
Not yet archived · Original link
Covering Letter
Supporting Information
Not yet archived · Original link
Decision Notice
Decision Notice
Not yet archived · Original link
Materials and Finishes copy.
Supporting Information
Not yet archived · Original link
Officer Report - Delegated (Final)
Officer Report
Not yet archived · Original link
Orig House Elevations
Drawing
Not yet archived · Original link
Orig House Plans
Drawing
Not yet archived · Original link
Photographs
Supporting Information
Not yet archived · Original link
Planting and Maintenance Spec 2 Hillcroft.
Supporting Information
Not yet archived · Original link
Proposed Elevations 1 -752.3.04
Drawing
Not yet archived · Original link
Proposed Elevations 2 - 752.3.05
Drawing
Not yet archived · Original link
Drawing - OS Site Location Plan
Archived · Original link
Site Notice - SNSTD
Site/Press Notice
Not yet archived · Original link

Have your say

Your comment matters. Councils must consider every representation that raises material planning considerations.

Write a comment