← Manchester City Council

Status

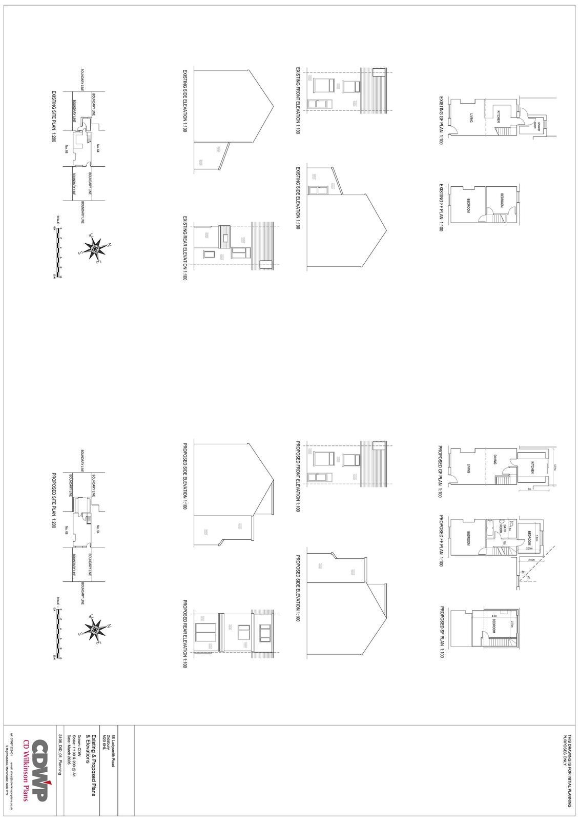
Awaiting decision House extension
Received
Last month
New homes
0

Full proposal

Erection of a two-storey rear extension together within the installation of a rear roof dormer.

Documents

Drawing - Existing & Proposed
Archived · Original link
Drawing - Location Plan
Archived · Original link

Have your say

Your comment matters. Councils must consider every representation that raises material planning considerations.

Write a comment