← Manchester City Council

Status

Awaiting decision House extension
Received
22 Jan 2026
New homes
0

Full proposal

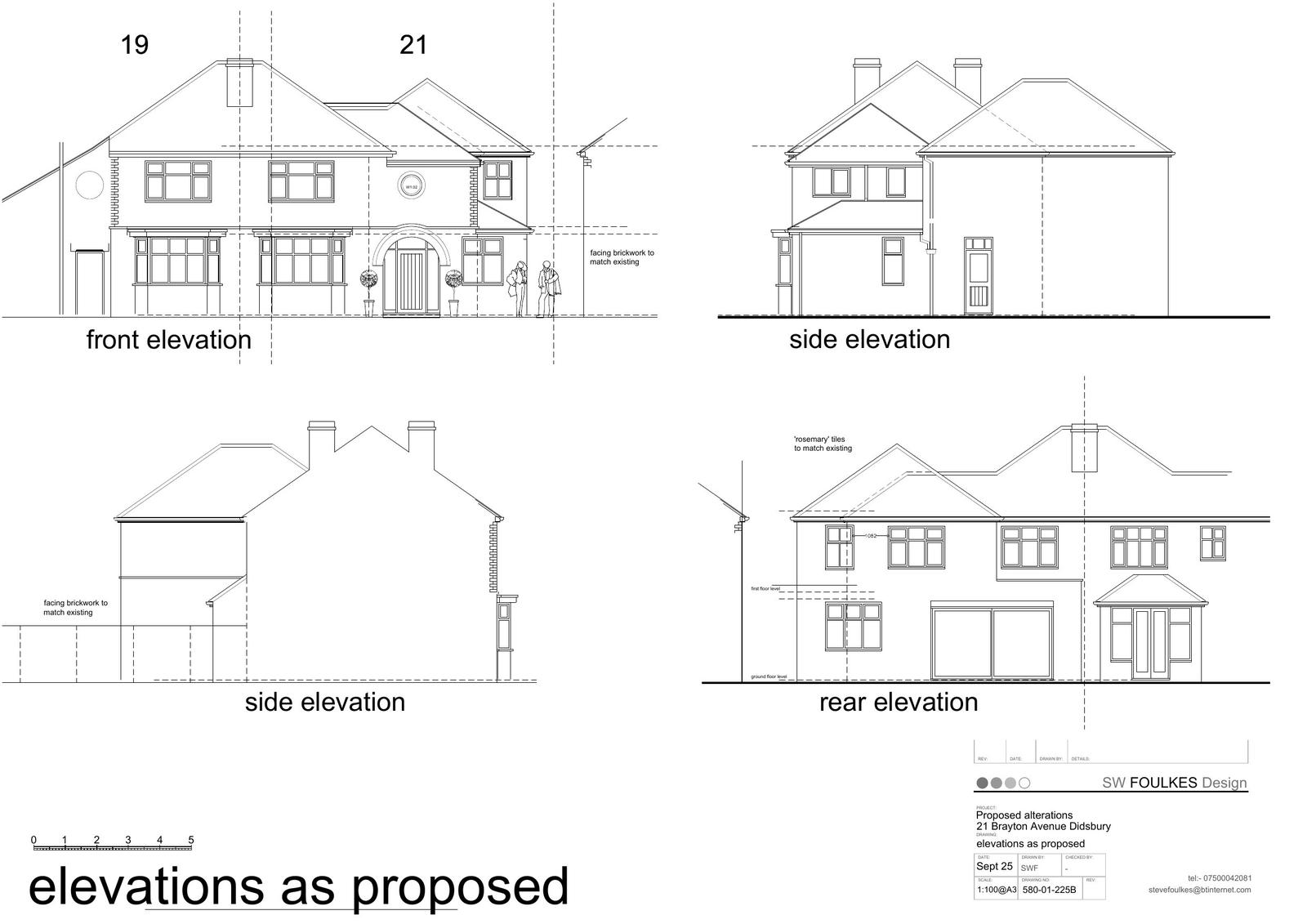
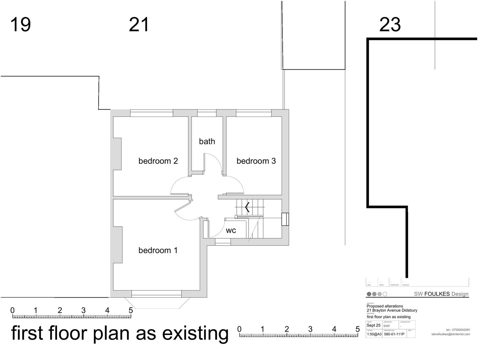
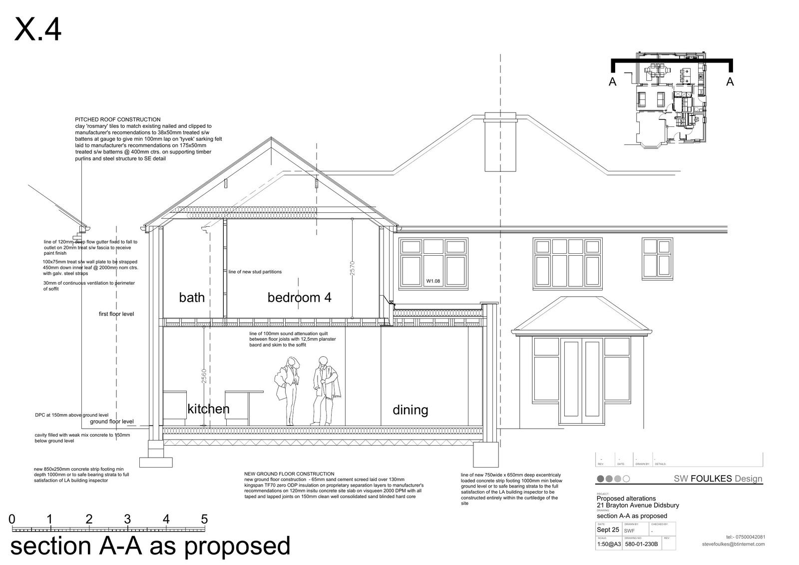
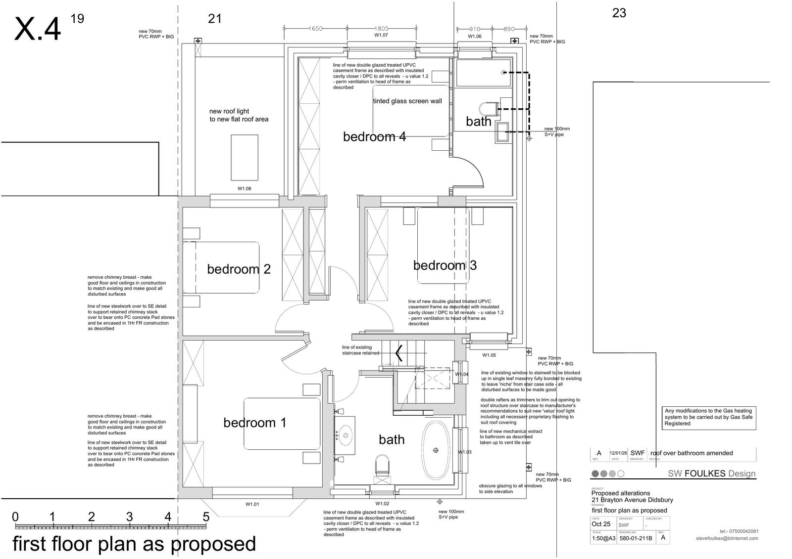
Erection of part single-storey, part two-storey side and rear extension and front extension.

Documents

Drawing - Existing
Archived · Original link
Drawing - Proposed
Archived · Original link
Drawing - Site Plan
Archived · Original link
Drawing - Proposed
Archived · Original link
Drawing - Existing
Archived · Original link
Drawing - Existing
Archived · Original link
Drawing - Proposed
Archived · Original link
Drawing - Existing
Archived · Original link
Drawing - Proposed
Archived · Original link
Drawing - Proposed
Archived · Original link

Have your say

Your comment matters. Councils must consider every representation that raises material planning considerations.

Write a comment