← Manchester City Council

Status

Awaiting decision House extension
Received
Last month
New homes
0

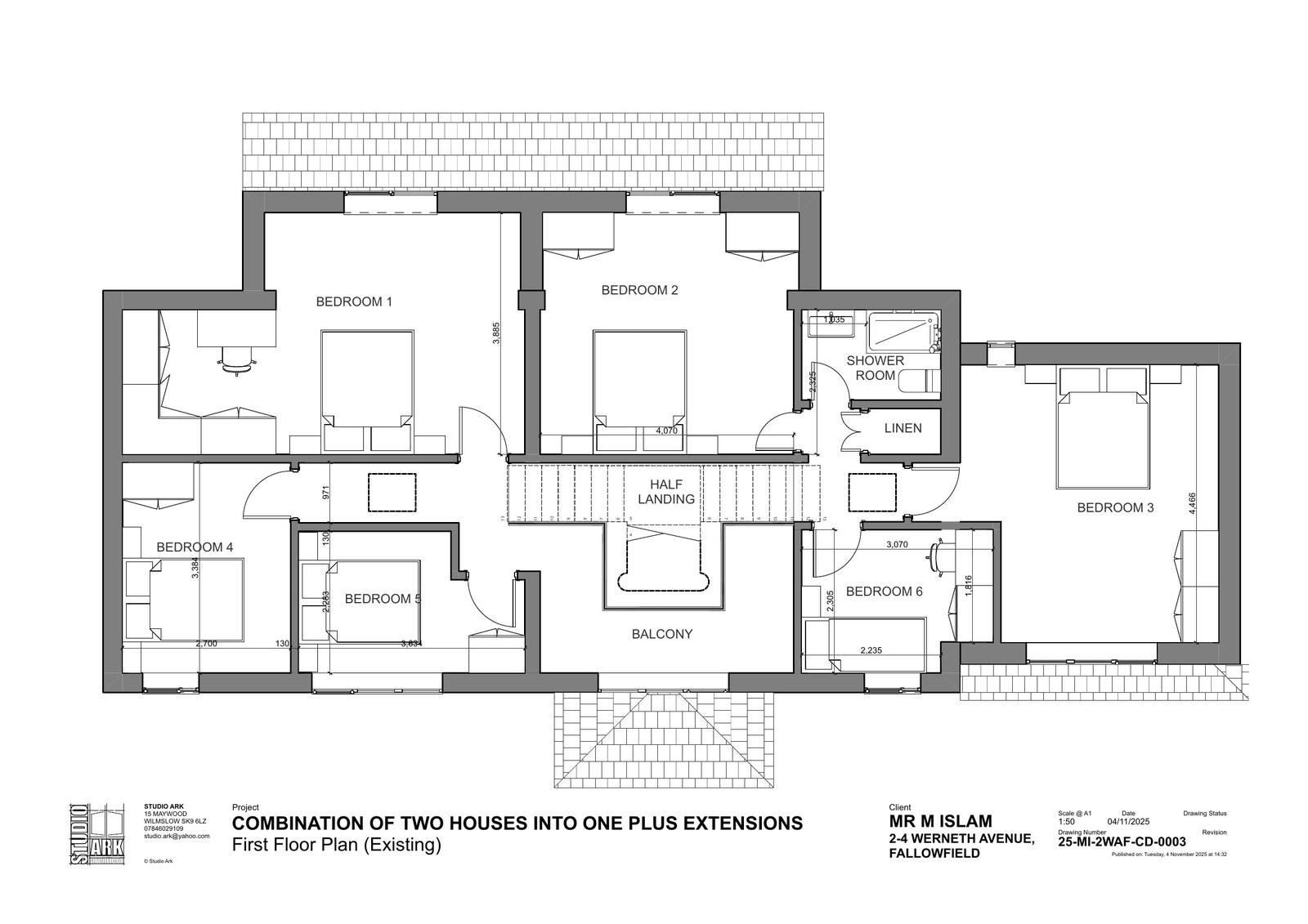
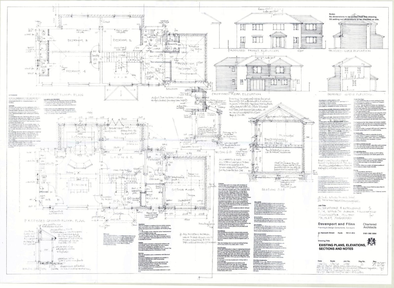
Full proposal

Erection of single-storey rear extension with part single and part two-storey side extension and porch.

Documents

Drawing - Existing
Archived · Original link
Drawing - Existing
Archived · Original link
Drawing - Existing
Archived · Original link
Drawing - Proposed
Archived · Original link
Drawing - Existing & Proposed
Archived · Original link
Drawing - Location Plan
Archived · Original link

Have your say

Your comment matters. Councils must consider every representation that raises material planning considerations.

Write a comment