← Leeds City Council

Status

Current Renewable energy
Received
Last month
New homes
0

Full proposal

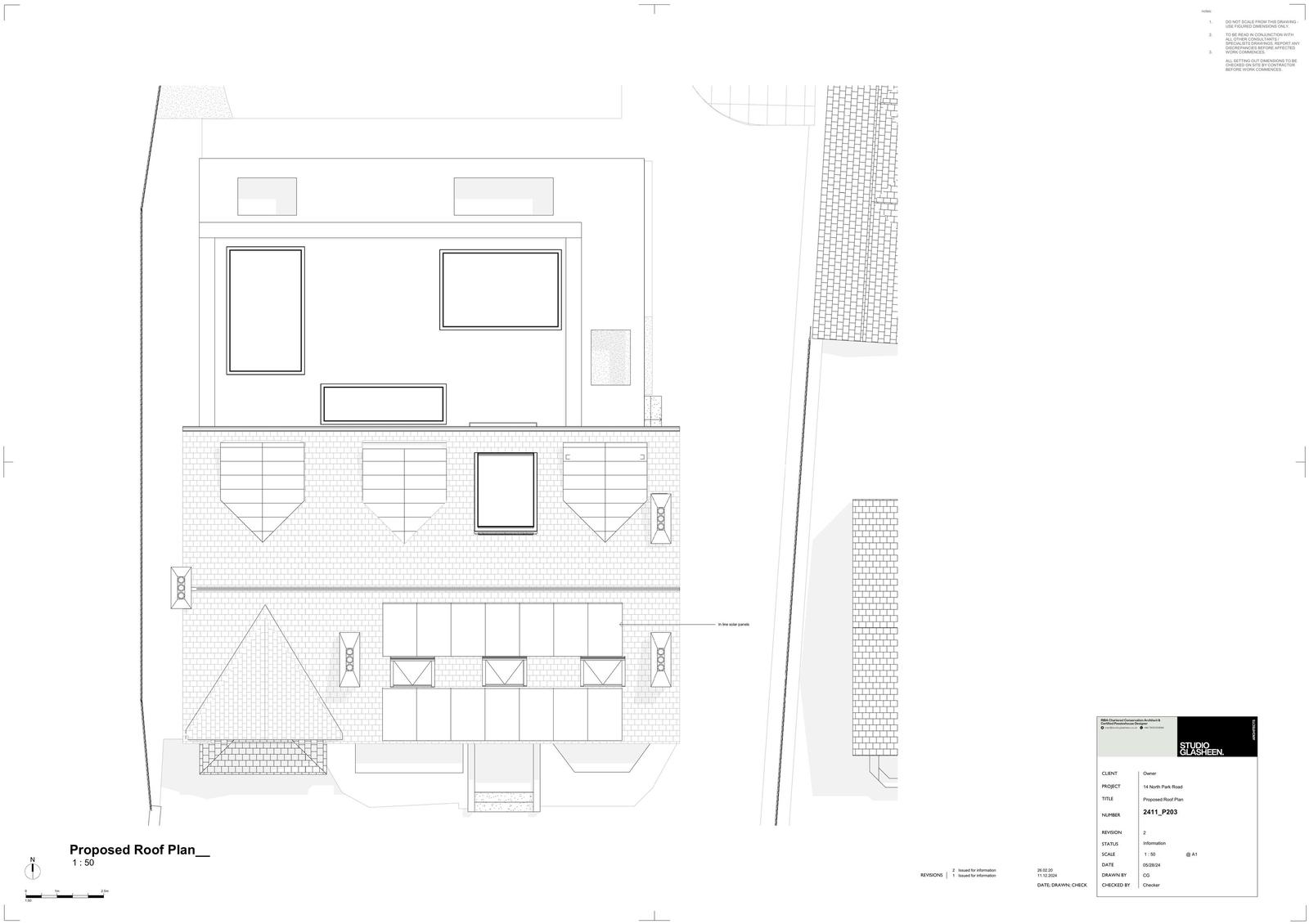
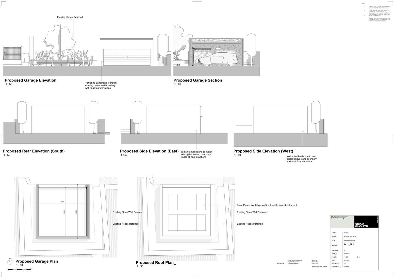
Solar panels to front of dwelling; Solar panels to garage roof

Documents

BackGround Papers
Archived · Original link
Drawing
Archived · Original link
BackGround Papers
Archived · Original link
Drawing
Archived · Original link
Drawing
Archived · Original link
Drawing
Archived · Original link
Drawing
Archived · Original link

Have your say

Your comment matters. Councils must consider every representation that raises material planning considerations.

Write a comment