← Lambeth

Status

Awaiting decision House extension
Received
Last month
New homes
0

Full proposal

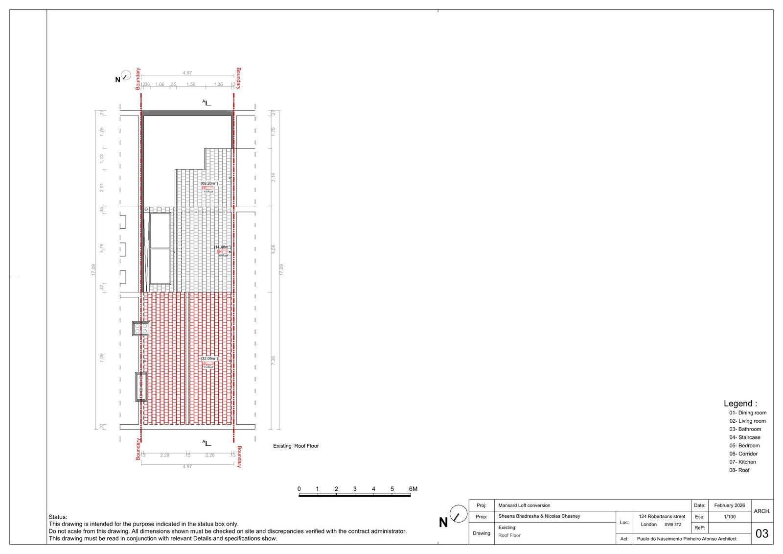
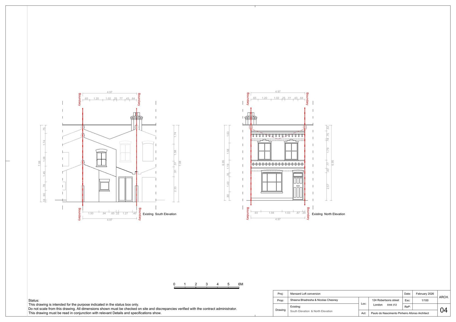
Erection of a mansard roof extension with two front and two rear windows, including two rear roof lights.

Have your say

Your comment matters. Councils must consider every representation that raises material planning considerations.

Write a comment