← Lambeth

Status

Awaiting decision House extension
Received
05 Dec 2025
New homes
0

Full proposal

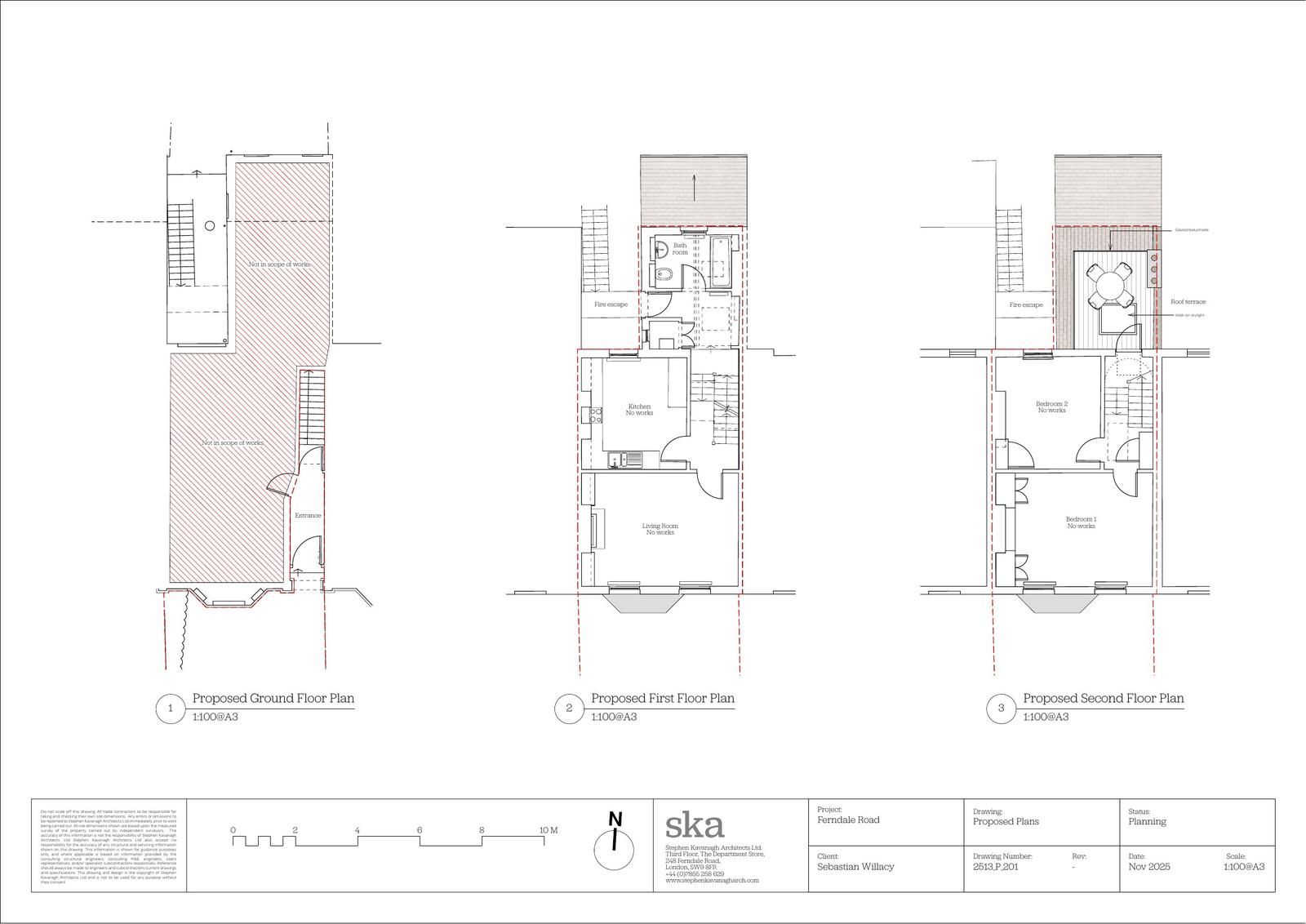
Creation of a roof terrace to the rear outrigger, including a glazed balustrade, a walk on roof light and the replacement of the rear window with a glazed door and fanlight, plus extension of the parapet and alteration to the chimney. (Flat B).

Documents

+ PLANNING AND HERITAGE STATEMENT
Design & Access Statement
Not yet archived · Original link
COMMUNITY INFRASTRUCTURE LEVY - COMPLETED FORM
Supporting Docs
Not yet archived · Original link
EXISTING BLOCK PLAN
Plans - Revised
Not yet archived · Original link
EXISTING BLOCK PLAN
Plans - Superseded
Not yet archived · Original link
EXISTING FRONT ELEVATION
Plans
Not yet archived · Original link
EXISTING PLANS
Plans - Revised
Not yet archived · Original link
EXISTING PLANS
Plans - Superseded
Not yet archived · Original link
EXISTING REAR ELEVATION
Plans
Not yet archived · Original link
EXISTING ROOF PLAN
Plans - Revised
Not yet archived · Original link
EXISTING ROOF PLAN
Plans - Superseded
Not yet archived · Original link
EXISTING SECTION AA
Plans
Not yet archived · Original link
EXISTING SECTION BB
Plans
Not yet archived · Original link
EXISTING SIDE ELEVATIONS
Plans
Not yet archived · Original link
OS Map
OS Map
Not yet archived · Original link
PROPOSED FRONT ELEVATION
Plans
Not yet archived · Original link
Plans - Superseded
Archived · Original link
Plans - Revised
Archived · Original link
PROPOSED REAR ELEVATION
Plans
Not yet archived · Original link
PROPOSED ROOF PLAN
Plans - Revised
Not yet archived · Original link
PROPOSED ROOF PLAN
Plans - Superseded
Not yet archived · Original link
PROPOSED SECTION AA
Plans
Not yet archived · Original link
PROPOSED SECTION BB
Plans
Not yet archived · Original link
PROPOSED SIDE ELEVATION
Plans
Not yet archived · Original link
REDACTED
Application Form
Not yet archived · Original link
Site Notice
Site Notice
Not yet archived · Original link

Have your say

Your comment matters. Councils must consider every representation that raises material planning considerations.

Write a comment