← Lambeth

Status

Withdrawn Change of use
Received
22 Apr 2025
New homes
1

Summary

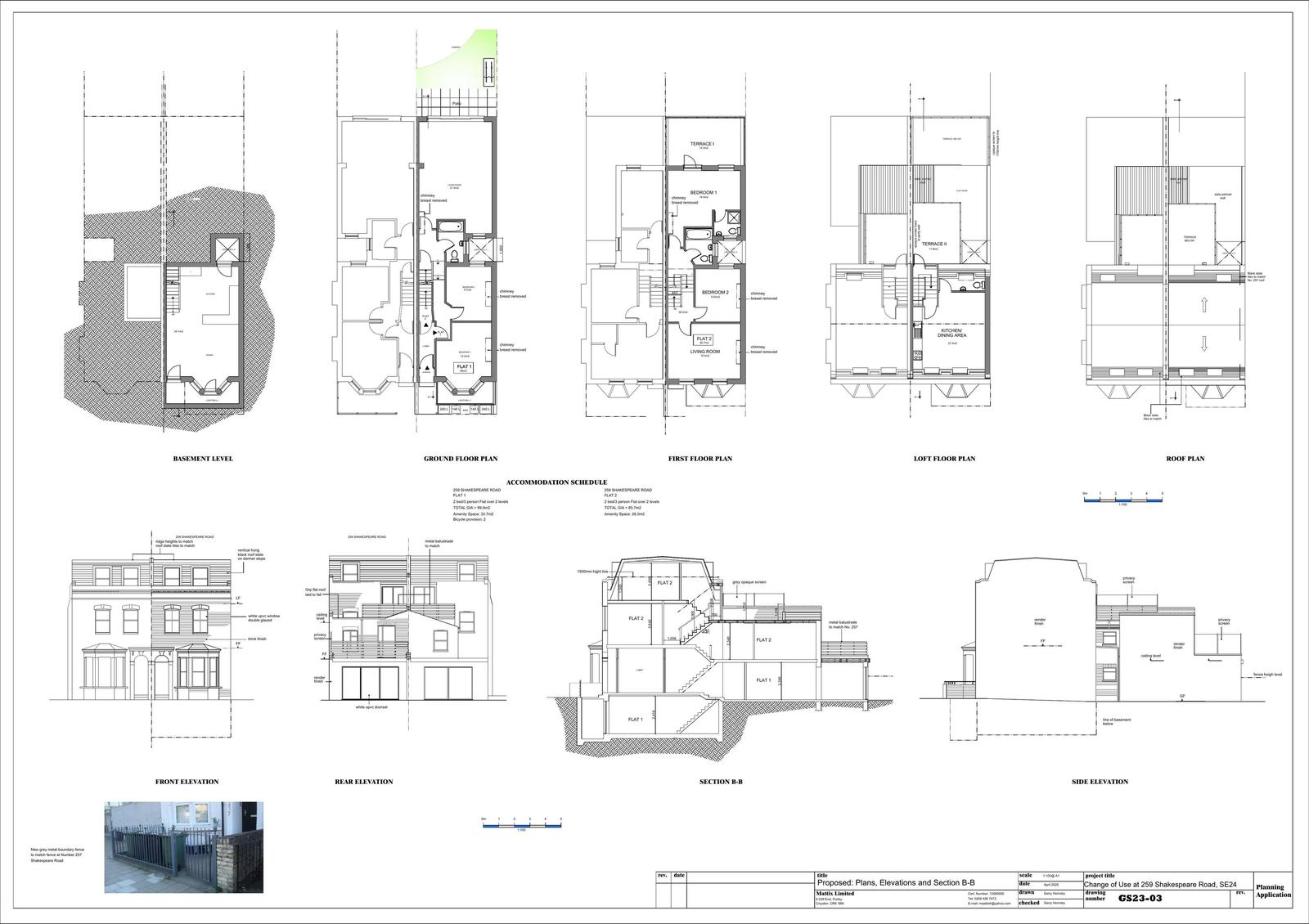
Convert one dwelling into two self-contained flats with basement, extensions, mansard roof and terraces.

Full proposal

Conversion of existing dwelling into 2 self-contained flats, involving the excavation of a basement with front and rear lightwells, the erection of a single storey ground floor side and rear extension, a first floor side extension with a roof terrace, the erection of mansard roof extension with a rear terrace, and the provision of cycle and refuse store.

Documents

+ EXISTING PLANS, ELEVATIONS AND SECTIONS
Plans - Superseded
Not yet archived · Original link
AMENDMENT : ADDITIONAL PLANS
Plans - Superseded
Not yet archived · Original link
AMENDMENT : THE LOCATION PLAN
Plans - Superseded
Not yet archived · Original link
APPLICATION FORM - WITHOUT PERSONAL DATA
Application Form
Not yet archived · Original link
BASEMENT IMPACT ASSESSMENT
Supporting Docs
Not yet archived · Original link
BLOCK PLAN OF THE SITE
Plans - Superseded
Not yet archived · Original link
COMMUNITY INFRASTRUCTURE LEVY - COMPLETED FORM
Supporting Docs
Not yet archived · Original link
DESIGN AND ACCESS STATEMENT
Design & Access Statement
Not yet archived · Original link
EXISTING PLANS
Plans - Revised
Not yet archived · Original link
EXISTING PLANS, ELEVATIONS AND SECTIONS
Plans - Superseded
Not yet archived · Original link
EXISTING SITE VIEWS
Plans - Revised
Not yet archived · Original link
FIRE STRATEGY
Supporting Docs
Not yet archived · Original link
PROPOSED BLOCK PLAN
OS Map
Not yet archived · Original link
Plans - Revised
Archived · Original link
Plans - Superseded
Archived · Original link
REVISED APPLICATION FORM
Application Form
Not yet archived · Original link
REVISED APPLICATION FORM
Application Form
Not yet archived · Original link
SITE PHOTOGRAPHS
Plans - Superseded
Not yet archived · Original link

Have your say

Your comment matters. Councils must consider every representation that raises material planning considerations.

Write a comment