← Hyndburn Borough Council

Status

Pending New housing
Received
Last month
New homes
3

Full proposal

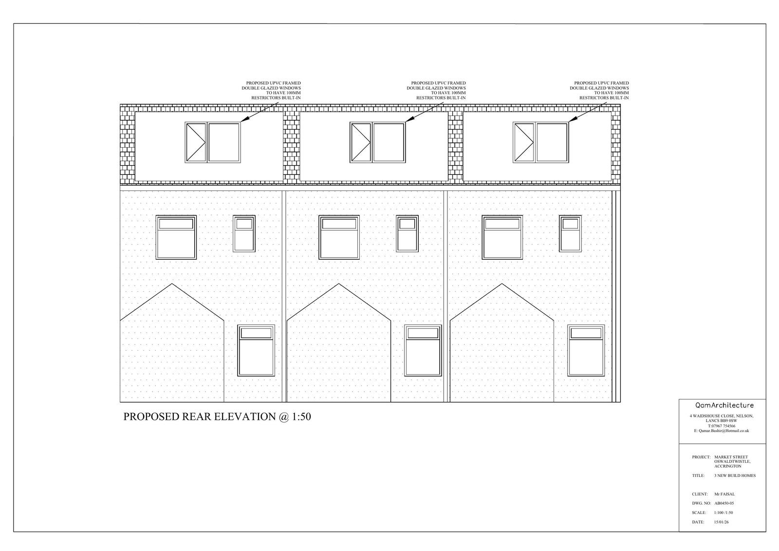
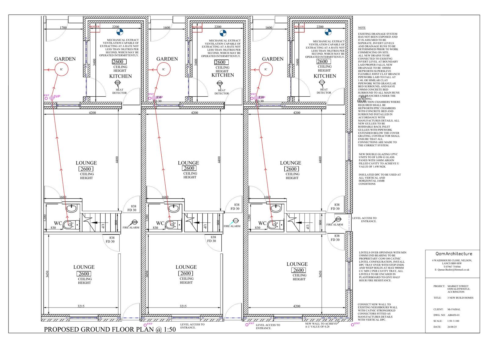
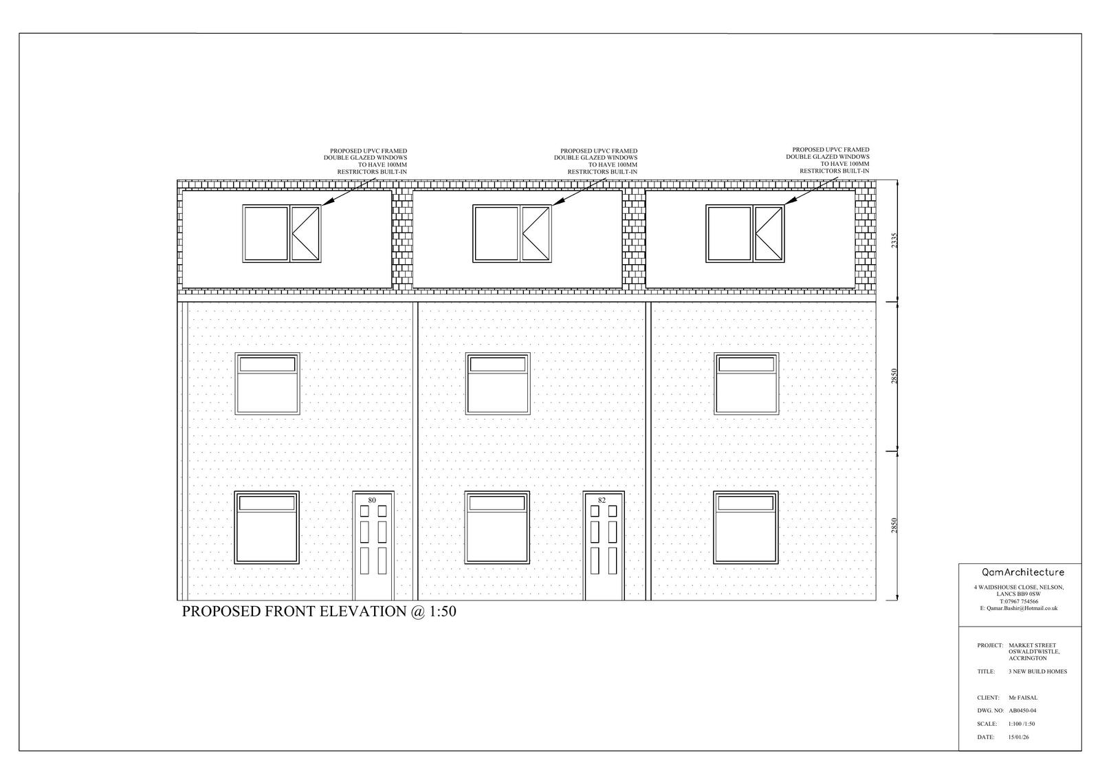
Market Street/ Union Road, Oswaldtwistle, BB5 0DN | Full Planning Application | Full: Erection of 3no. new dwellings | Application No: 11/26/0030 | Registered : 10 March 2026

Have your say

Your comment matters. Councils must consider every representation that raises material planning considerations.

Write a comment