← London Borough of Hounslow

Status

Pending Change of use
Received
31 Jan 2026
New homes
1

Summary

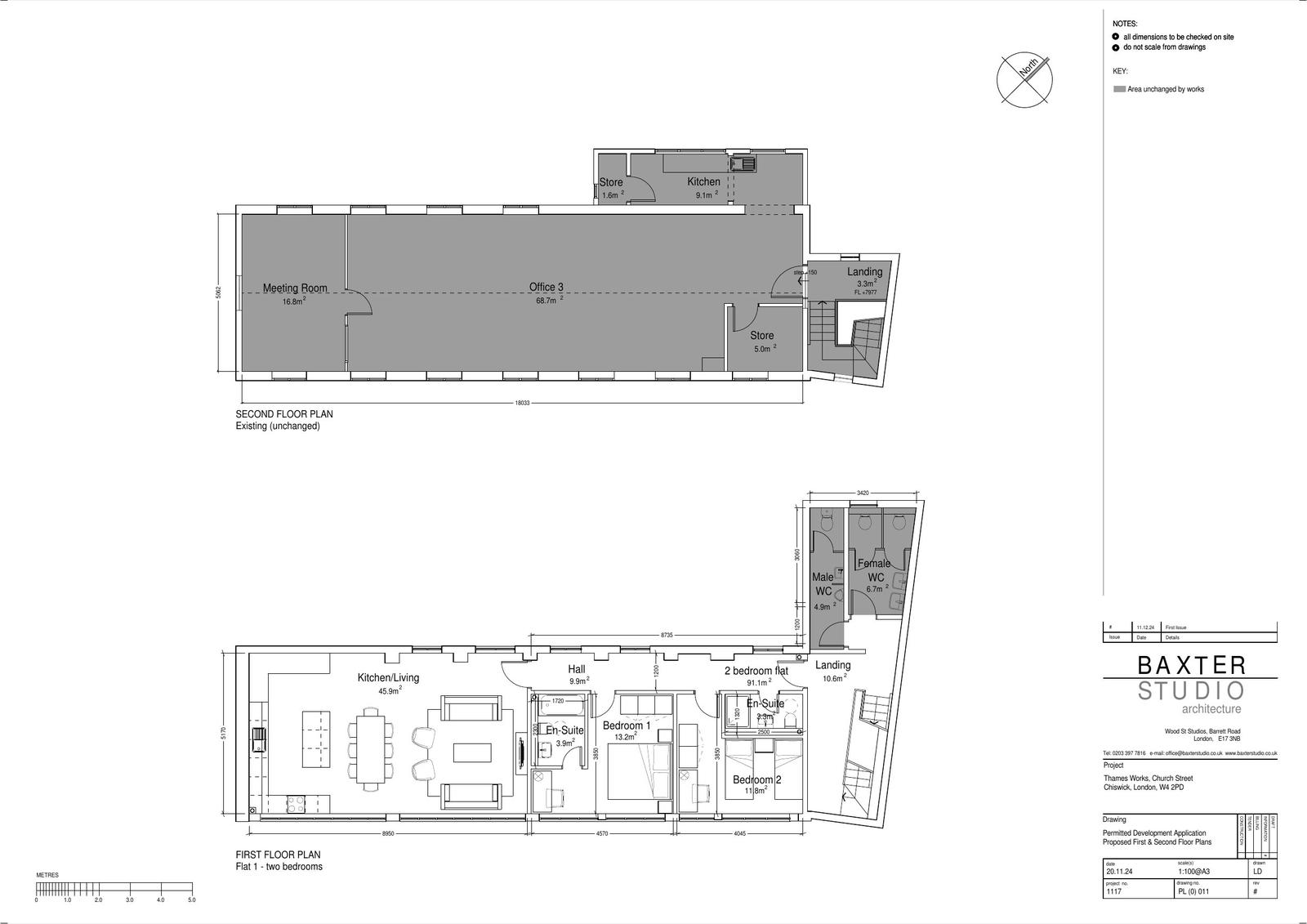
Change of use of first-floor office (E(g)) to one residential unit (C3).

Full proposal

Thames Works, Church Street, Chiswick W4 2PD | PA: Commercial/Business/Service to Dwellinghouses | Prior approval for the change of use of the first floor office (Use Class E(g)) into one residential unit (Use Class C3). | Application No: PAC/2025/0016 | Decided: 25 February 2025

Documents

cover letter
P-Supporting Information
Not yet archived · Original link
P-Daylight or sunlight assessment
P-Daylight or sunlight assessment
Not yet archived · Original link
P-Delegated Report
P-Delegated Report
Not yet archived · Original link
P-Existing Plans
P-Existing Plans
Not yet archived · Original link
P-Existing Plans
P-Existing Plans
Not yet archived · Original link
P-Existing Site
P-Existing Site
Not yet archived · Original link
P-Location Plan
P-Location Plan
Not yet archived · Original link
P-Planning Application Form
P-Planning Application Form
Not yet archived · Original link
P-Proposed Plans
Archived · Original link
P-Proposed Plans
Archived · Original link
P-Proposed Site
P-Proposed Site
Not yet archived · Original link
PANAR
P-Decision Notice
Not yet archived · Original link

Have your say

Your comment matters. Councils must consider every representation that raises material planning considerations.

Write a comment