← London Borough of Hounslow

Status

Pending House extension
Received
30 Jan 2026
New homes
0

Summary

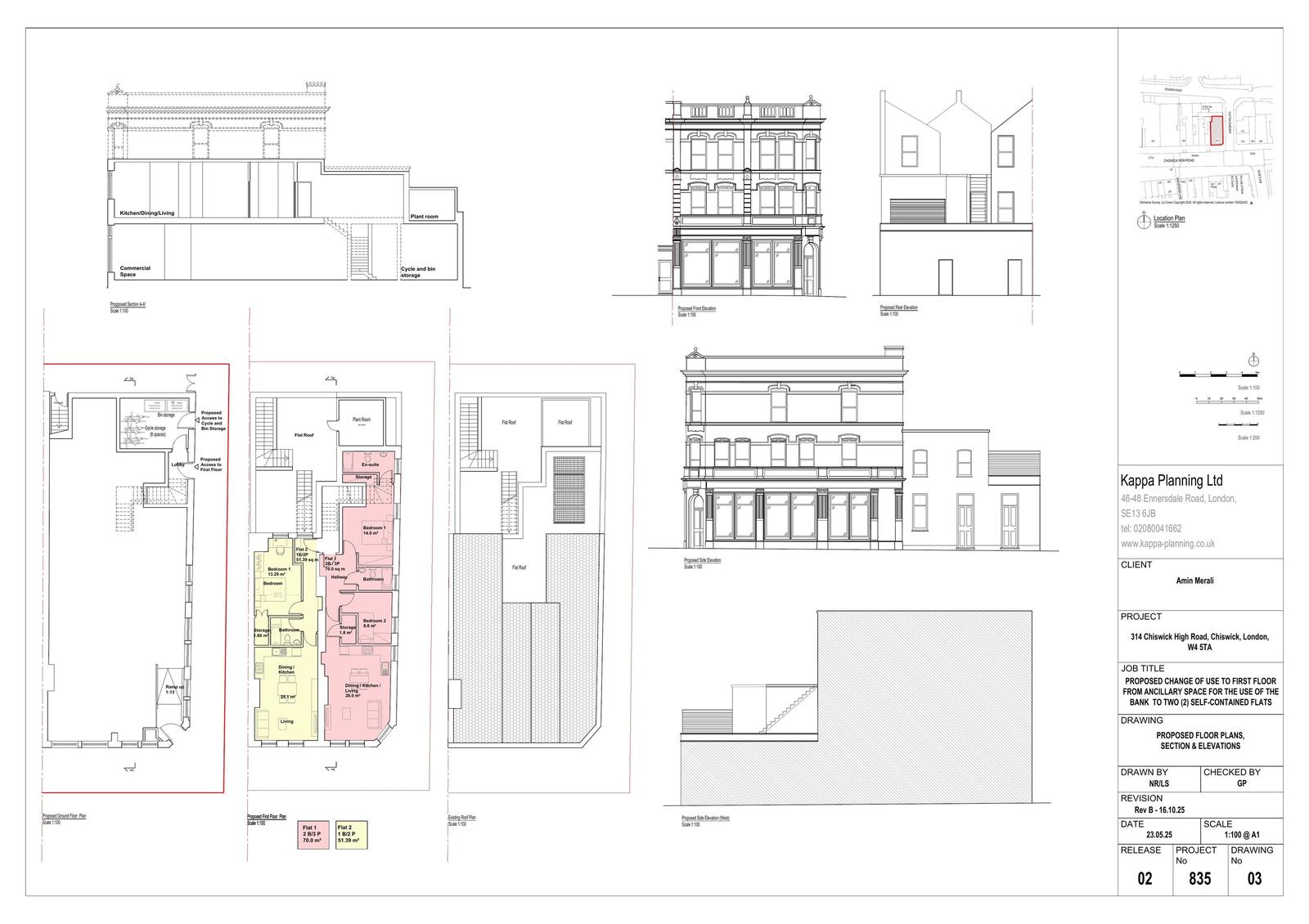
First-floor rear infill and side extension; change of use of vacant first-floor bank ancillary facilities.

Full proposal

314 Chiswick High Road, Chiswick, London, W4 5TA | PF-Full Applications | Erection of a first floor rear infill and side extension and installation of a first floor rear window to the building, change of use of the building's vacant first floor bank ancillary facilities (Cl... | Application No: P/2025/1727 | Decided: 21 October 2025

Documents

DECTP2
P-Decision Notice
Not yet archived · Original link
Energy Statement
P-Published Energy Statement
Not yet archived · Original link
P-Location Plan
Archived · Original link
P-Delegated Report
P-Delegated Report
Not yet archived · Original link
P-Planning Application Form
P-Planning Application Form
Not yet archived · Original link
P-Published Fire Safety
P-Published Fire Safety
Not yet archived · Original link
Solar Panels Specifications Received: 25 September 2025
P-Statement Other
Not yet archived · Original link

Have your say

Your comment matters. Councils must consider every representation that raises material planning considerations.

Write a comment