← London Borough of Hounslow

Status

Pending New housing
Received
31 Jan 2026
New homes
58

Full proposal

36-38 High Street, Hounslow, TW3 1NW | Major Housing 10 units or more | Erection of two, 11 storey blocks comprising 58 self contained flats and commercial unit on the ground floor with associated private amenity, refuse and cycle storage. | Application No: P/2025/1337 | Decided: 16 July 2025

Documents

DECTP3
P-Decision Notice
Not yet archived · Original link
Drainage Strategy
P-Statement Other
Not yet archived · Original link
Greater London Authority response
Consultation Response
Not yet archived · Original link
High St (36) Hounslow - existing.pdf
P-Existing Site
Not yet archived · Original link
Hounslow H St (Water Calc).pdf
P-Statement Other
Not yet archived · Original link
Hounslow High St (36-38) OS.pdf
P-Location Plan
Not yet archived · Original link
P-Air quality assessment
P-Air quality assessment
Not yet archived · Original link
P-Daylight or sunlight assessment
P-Daylight or sunlight assessment
Not yet archived · Original link
P-Delegated Report
P-Delegated Report
Not yet archived · Original link
P-Design statement
P-Design statement
Not yet archived · Original link
P-Existing Plans
P-Existing Plans
Not yet archived · Original link
P-Planning Application Form
P-Planning Application Form
Not yet archived · Original link
P-Proposed Elevation
P-Proposed Elevation
Not yet archived · Original link
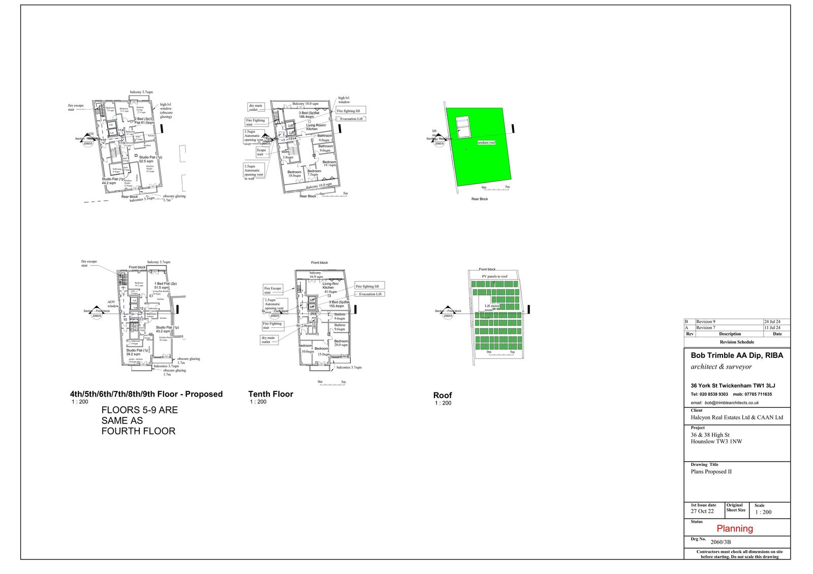
P-Proposed Plans
Archived · Original link
P-Proposed Plans
Archived · Original link
P-Proposed Sections
P-Proposed Sections
Not yet archived · Original link
P-Published Energy Statement
P-Published Energy Statement
Not yet archived · Original link
P-Published Fire Safety
P-Published Fire Safety
Not yet archived · Original link
P-Published Noise Assessment
P-Published Noise Assessment
Not yet archived · Original link
P-Statement Other
P-Statement Other
Not yet archived · Original link
P-Statement Other
P-Statement Other
Not yet archived · Original link
P-Statement Other
P-Statement Other
Not yet archived · Original link
P-Transport Assessment
P-Transport Assessment
Not yet archived · Original link
Planning Justification Statment.pdf
P-Planning Statement
Not yet archived · Original link

Have your say

Your comment matters. Councils must consider every representation that raises material planning considerations.

Write a comment