← London Borough of Hounslow

Status

Pending House extension
Received
31 Jan 2026
New homes
1

Summary

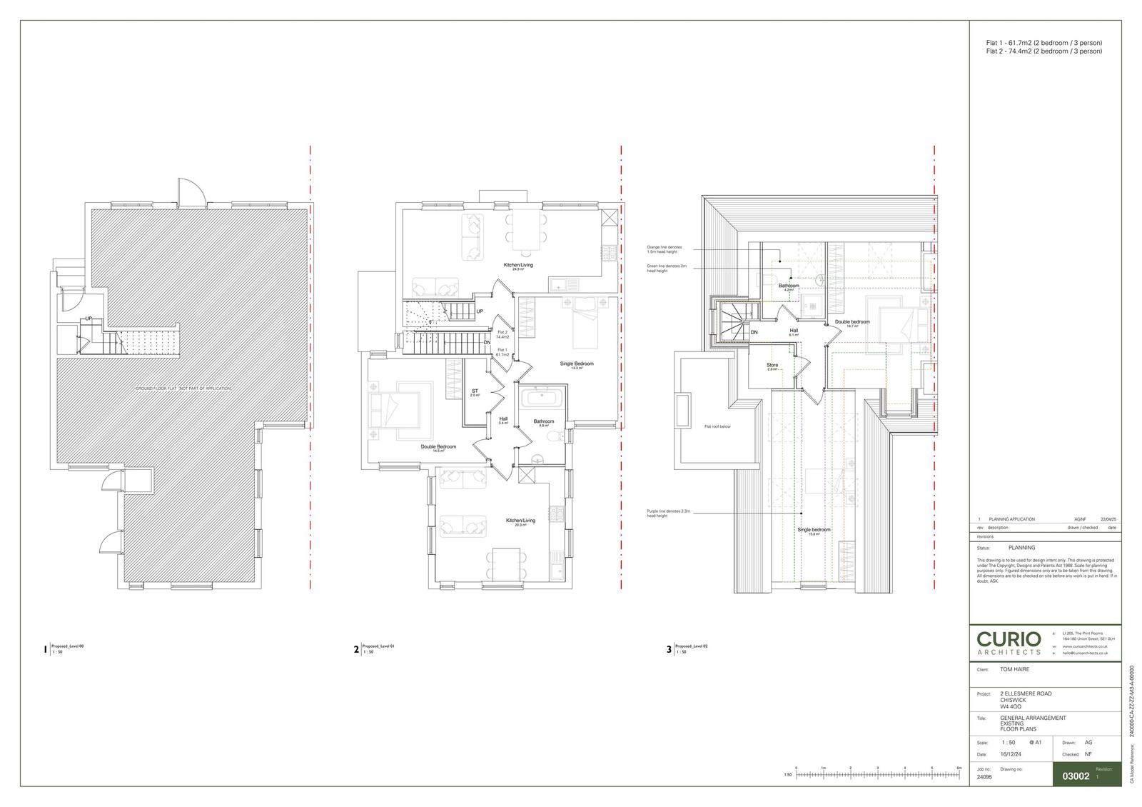
Side and rear roof extension to convert one first-floor flat into two self-contained flats.

Full proposal

2 Ellesmere Road, Chiswick, London, W4 4QQ | PF-Full Applications | Erection of a side and rear roof extension incorporating two front roof windows and raising of the rear ridge to convert a first floor flat into two separate self contained flats. | Application No: P/2025/1309 | Registered : 22 May 2025

Documents

P-Location Plan
Archived · Original link
03001_Existing Floor Plans.pdf
P-Existing Plans
Not yet archived · Original link
P-Proposed Plans
Archived · Original link
04001_Existing Sections.pdf
P-Existing Sections
Not yet archived · Original link
04002_Proposed Sections.pdf
P-Proposed Sections
Not yet archived · Original link
05001_Existing Elevations.pdf
P-Existing Elevation
Not yet archived · Original link
05002_Proposed Elevations.pdf
P-Proposed Elevation
Not yet archived · Original link
2 Ellesmere Road_Fire Statement.pdf
P-Published Fire Safety
Not yet archived · Original link
24095_2 Ellesmere Road_DAS.pdf
P-Design and Access Statement
Not yet archived · Original link
ApplicationFormRedacted.pdf
P-Planning Application Form
Not yet archived · Original link

Have your say

Your comment matters. Councils must consider every representation that raises material planning considerations.

Write a comment