← London Borough of Hounslow

Status

Pending House extension
Received
31 Jan 2026
New homes
1

Full proposal

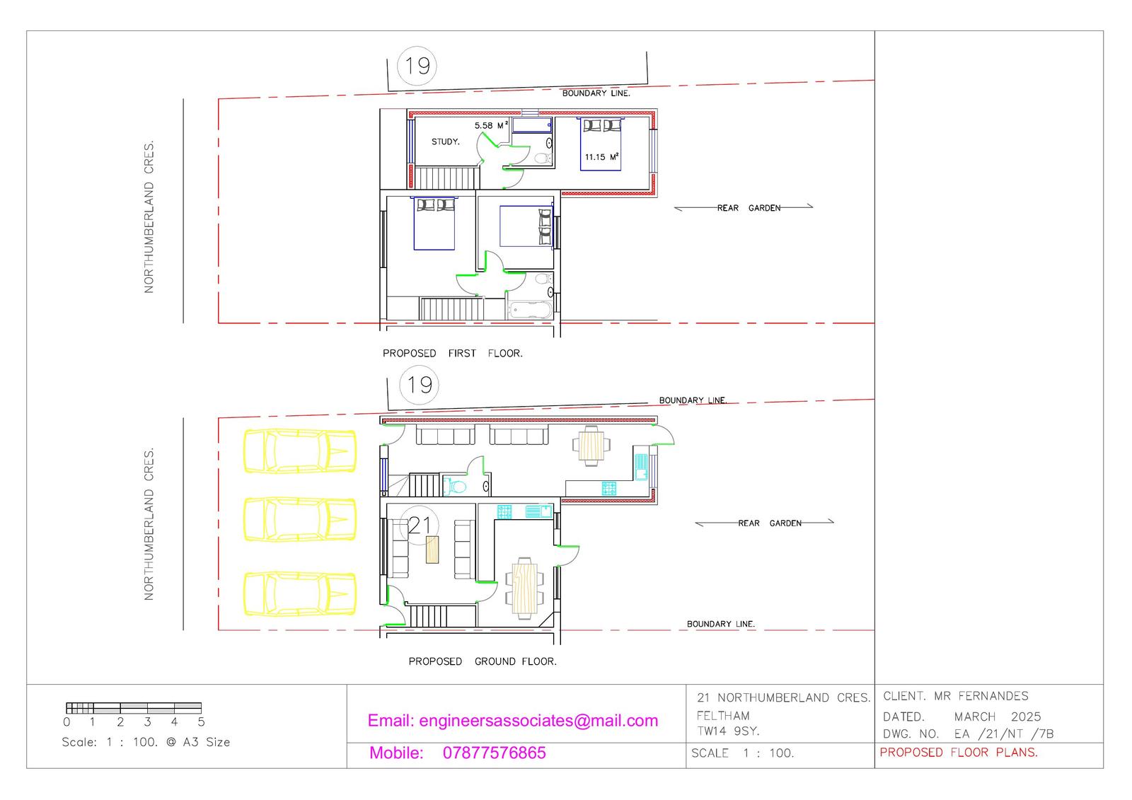
21 Northumberland Crescent, Feltham, TW14 9SY | PF-Full Applications | Erection of a first floor rear extension and the conversion of the existing two storey side extension into a separate one-bedroom dwelling with parking. | Application No: P/2025/0803 | Decided: 04 September 2025

Documents

ApplicationFormRedacted.pdf
P-Planning Application Form
Not yet archived · Original link
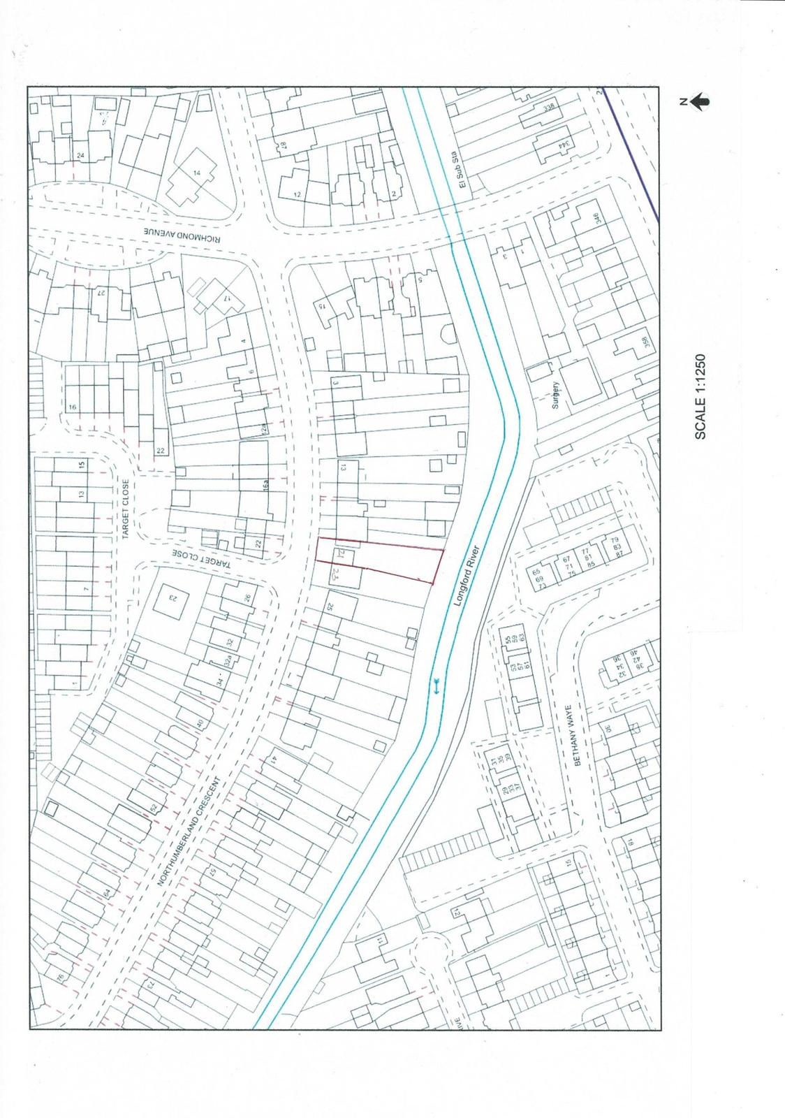
Block Plan
P-Proposed Site
Not yet archived · Original link
DECTP3
P-Decision Notice
Not yet archived · Original link
Drainage Assessment Form
P-Drainage documentation
Not yet archived · Original link
EA/21/NT/11C-A Existing/Proposed Elevations
P-Proposed Elevation
Not yet archived · Original link
EA/21/NT/11D Existing/Proposed Elevations
P-Proposed Elevation
Not yet archived · Original link
P-Proposed Plans
Archived · Original link
Energy Statement
P-Published Energy Statement
Not yet archived · Original link
Fire Safety Statement
P-Published Fire Safety
Not yet archived · Original link
P-Appeal Decision
P-Appeal Decision
Not yet archived · Original link
P-Appeal Start Date Letter
P-Appeal Start Date Letter
Not yet archived · Original link
P-Delegated Report
P-Delegated Report
Not yet archived · Original link
P-Location Plan
Archived · Original link

Have your say

Your comment matters. Councils must consider every representation that raises material planning considerations.

Write a comment