← London Borough of Hounslow

Status

Pending New housing
Received
Last month
New homes
0

Full proposal

Aintree Lodge, Watchfield Court, Sutton Court Road, Chiswick, London,W4 4JS | PF-Full Applications | Erection of a two storey replacement house with car and cycle parking, waste and recycling bin store. | Application No: P/2024/4338 | Decided: 15 May 2025

Documents

Aintree Lodge - Energy Statement - November 2024 with Appendices.pdf
P-Published Energy Statement
Not yet archived · Original link
Aintree Lodge Heathfield Terrace Chiswick W4 4JS BS5837 220335.24 AIA AMS data TCP TPP.pdf
P-Tree survey
Not yet archived · Original link
ApplicationFormRedacted.pdf
P-Planning Application Form
Not yet archived · Original link
CIL Exemption or Relief Claim
CIL Exemption or Relief Claim
Not yet archived · Original link
CIL Exemption or Relief Claim
CIL Exemption or Relief Claim
Not yet archived · Original link
CILSELFH
CIL Exemption or Relief Claim
Not yet archived · Original link
DECTP2
P-Decision Notice
Not yet archived · Original link
G327 401 - Updated North & East Elevation Rev A
P-Proposed Elevation
Not yet archived · Original link
G327 Aintree Lodge Design and Access-compressed.pdf
P-Design and Access Statement
Not yet archived · Original link
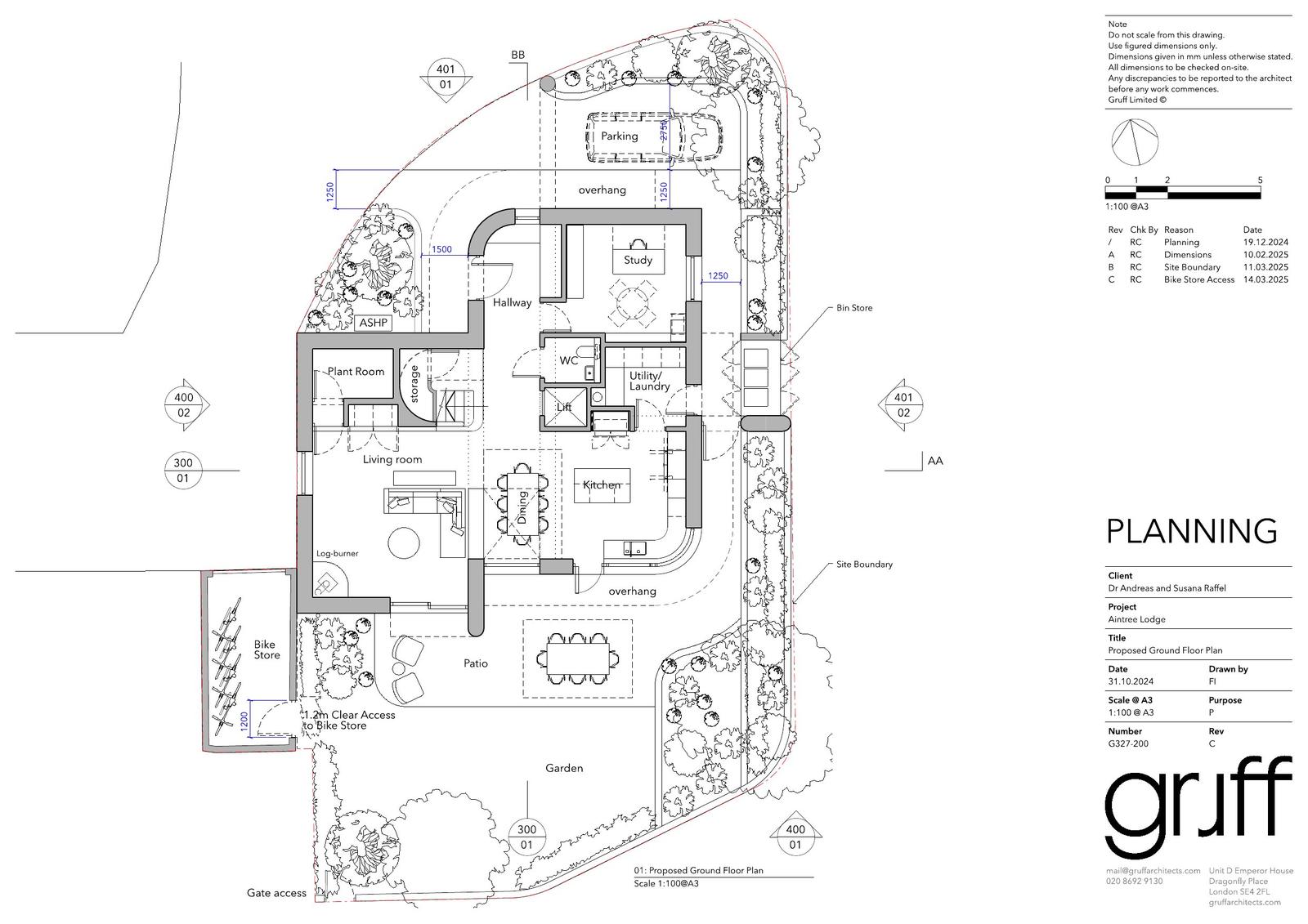
G327-200 - Proposed Ground Floor Plan.pdf
P-Rejected Plans
Not yet archived · Original link
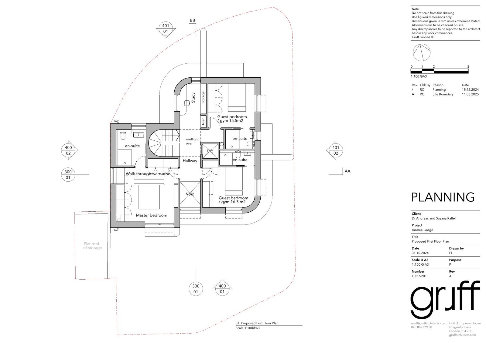
G327-201 - Proposed First Floor Plan.pdf
P-Rejected Plans
Not yet archived · Original link
G327-202 - Proposed Roof Plan.pdf
P-Rejected Plans
Not yet archived · Original link
G327-210 - Proposed Landscape Plan.pdf
P-Rejected Plans
Not yet archived · Original link
G327-211 - Proposed Access Plan.pdf
P-Rejected Plans
Not yet archived · Original link
G327-300-Proposed Section AA and BB.pdf
P-Proposed Sections
Not yet archived · Original link
G327-400-Proposed South and West Elevation.pdf
P-Proposed Elevation
Not yet archived · Original link
G327-410-Proposed Boundary South and West Elevation.pdf
P-Proposed Elevation
Not yet archived · Original link
G327-411- Updated Proposed Boundary North & East Elevation_RevA
P-Proposed Elevation
Not yet archived · Original link
G327-420-Proposed Site Elevations.pdf
P-Proposed Elevation
Not yet archived · Original link
G327-900-Proposed 3D.pdf
P-Perspective Drawings
Not yet archived · Original link
G327-901-Proposed 3D.pdf
P-Perspective Drawings
Not yet archived · Original link
P-Rejected Plans
Archived · Original link
G327_101_Site Block Plan.pdf
P-Rejected Plans
Not yet archived · Original link
G327_110_Existing Plan and Elevations.pdf
P-All in one Plans Proposed
Not yet archived · Original link
G327_Fire Planning Safety Strategy.pdf
P-Published Fire Safety
Not yet archived · Original link
Heritage Statement Aintree Lodge Hounslow Dec 24 reduced.pdf
P-Heritage impact statement
Not yet archived · Original link
Landscape Plan
Landscape Plan
Not yet archived · Original link
P-Committee Report
P-Committee Report
Not yet archived · Original link
P-Existing Site
P-Existing Site
Not yet archived · Original link
P-Location Plan
P-Location Plan
Not yet archived · Original link
P-Perspective Drawings
P-Perspective Drawings
Not yet archived · Original link
P-Proposed Plans
Archived · Original link
P-Proposed Plans
Archived · Original link
P-Proposed Plans
Archived · Original link
P-Proposed Plans
Archived · Original link
P-Proposed Plans
Archived · Original link
P-Rejected Plans
P-Rejected Plans
Not yet archived · Original link
P-Rejected Plans
P-Rejected Plans
Not yet archived · Original link
P-Rejected Plans
P-Rejected Plans
Not yet archived · Original link
P-Rejected Plans
P-Rejected Plans
Not yet archived · Original link
P-Rejected Plans
P-Rejected Plans
Not yet archived · Original link
P-Rejected Plans
P-Rejected Plans
Not yet archived · Original link
Updated Vehicle exit plan
P-Proposed Plans
Not yet archived · Original link

Have your say

Your comment matters. Councils must consider every representation that raises material planning considerations.

Write a comment