← Greenwich

Status

Registered House extension
Received
Last month
New homes
0

Full proposal

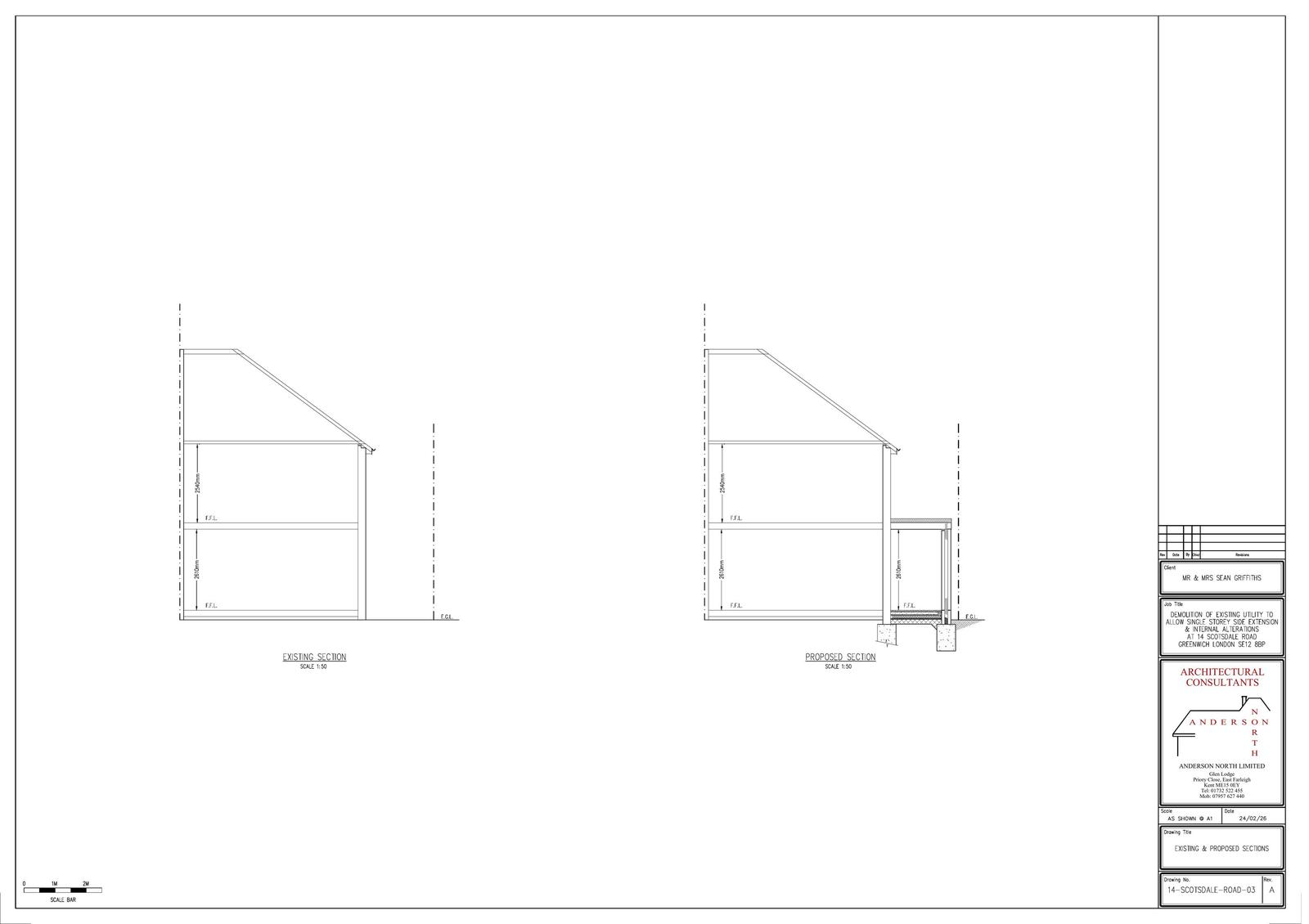
Demolition and construction of a single storey side extension to create a wrap around extension with the existing ground floor rear extension, and installation of roof lights with associated works.

Have your say

Your comment matters. Councils must consider every representation that raises material planning considerations.

Write a comment