← Greenwich

Status

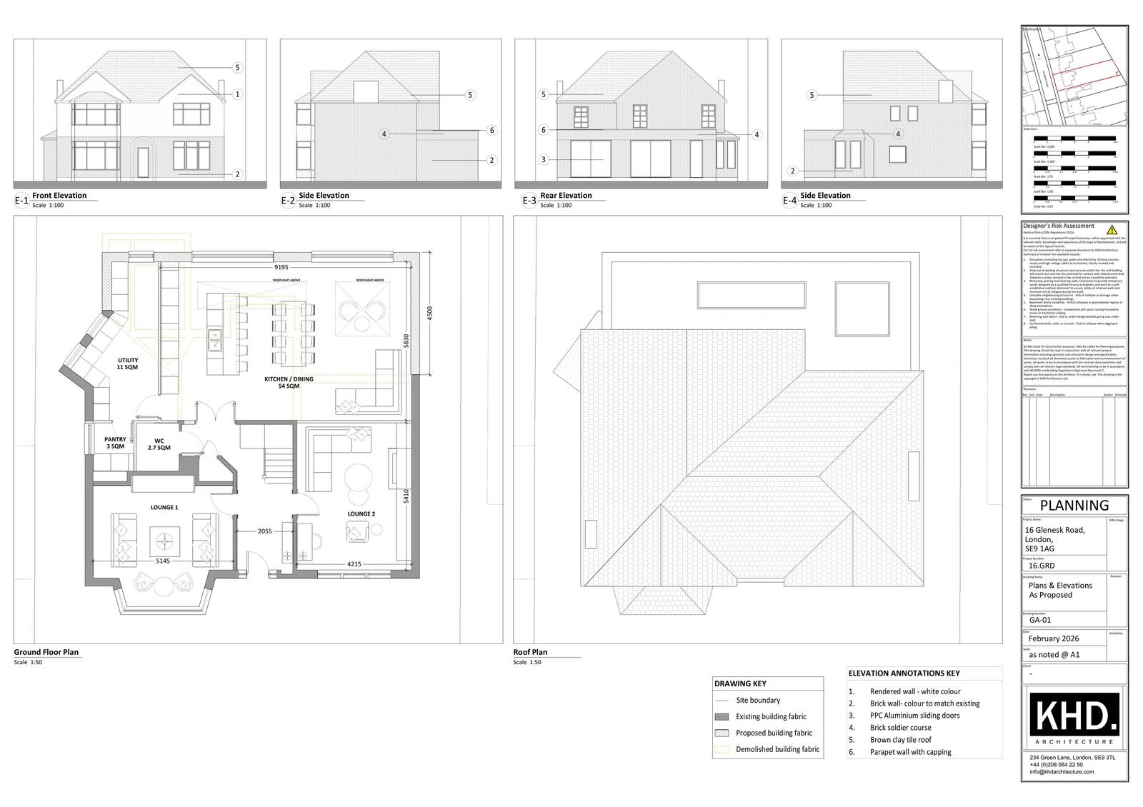
Registered House extension
Received
12 Feb 2026
New homes
0

Full proposal

Demolition of existing extension and construction of a new single-storey rear extension.

Have your say

Your comment matters. Councils must consider every representation that raises material planning considerations.

Write a comment