← Greenwich

Status

Registered House extension
Received
10 Feb 2026
New homes
0

Full proposal

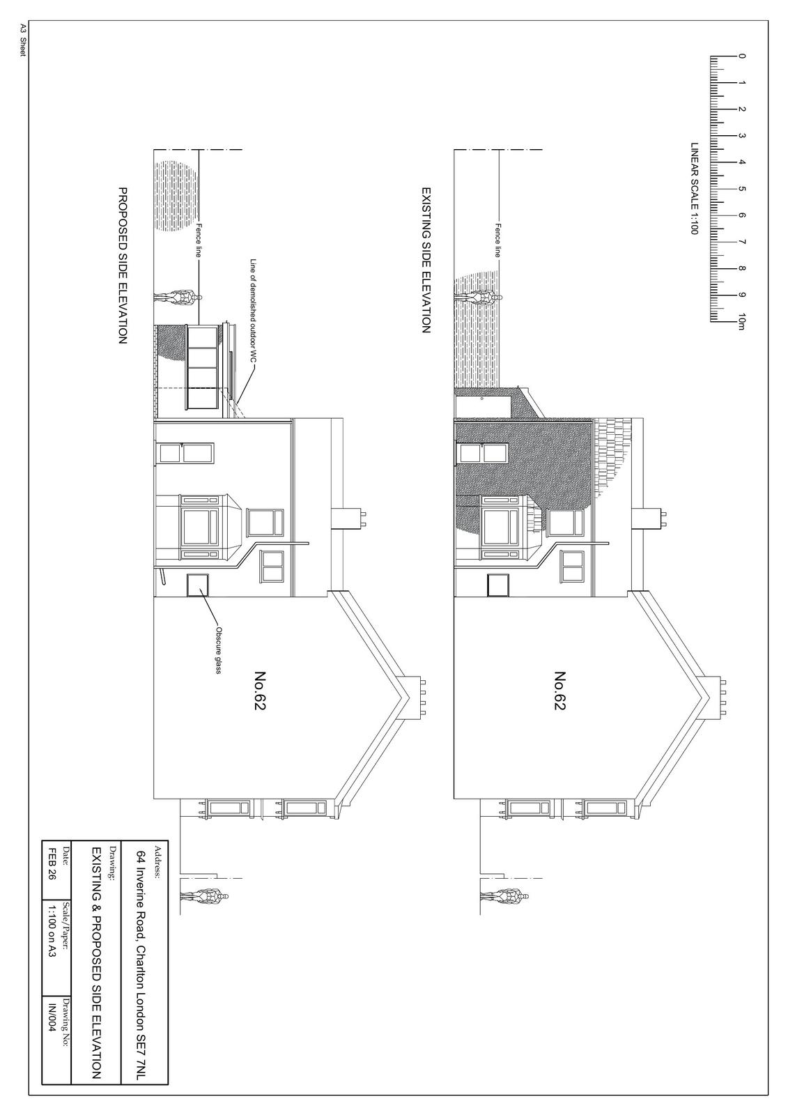
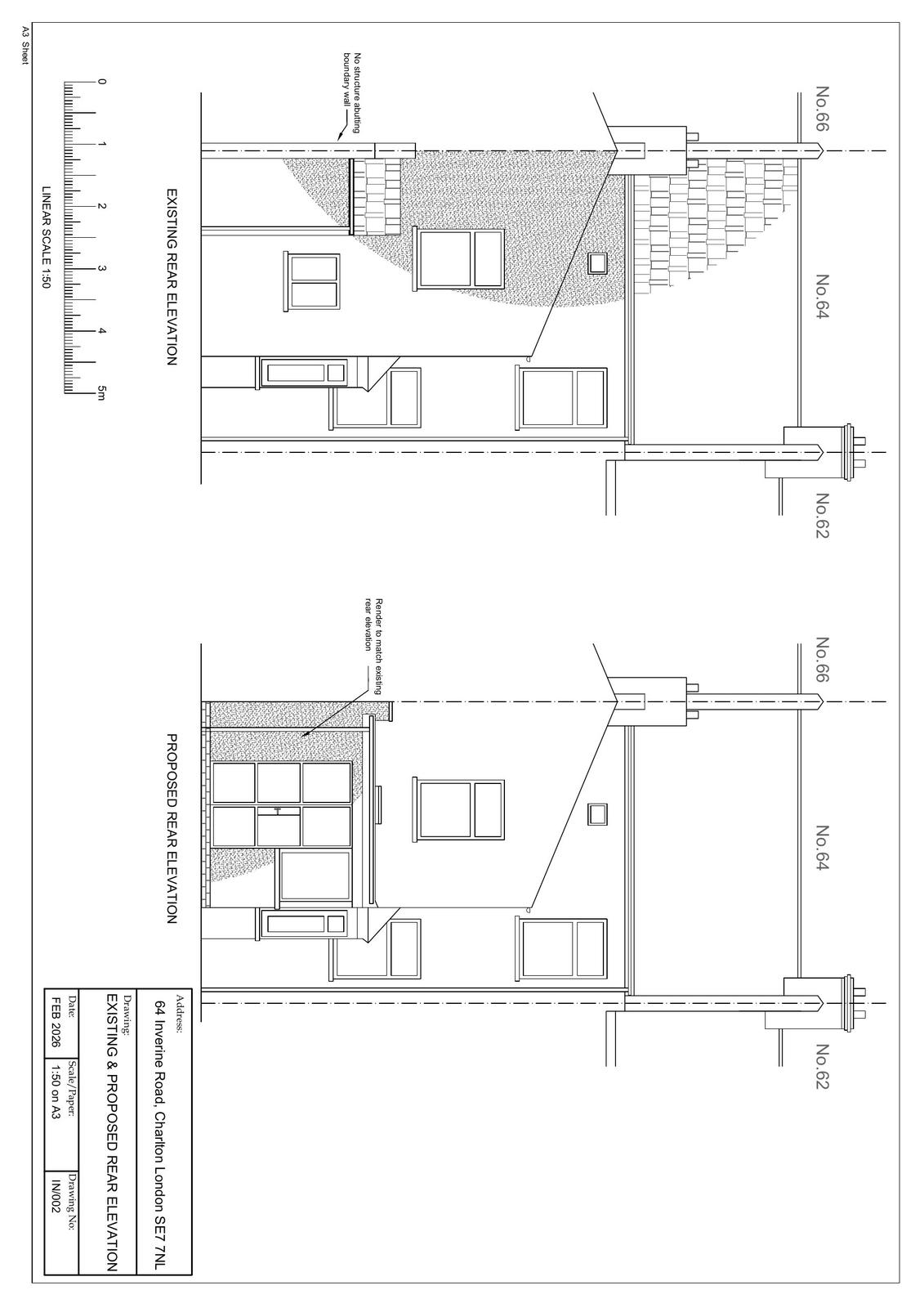
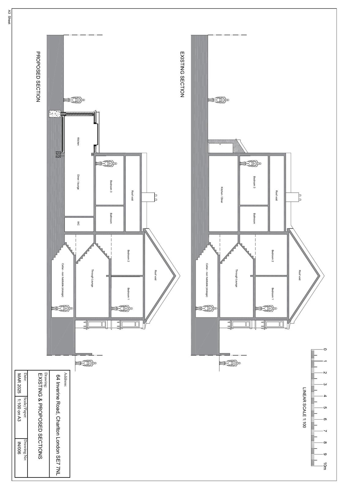
Construction of single storey rear extension with associated internal works

Have your say

Your comment matters. Councils must consider every representation that raises material planning considerations.

Write a comment