26/0419/F
Greenwich
Status
Registered
Change of use
Received
10 Feb 2026
New homes
0
Full proposal
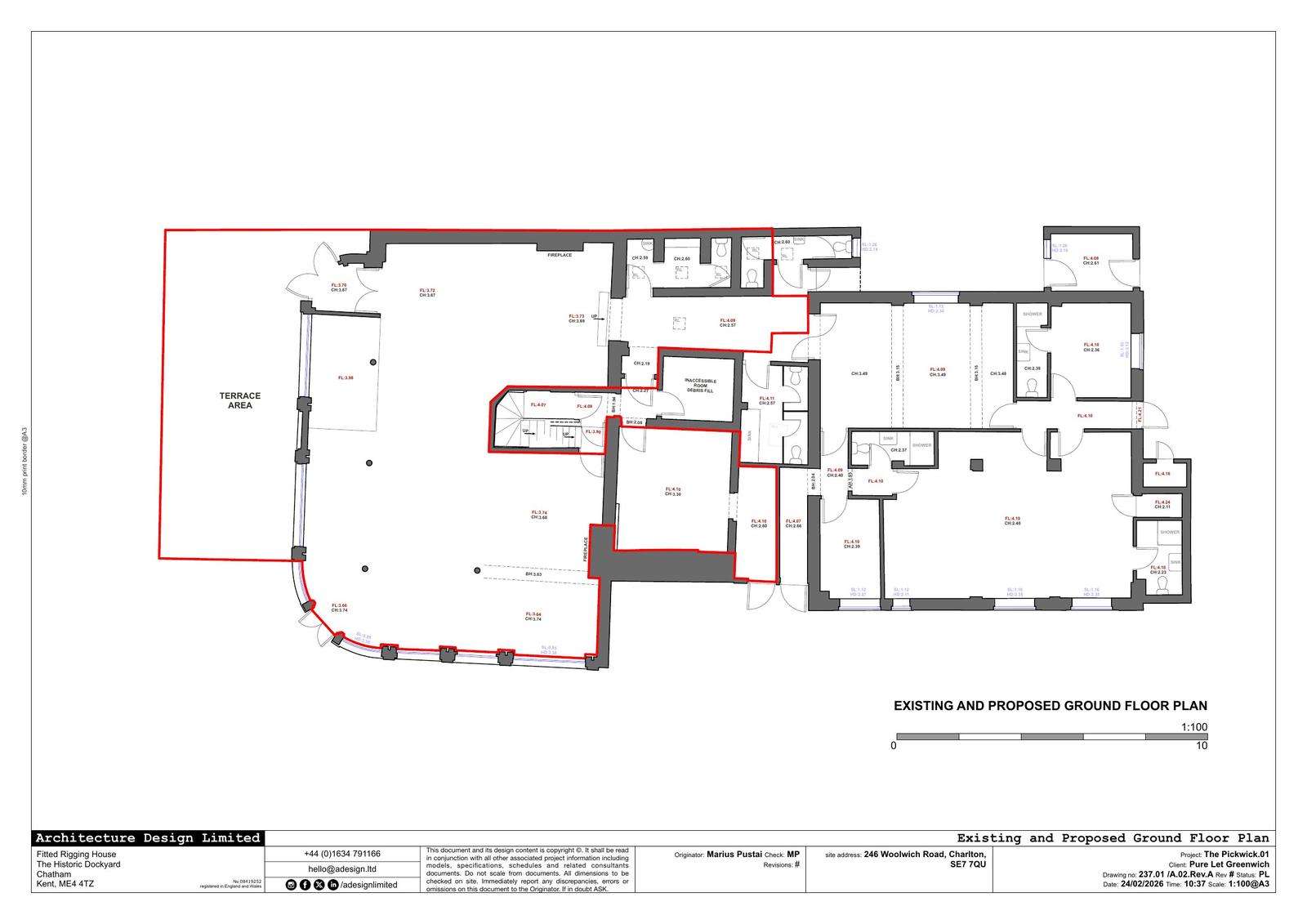
Change of Use from Public House (Sui Generis) to Use Class E (Commercial, Business & Service)
Documents
Have your say
Your comment matters. Councils must consider every representation that raises material planning considerations.