← Greenwich

Status

Registered New housing
Received
05 Feb 2026
New homes
1

Full proposal

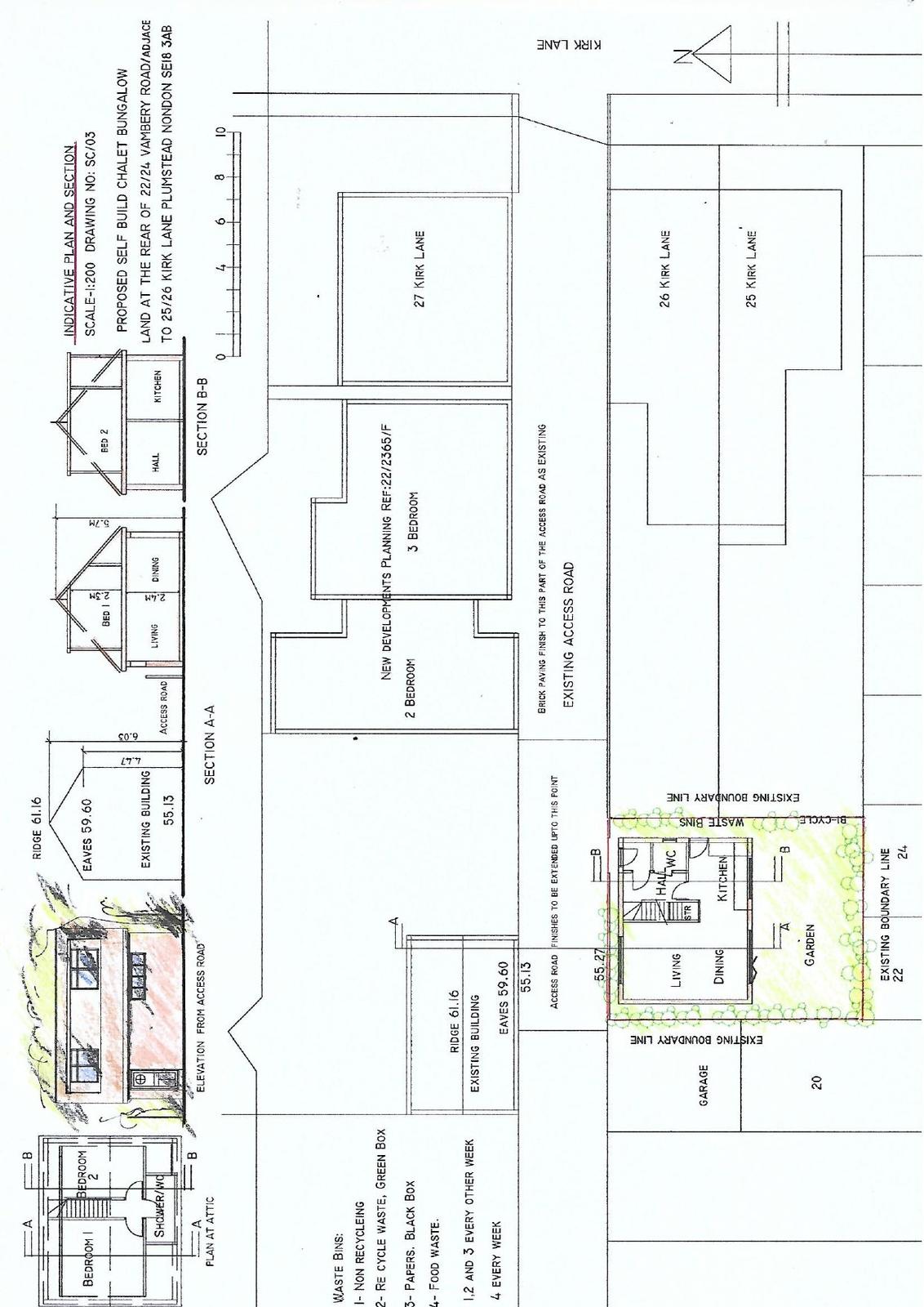
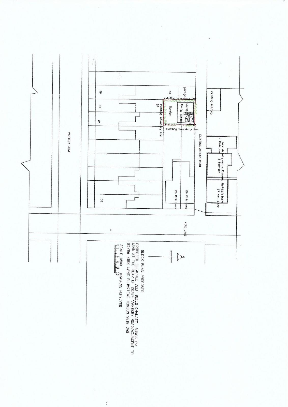
Outline planning application (Access) for the construction of a single dwelling (Revised description)

Documents

Document
Archived · Original link
Correspondence
Archived · Original link
Application Form
Archived · Original link
Drawing
Archived · Original link
Drawing
Archived · Original link
Document
Archived · Original link
Drawing
Archived · Original link
Document
Archived · Original link

Have your say

Your comment matters. Councils must consider every representation that raises material planning considerations.

Write a comment