← Greenwich

Status

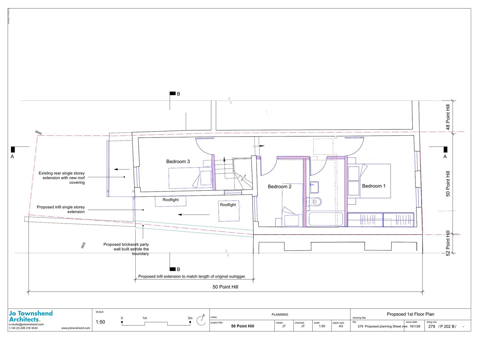
Registered House extension
Received
19 Jan 2026
New homes
0

Full proposal

Construction of a single storey rear side infill extension, addition of roof covering to existing rear extension and associated works [Amended description, re-consultation].

Have your say

Your comment matters. Councils must consider every representation that raises material planning considerations.

Write a comment