← Greenwich

Status

Registered Change of use
Received
13 Jan 2026
New homes
6

Full proposal

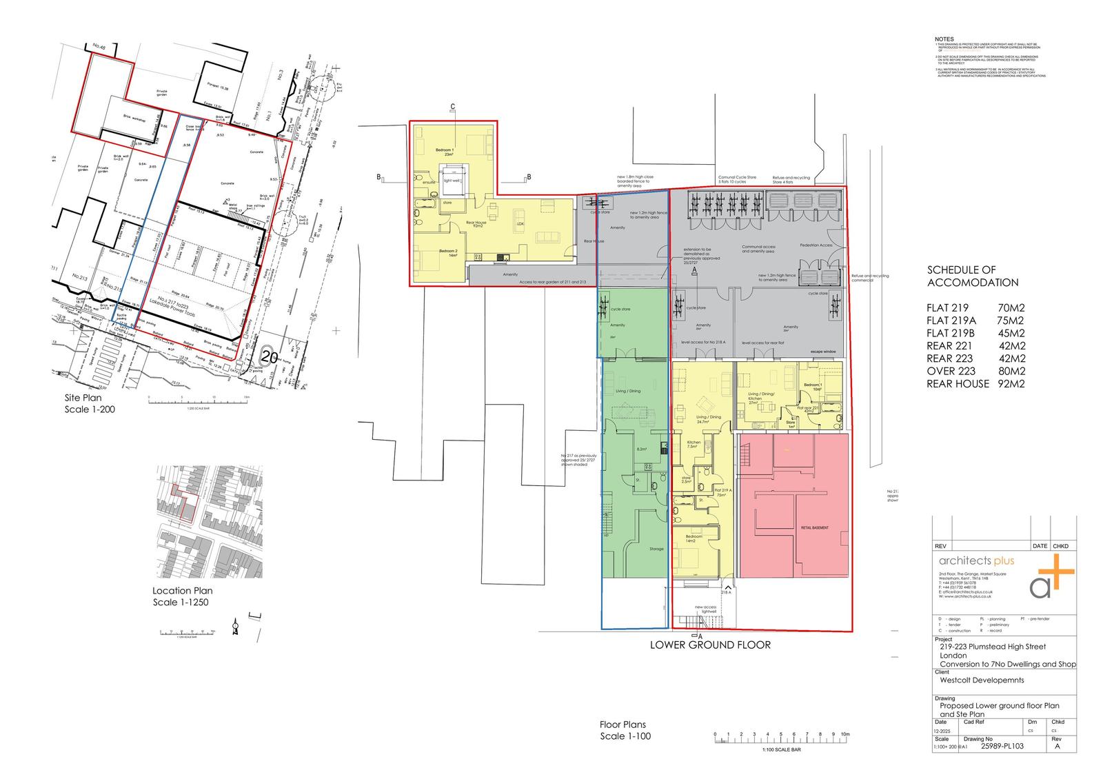
Change of use at basement, ground floor and first floor levels and of building at rear from commercial (Use Class E) to residential (Use Class C3) to faciliate the creation of 6 new flats and partial retention of Use Class E at ground floor, in addition to the creation of a lightwell and staircase access to basement level, shopfront alterations, provision of balconies and amenity spaces at rear, boundary treatment, provision of waste and cycle storage and all other associated alterations

Documents

Acknowledgement letter
Correspondence
Not yet archived · Original link
Application form
Application Form
Not yet archived · Original link
Commercial viability commentary
Document
Not yet archived · Original link
Covering letter
Planning Portal Application
Not yet archived · Original link
Daylight report
Document
Not yet archived · Original link
Design and access statement
Document
Not yet archived · Original link
Existing elevations and section
Drawing
Not yet archived · Original link
Fire statement report
Document
Not yet archived · Original link
Gab0020016 official copy title plan - 408629
Document
Not yet archived · Original link
Gab0020016 official copy title plan - 409620.
Document
Not yet archived · Original link
Gab0020016 official copy title plan - 409934
Document
Not yet archived · Original link
Gab0020016 official copy title plan - ln153133
Document
Not yet archived · Original link
Gab0020016 official copy title plan - ln95200.
Document
Not yet archived · Original link
Gab0020016 official copy title plan - tgl123461
Document
Not yet archived · Original link
Gab0020016 official copy title plan - tgl134799
Document
Not yet archived · Original link
Gab0020016 official copy title plan - tgl152448
Document
Not yet archived · Original link
Proposed elevations and section
Drawing
Not yet archived · Original link
Proposed ground, first and roof plans
Drawing
Not yet archived · Original link
Sustainability statement
Document
Not yet archived · Original link

Have your say

Your comment matters. Councils must consider every representation that raises material planning considerations.

Write a comment