← Greenwich

Status

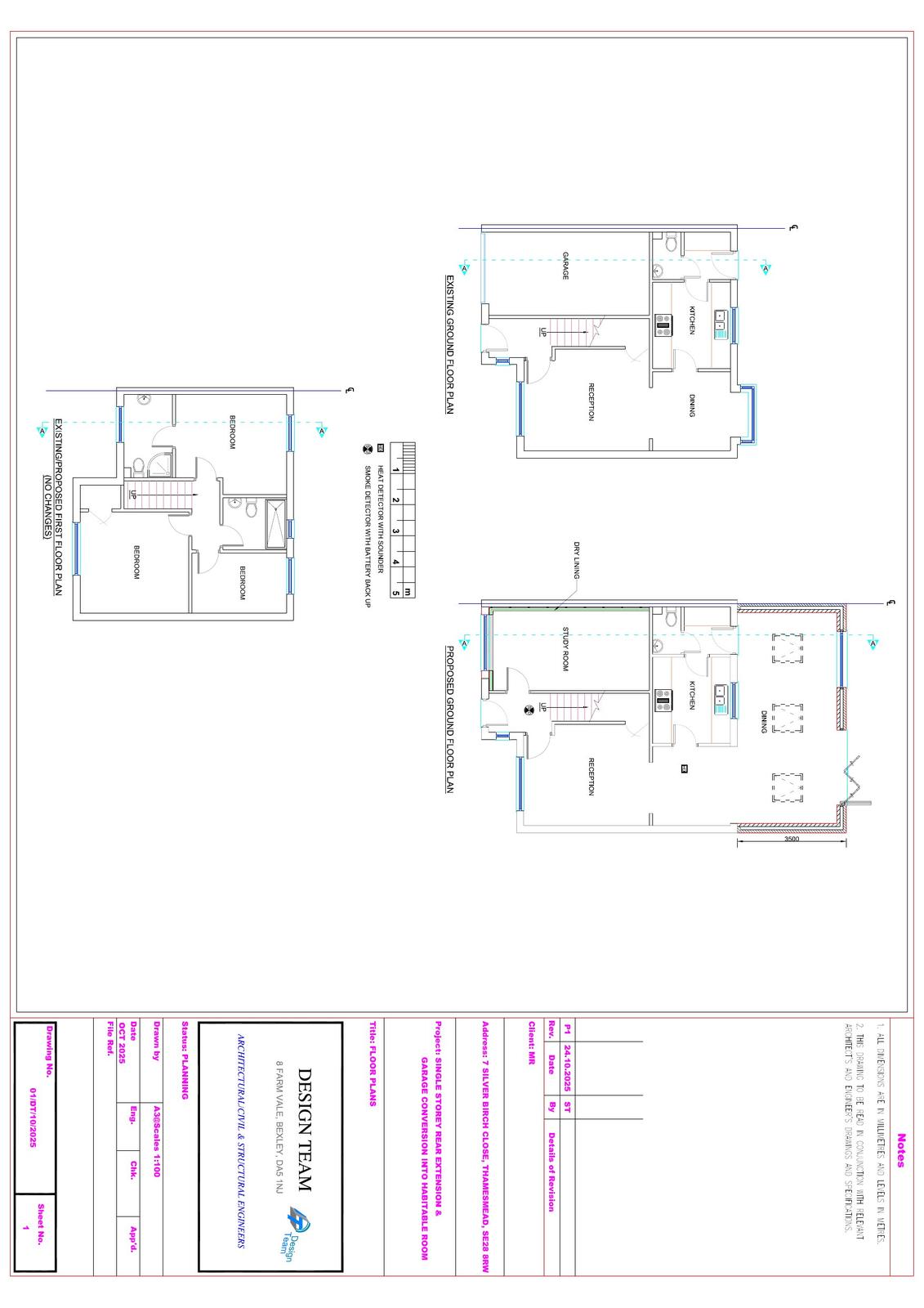
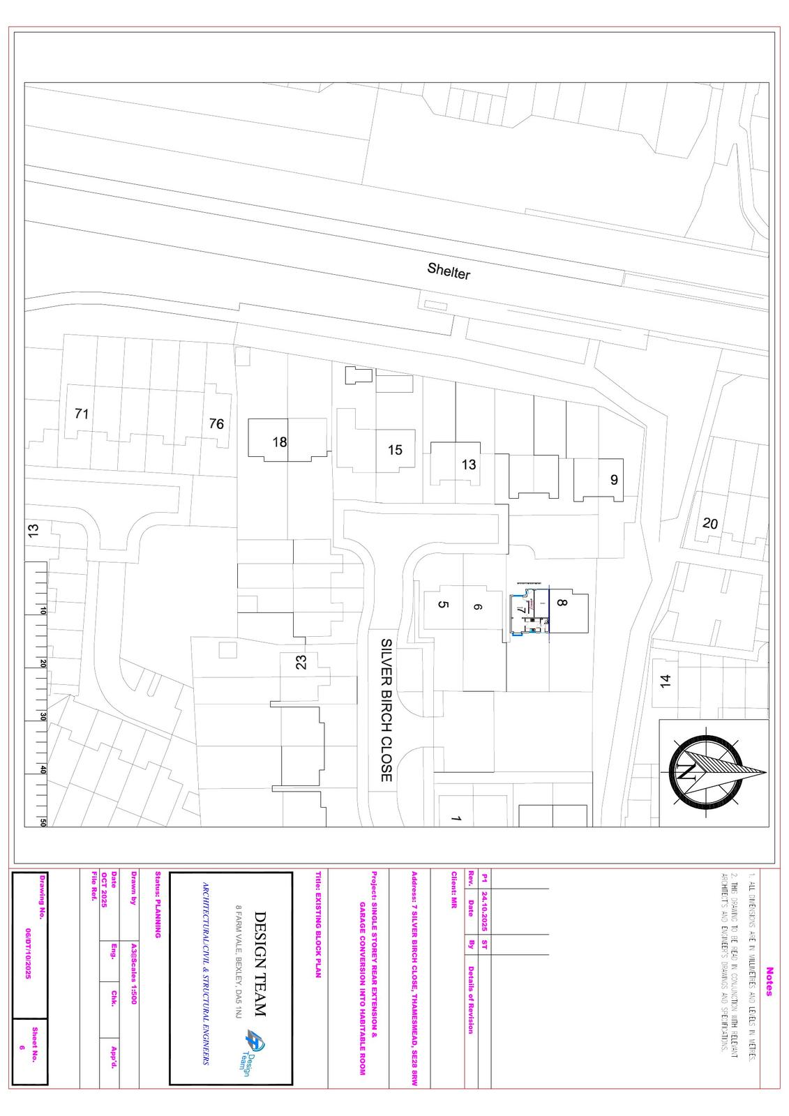
Registered House extension
Received
11 Dec 2025
New homes
0

Full proposal

Garage conversion to a habitable room and single-storey rear extension with all associated works (Reconsultation - Amended description of development)

Have your say

Your comment matters. Councils must consider every representation that raises material planning considerations.

Write a comment