← Chichester District Council

Status

Permit House extension
Received
17 Dec 2025
New homes
0

Full proposal

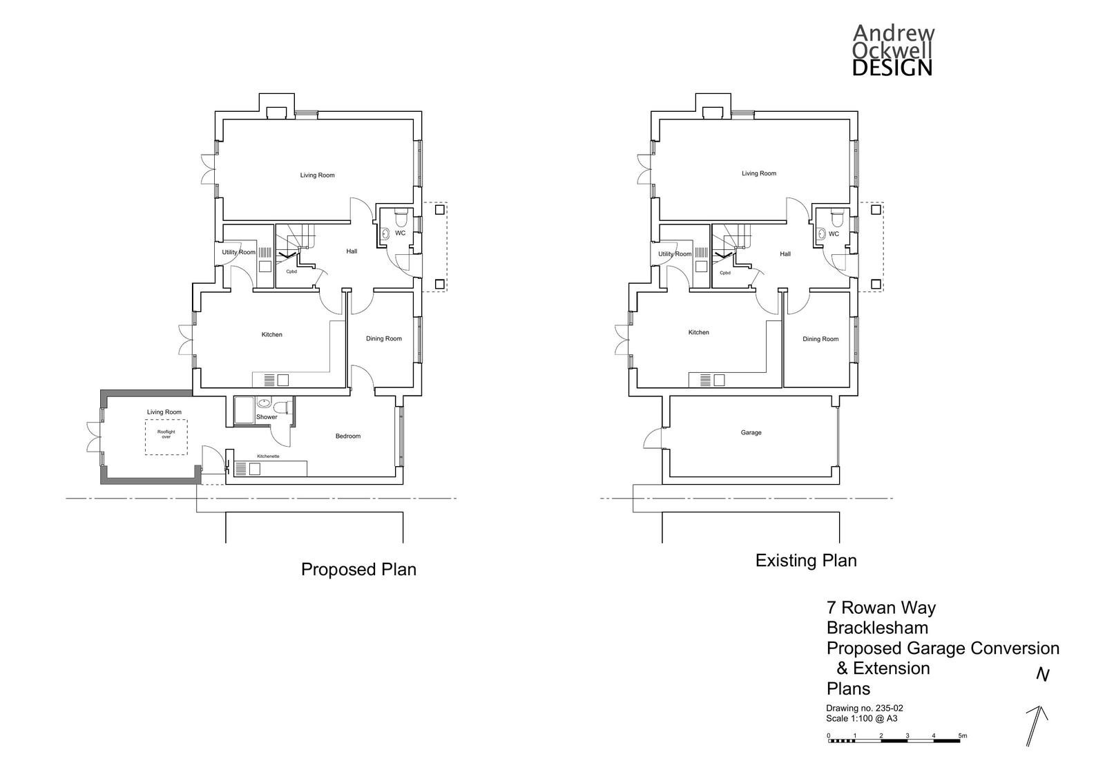
Garage conversion and single storey rear extension to form annexe.

Documents

Application Form
Archived · Original link
Correspondence
Archived · Original link
Decision Notice
Archived · Original link
Delegated Report
Archived · Original link
Plan - Under Consideration
Archived · Original link
HRA
Application Documents
Archived · Original link
Plan - Under Consideration
Archived · Original link
Plan - Decided
Archived · Original link

Have your say

Your comment matters. Councils must consider every representation that raises material planning considerations.

Write a comment