← Chichester District Council

Status

Permit Demolition
Received
16 Dec 2024
New homes
0

Full proposal

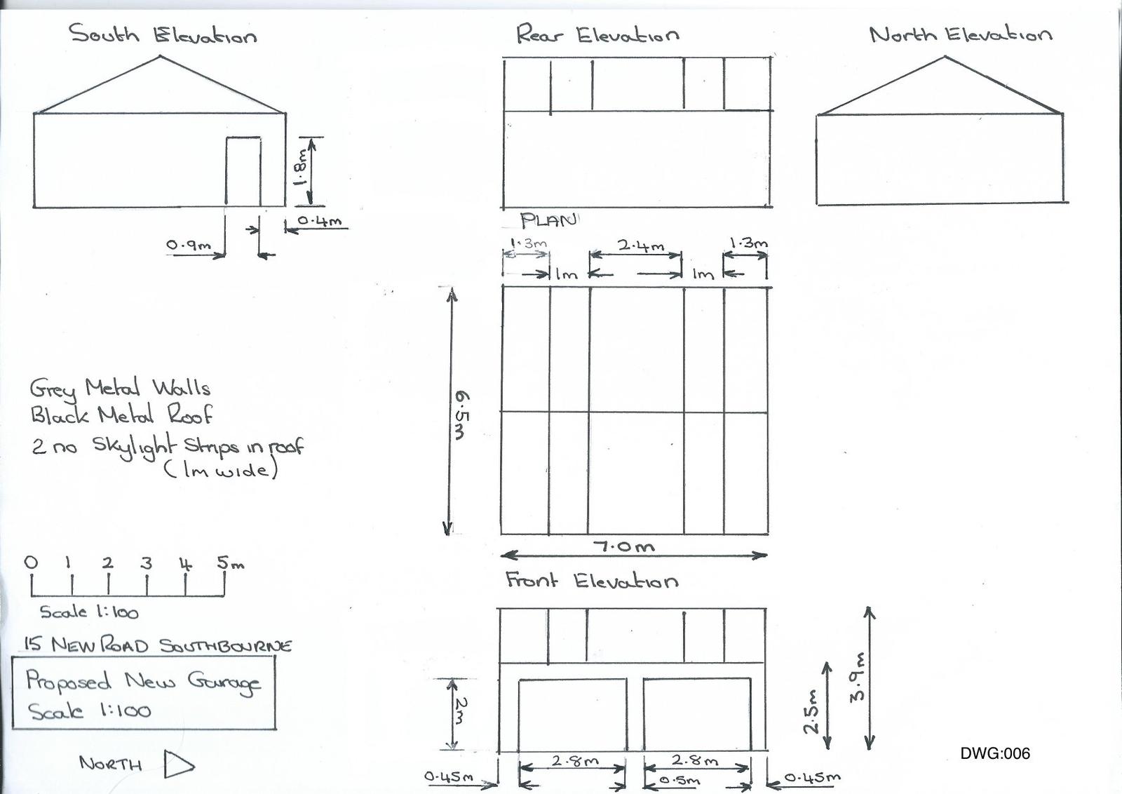
Demolition of existing car port and shed. Erection of a replacement garage.

Documents

APPLICATION FORM
Application Form
Not yet archived · Original link
Correspondence
Archived · Original link
Decision Notice
Archived · Original link
Delegated Report
Delegated Report
Not yet archived · Original link
Plan - Decided
Archived · Original link
Plan - Under Consideration
Archived · Original link
Plan - Under Consideration
Archived · Original link
Application Documents
Archived · Original link
Application Documents
Archived · Original link
Plan - Decided
Archived · Original link

Have your say

Your comment matters. Councils must consider every representation that raises material planning considerations.

Write a comment