← London Borough of Camden

Status

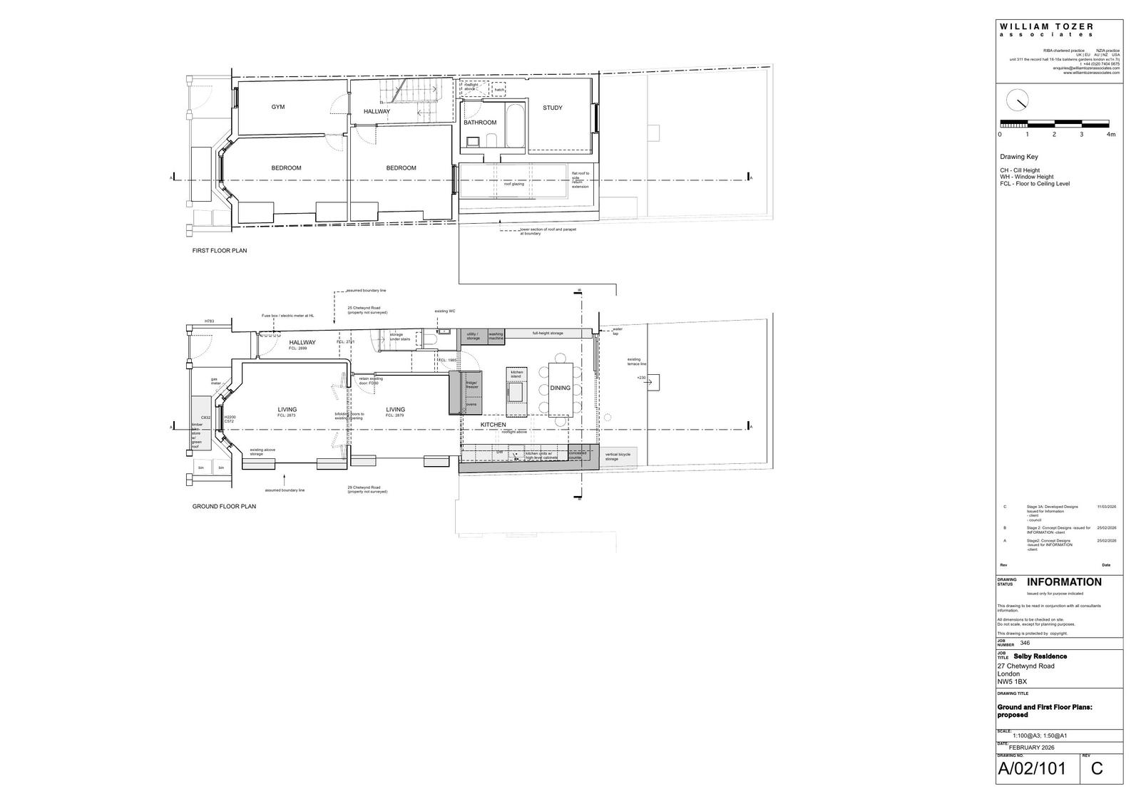
REGISTERED House extension
Received
Last month
New homes
0

Full proposal

Erection of single storey side/rear infill extension at ground floor level

Have your say

Your comment matters. Councils must consider every representation that raises material planning considerations.

Write a comment