← Bradford Metropolitan District Council

Status

Pending Consideration House extension
Received
Last month
New homes
0

Full proposal

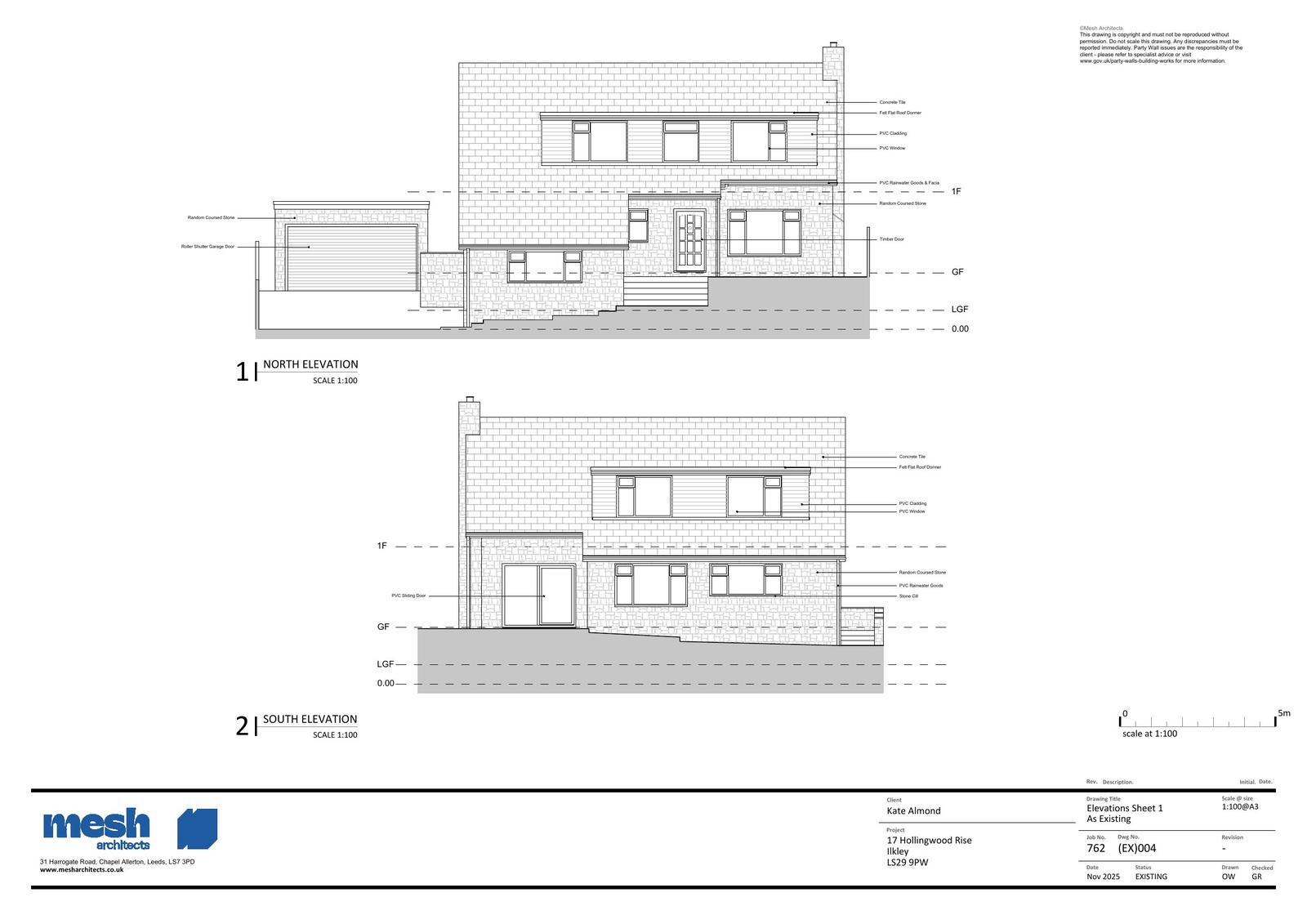
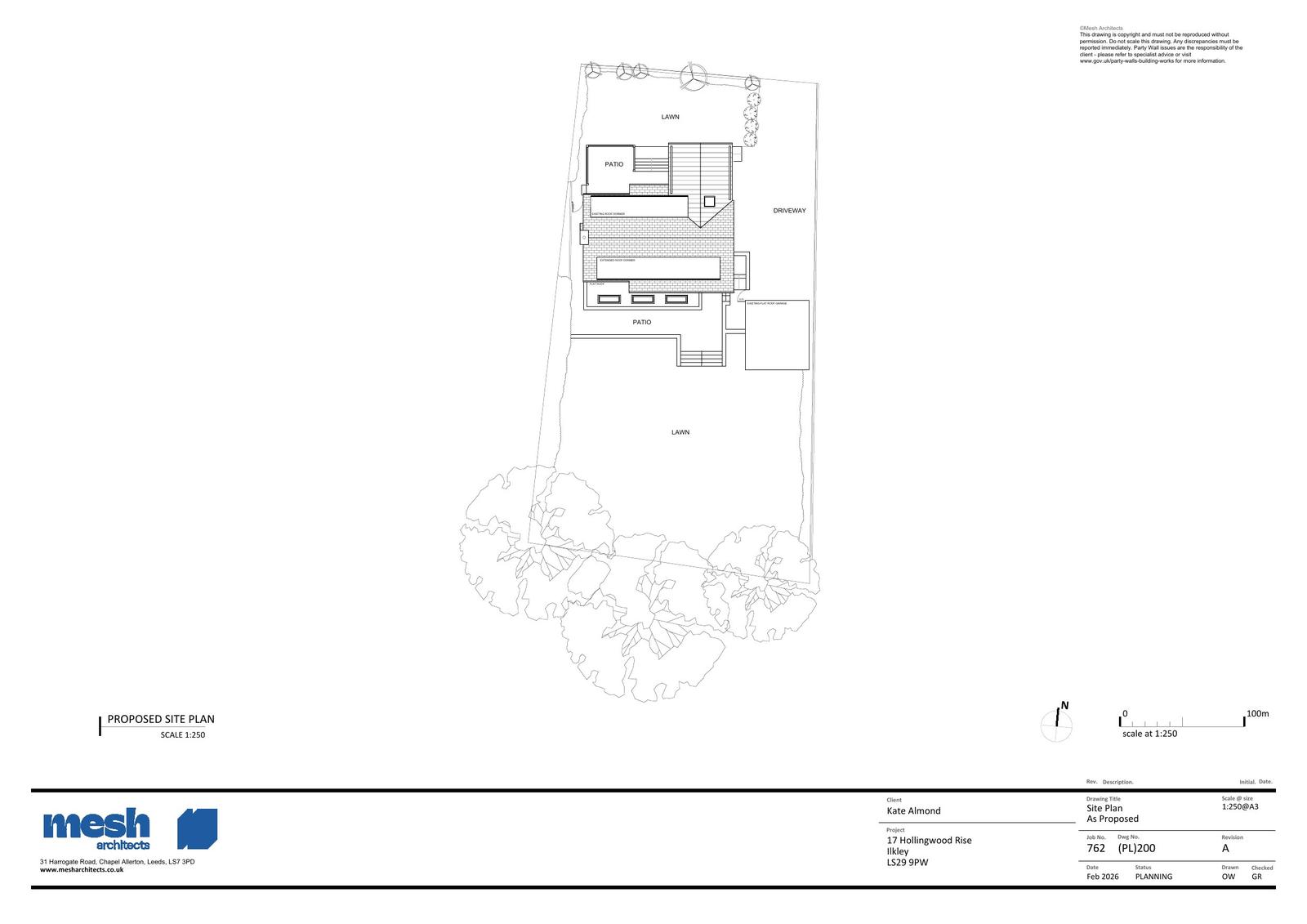
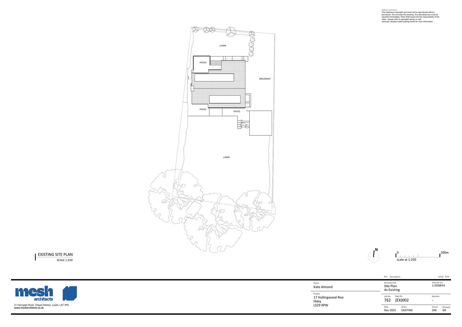
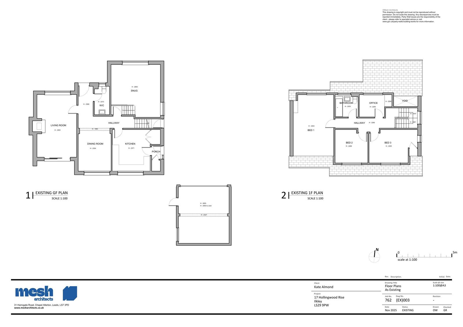
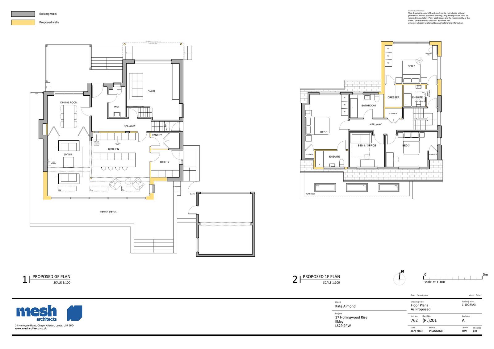
First floor front extension and ground floor rear extension. Extension to existing rear dormer. Recladding of existing dormers. Amendments to existing window fenestration

Documents

Application Form
Archived · Original link
Drawing
Archived · Original link
Drawing
Archived · Original link
Drawing
Archived · Original link
Drawing
Archived · Original link
Drawing
Archived · Original link
Drawing
Archived · Original link
Drawing
Archived · Original link
OS Extract
Archived · Original link
OS Extract
Archived · Original link

Have your say

Your comment matters. Councils must consider every representation that raises material planning considerations.

Write a comment