← Bolton Council

Status

Deposited House extension
Received
Last month
New homes
0

Full proposal

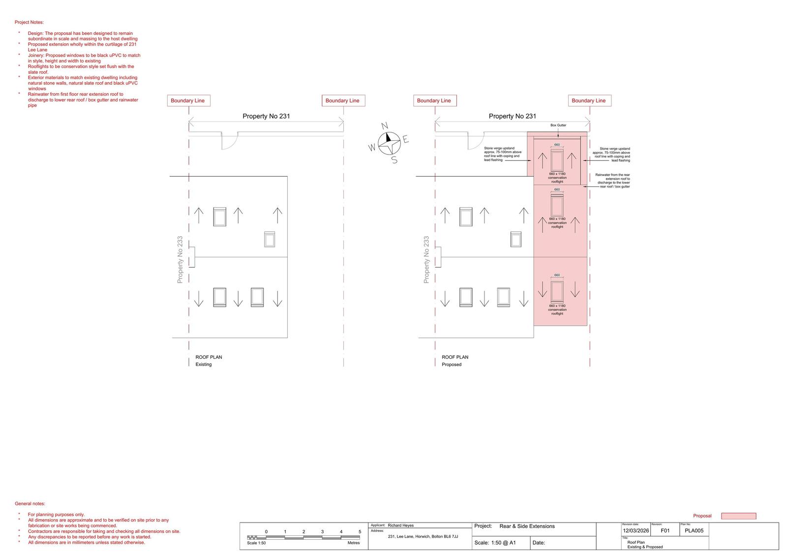
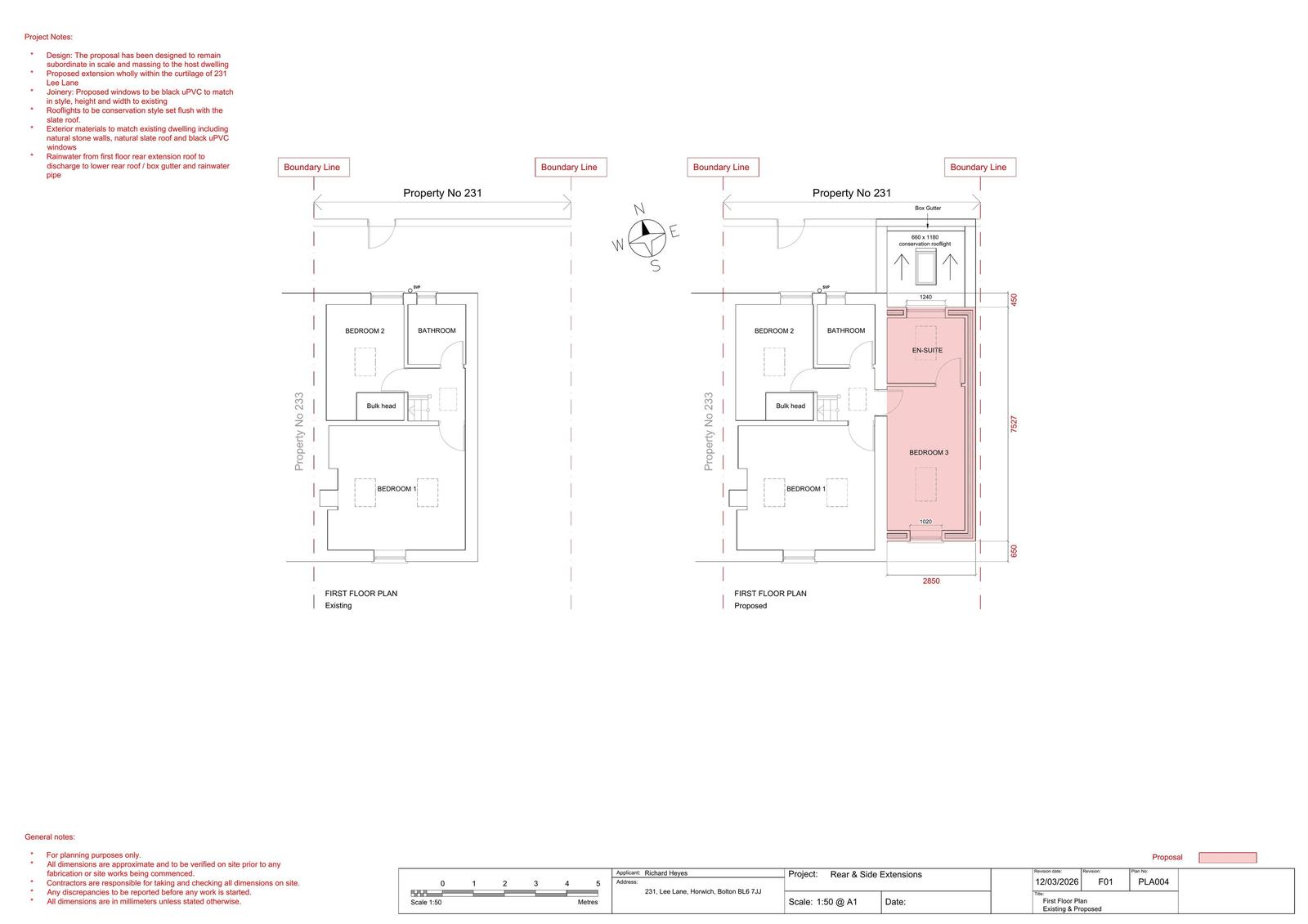
ERECTION OF TWO STOREY SIDE EXTENSION AND SINGLE STOREY REAR EXTENSION

Documents

Application Form
Archived · Original link
Application Submission Details
Archived · Original link
DESIGN AND ACCESS STATEMENT
Application Submission Details
Not yet archived · Original link
Application Submission Details
Archived · Original link
Application Submission Details
Archived · Original link
Application Submission Details
Archived · Original link
HERITAGE STATEMENT
Application Submission Details
Not yet archived · Original link
Application Submission Details
Archived · Original link
Application Submission Details
Archived · Original link
Consultation Plan
Archived · Original link
Application Submission Details
Archived · Original link
Application Submission Details
Archived · Original link

Have your say

Your comment matters. Councils must consider every representation that raises material planning considerations.

Write a comment