← Barnsley Metropolitan Borough Council
2026/0162
Barnsley Metropolitan Borough Council
Status
Registered
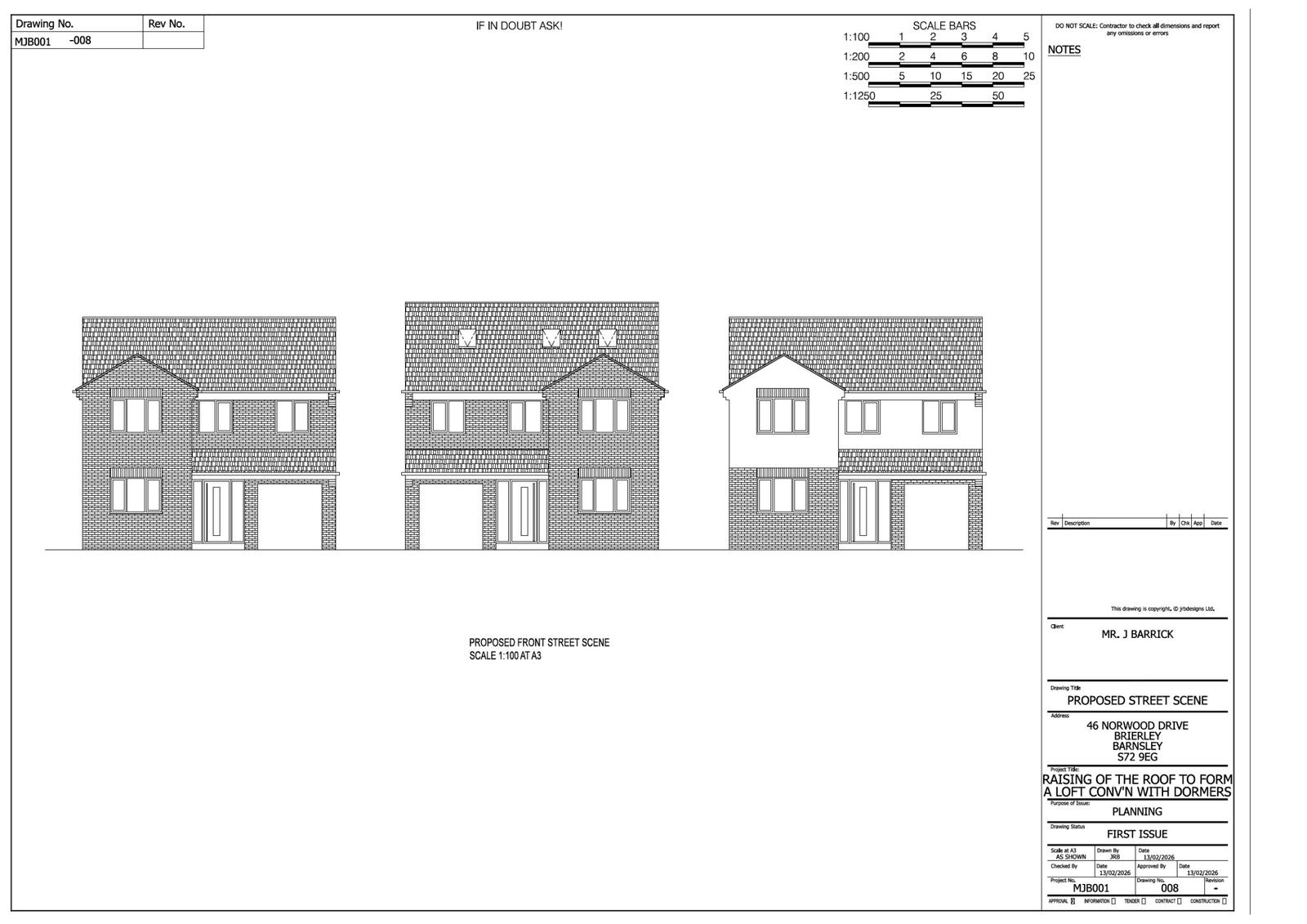
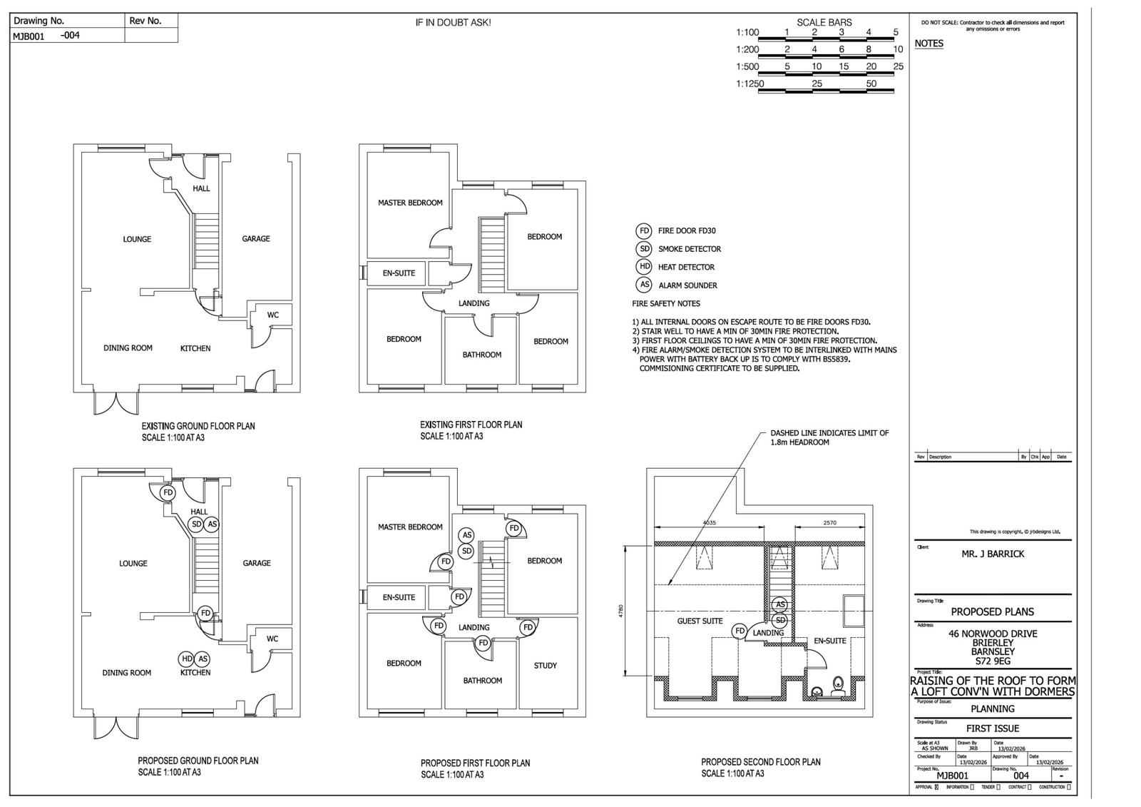
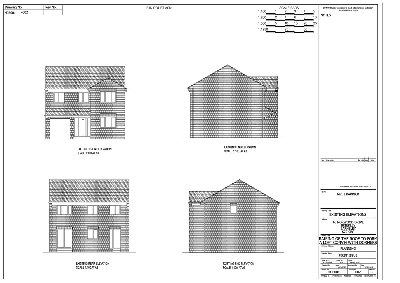
House extension
Received
Last month
New homes
0
Full proposal
Raising of roof to create habitable loft area, rear facing dormers and front velux windows to roof of dwelling
Documents
Have your say
Your comment matters. Councils must consider every representation that raises material planning considerations.