← Barnsley Metropolitan Borough Council
2025/0304
Barnsley Metropolitan Borough Council
Status
Withdrawn
House extension
Received
04 Apr 2025
New homes
0
Full proposal
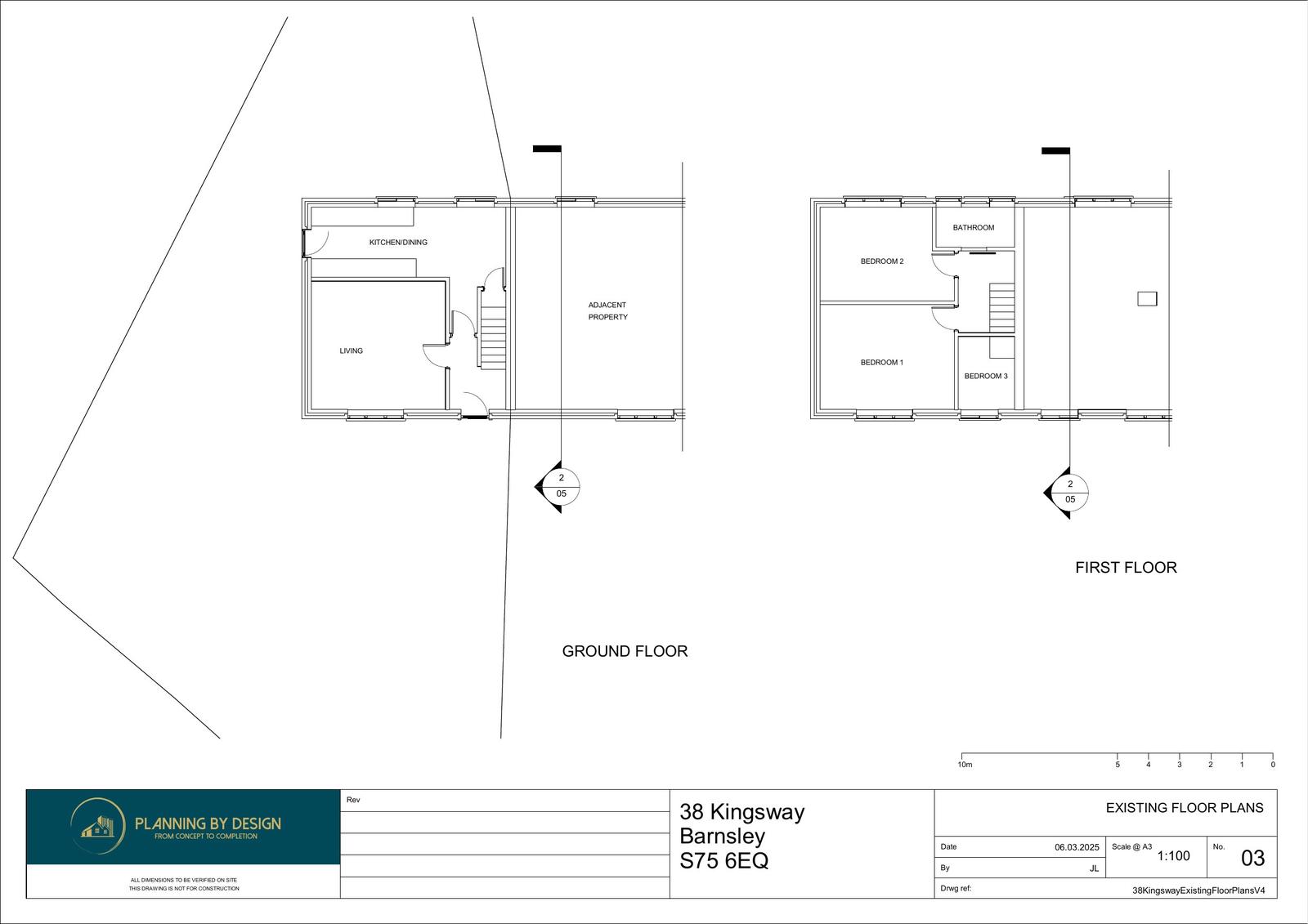
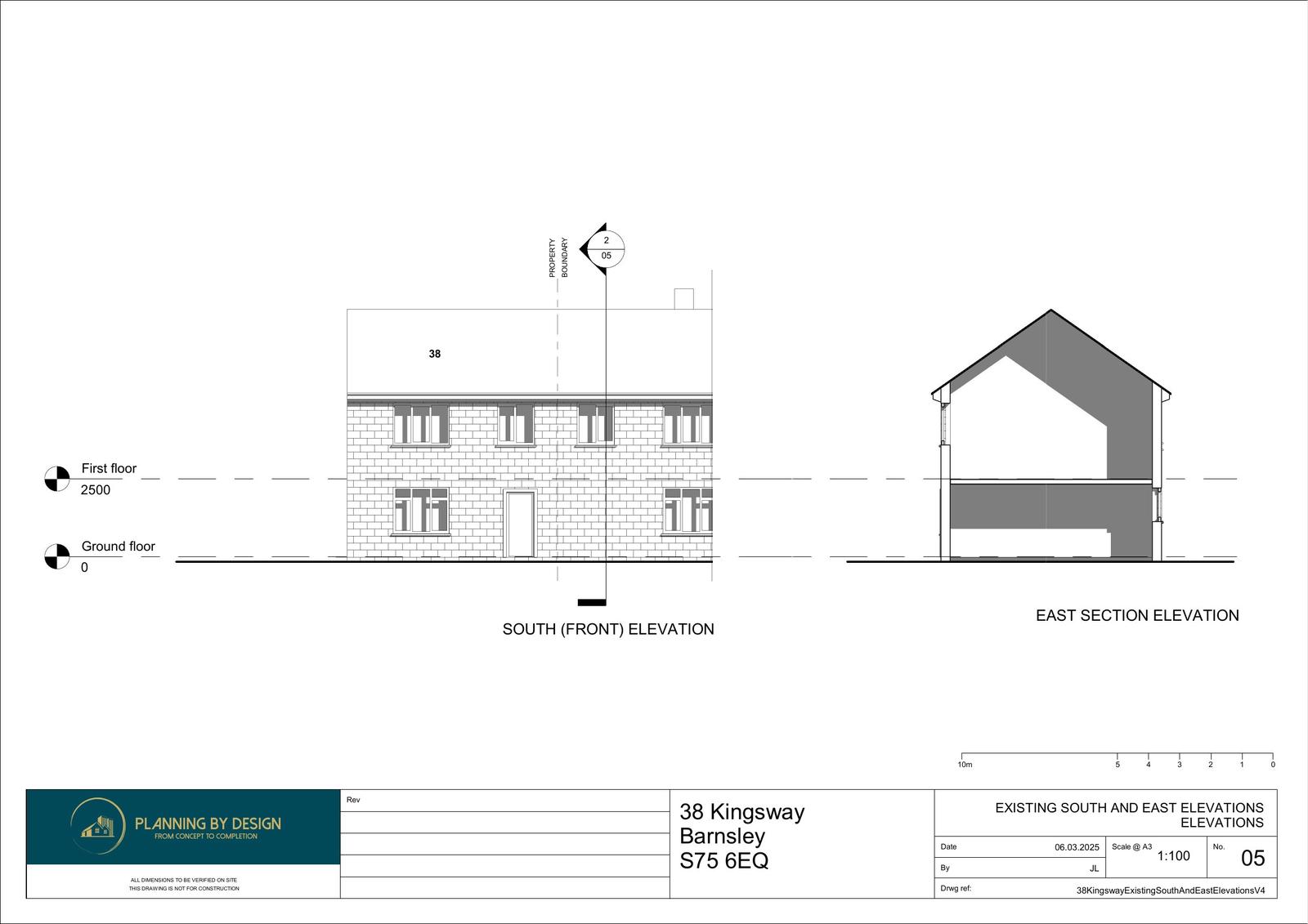
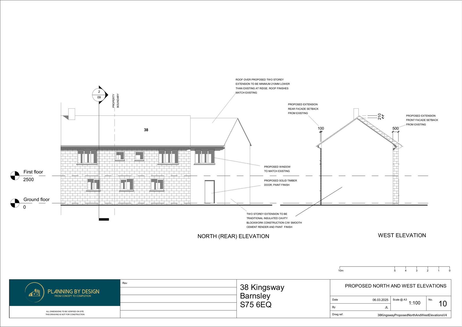
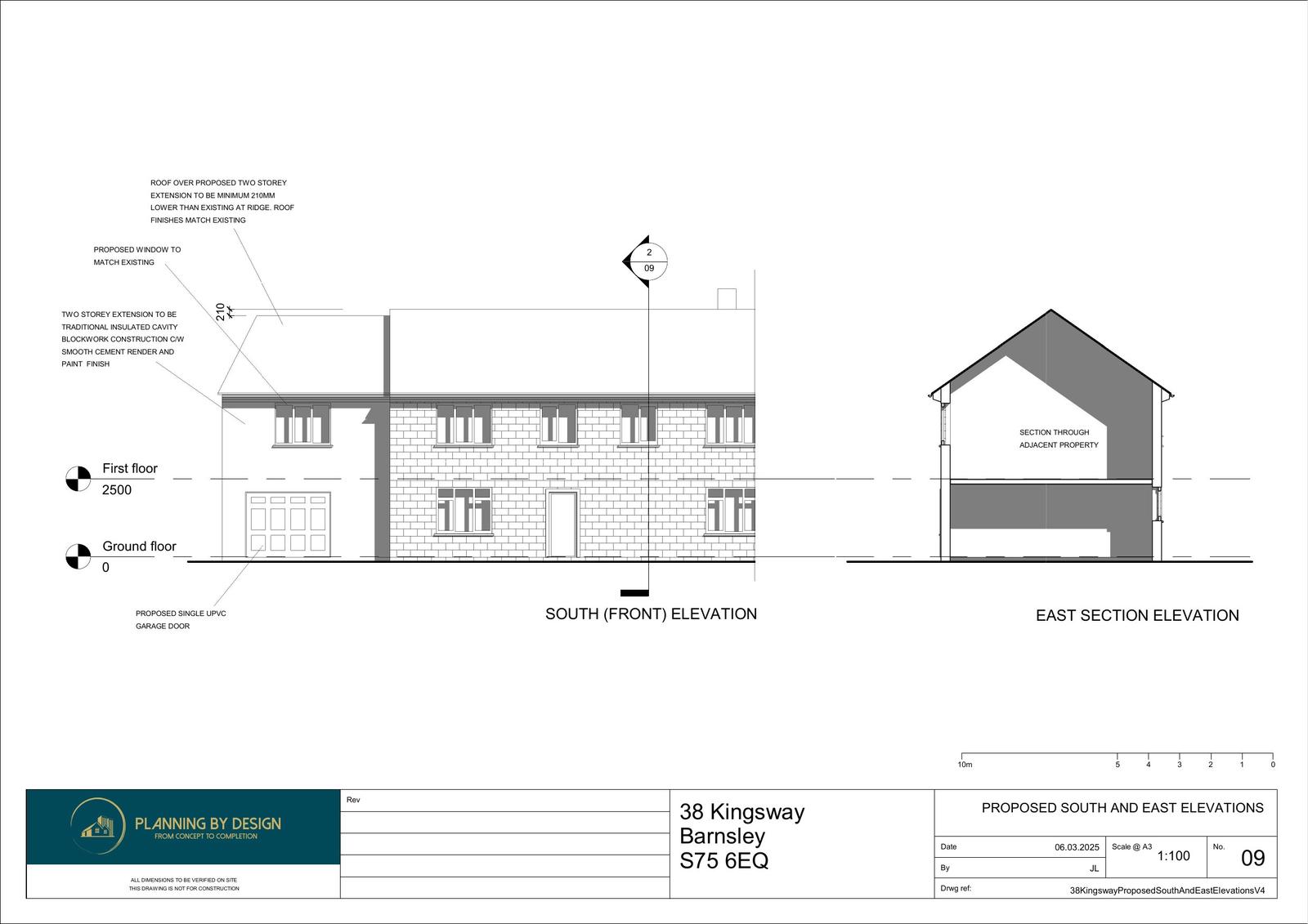
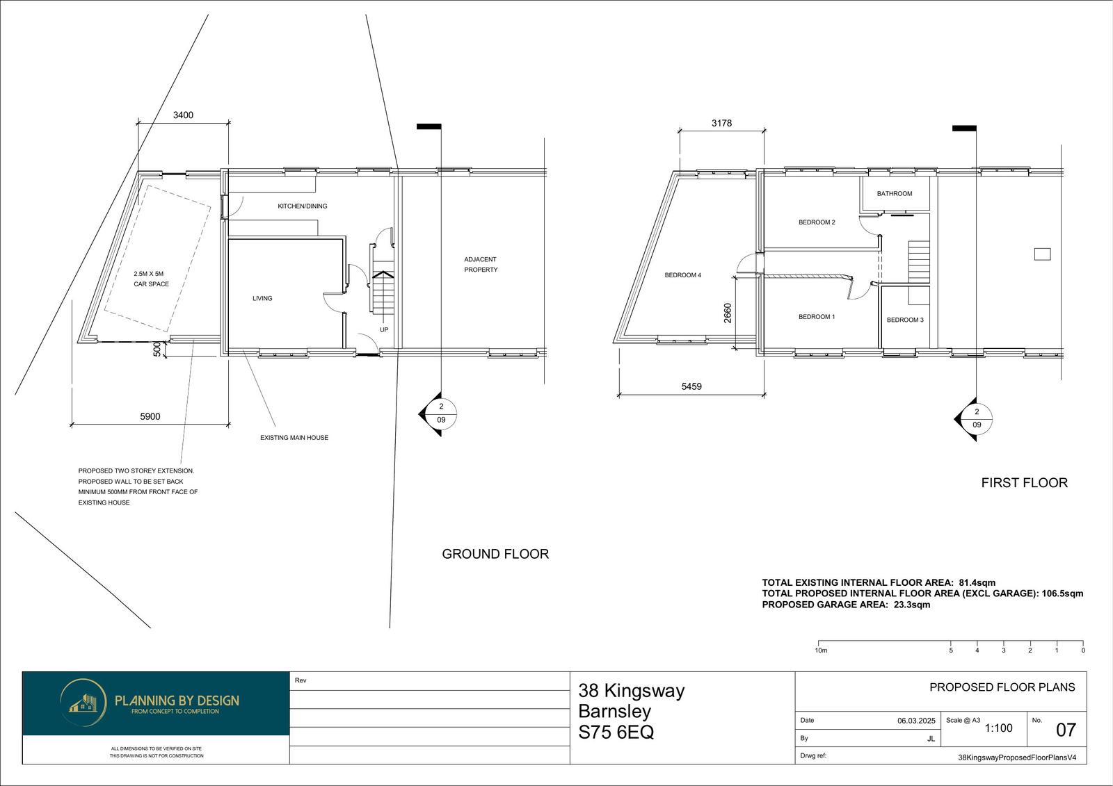
Erection of a two-storey side extension
Documents
Uncategorised
Archived
· Original link
Uncategorised
Archived
· Original link
Uncategorised
Archived
· Original link
Uncategorised
Archived
· Original link
Have your say
Your comment matters. Councils must consider every representation that raises material planning considerations.